1 - 18 King Street W, Brockville, Ontario K6V 3P6

Listed for:
$3,500
0 beds
0 baths
Listed 23 days ago
1 - 18 King Street W, Brockville, Ontario K6V 3P6

View all 11 photos

Learn more about this property
Listing provided by:
COLDWELL BANKER SARAZEN REALTY
MLS® number:
X12510766
Agent:
Alisa Azzi
*Indicates required field
Name is required
Email is required
Please enter a valid phone number (e.g., 416-111-1111).

About

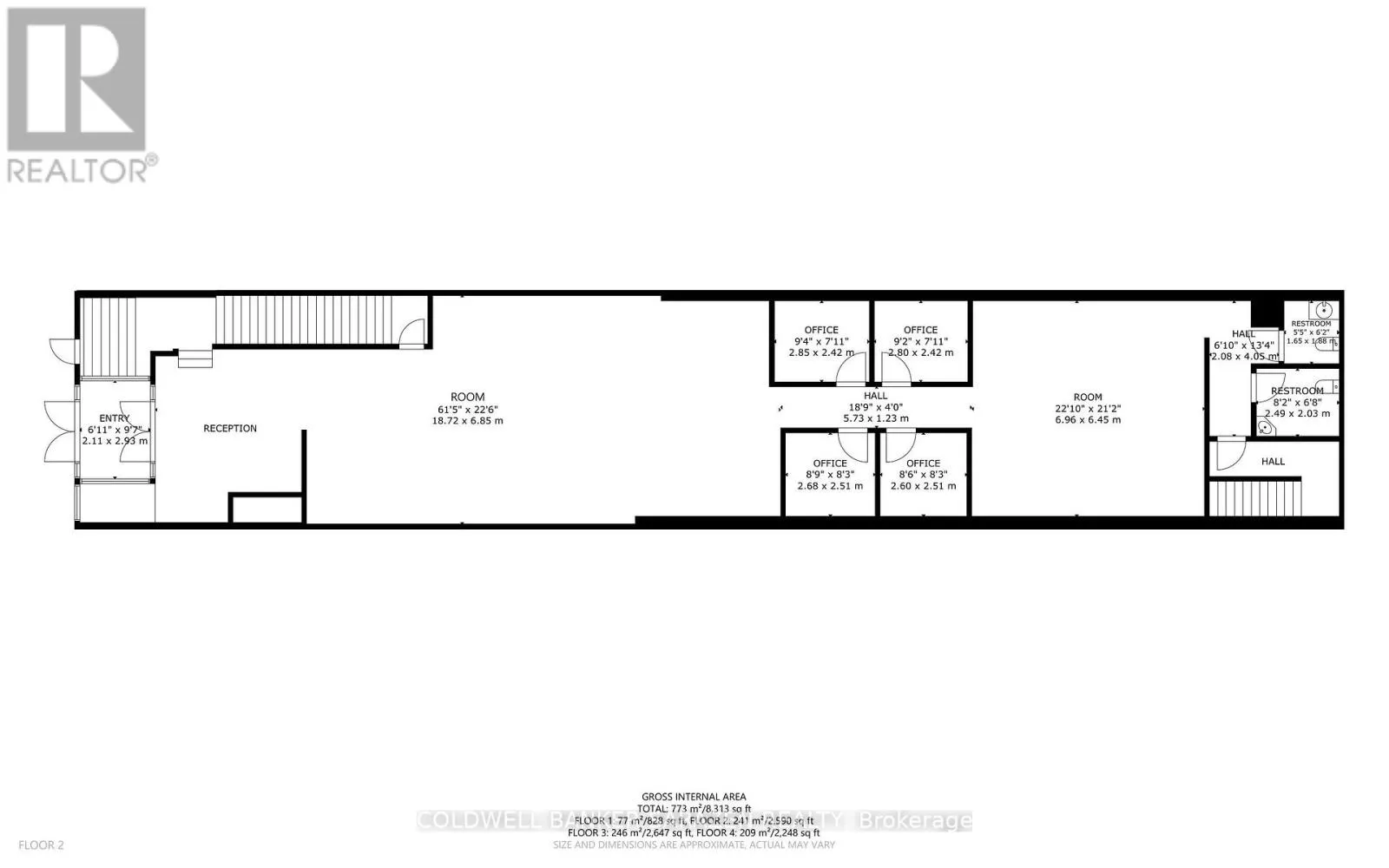
Cross Streets: Victoria Ave and King St. ** Directions: From Hwy 401 exit 698 Steward Blvd head south follow to King St turn left and the property is on the north side across from Scotia Bank. Welcome to 18 King Street West - Main Level, a bright and versatile approx. 2,500 sq. ft. commercial unit located in the heart of downtown Brockville.This open, well-maintained space offers excellent street exposure, high foot traffic, and flexible layout options - making it ideal for a wide range of uses such as professional offices, retail, wellness clinics, studios, or boutique services. Prominent storefront visibility along King Street West. Private entrance and large display windows. On-site parking (shared, up to 6 spaces for the building). Located just steps from the waterfront, restaurants, shops, and VIA Rail. C2 X2-1 zoning allows for a variety of commercial and service uses. Whether you're an established business or an entrepreneur ready to open your doors, this space combines prime location, charm, and functionality in one of Brockville's most vibrant areas. (id:27476)

Property Highlights

MLS® Number
X12510766
Type
Retail
Community Name
810 - Brockville
Land Size
Bldg=25 x 164 FT
Parking Space Total
3

Building

Square Footage
2500 sqft
Fireplace Present
No
Basement Type
Basement Features
Building Heating Type
Forced air
Heating Fuel
Natural gas
Building Cooling Type
Fully air conditioned

Utilities

Water
Municipal water

Location