243 Bartholomew Street, Brockville, Ontario K6V 2S4

Listed for:
$424,900
4 beds
2 baths
Listed 35 days ago
House for rent: 243 Bartholomew Street, Brockville, Ontario K6V 2S4

View all 49 photos

About

Cross Streets: Stanley Crescent. ** Directions: From the 401 - south to Central (at Stewart) or Reynolds (at North Augusta) - Follow to Bartholomew and turn South (only available direction). 243 is on the left at the second Stanley Crescent intersection. Affordable Versatility! This home has a unique layout that provides options for your circumstances. Do you need a separate space for multi-generational living? It can do that. Do you want to have a short-term rental to supplement income? It can do that. Are you looking for single-floor living with room for storage and guests? That can be done too. Do you have a growing family and need an affordable home that provides comfort for the whole family? This one is for you. 3+1 Bedrooms, 2 Full Bathrooms, Finished Basement with an available separate entrance. Plenty of driveway parking and a gravel pad adjacent to it. Fenced yard for kids and pets. New metal roof 2024 - Electrical Panel Upgrade (from fuses), New A/C Unit / most windows replaced / Eaves & Soffits 2021 Schedule your showing today! (id:27476)

Property Highlights

MLS® Number
X12798542
Type
Single Family
Community Name
810 - Brockville
Ownership Type
Freehold
Land Size
50 x 107 FT
Parking Space Total
5

Building

Building Type
House
Storeys
1.00
Square Footage
1500 - 2000 sqft
Bathrooms Total
2
Bedrooms Above Ground
3
Bedrooms Total
4
Exterior Finish
Brick
Fireplace Present
No
Basement Type
N/A (Finished)
Basement Features
Building Heating Type
Forced air
Heating Fuel
Natural gas
Building Cooling Type
Central air conditioning

Utilities

Water
Municipal water
Utility Sewer
Sanitary sewer

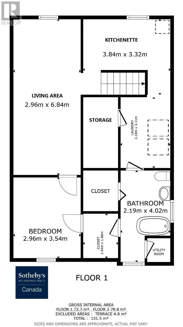
Room Layout

Laundry room
Lower level
12 m x 6 m
Living room
Lower level
22 m x 10 m
Bedroom 4
Lower level
14 m x 10 m
Bathroom
Lower level
13 m x 7 m
Kitchen
Lower level
12 m x 10 m
Primary Bedroom
Main level
12 m x 12 m
Bedroom 2
Main level
12 m x 10 m
Bathroom
Main level
9 m x 5 m
Kitchen
Main level
14 m x 10 m
Living room
Main level
20 m x 10 m
Bedroom 3
Main level
12 m x 10 m

Location

Learn more about this property
Listing provided by:
SOTHEBY'S INTERNATIONAL REALTY CANADA
MLS® number:
X12798542
Agent:
Gordon Mclaughlin
*Indicates required field
Name is required
Email is required
Please enter a valid phone number (e.g., 416-111-1111).