61 Pearl Street E, Brockville, Ontario K6V 1P6

Listed for:
$1,350,000
0 beds
0 baths
Listed 55 days ago
Multi-Family for rent: 61 Pearl Street E, Brockville, Ontario K6V 1P6

View all 50 photos

About

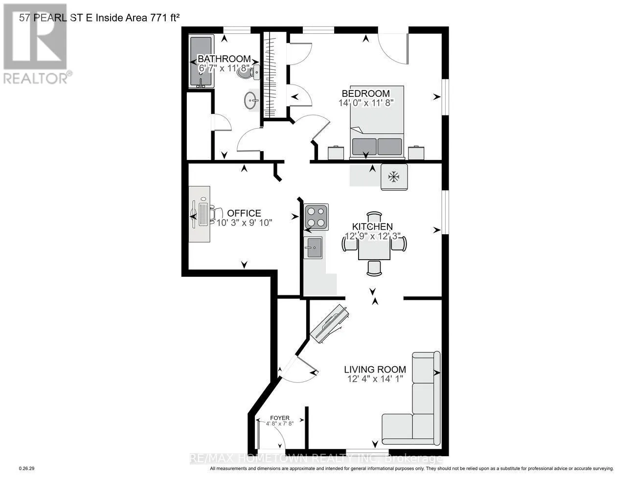
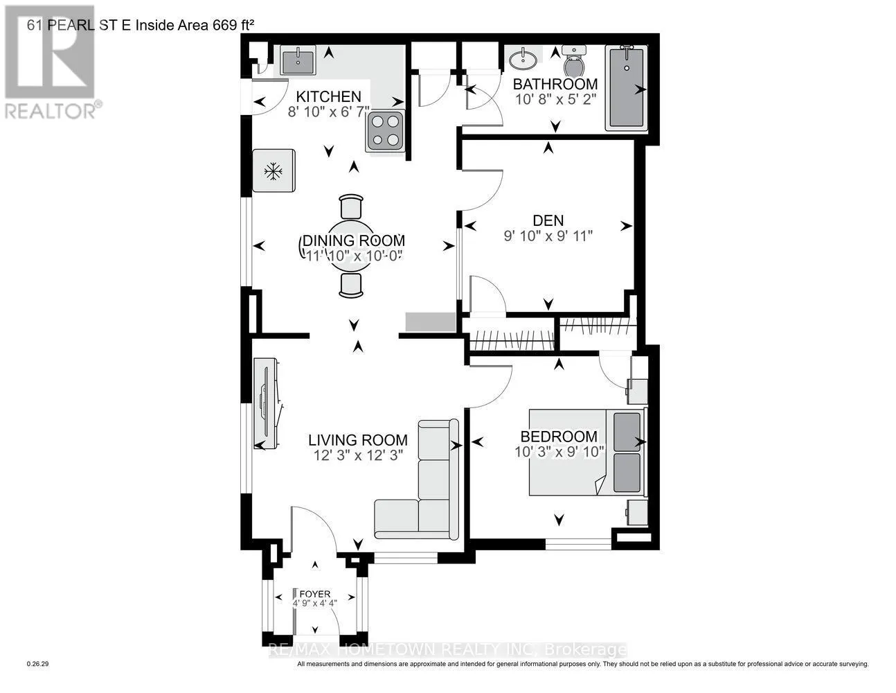
Cross Streets: Pearl Street East and Park. ** Directions: Take exit 698 from 401 and head South on North Augusta Road, turn onto Pearl Street(corner of Pearl, North Augusta, Keefer St) at second light, property is on the corner of Pearl and Park, South West #61. Now is the time to take that step into the investment world with this income-generating 6-plex, complete with a separate house on the property. The house offers a great opportunity to live on-site while collecting rent from the six units. If the house becomes vacant, it also has strong potential as a short-term rental, adding another stream of income. The charming house features a fenced yard with plenty of room to create your own outdoor oasis. There's real potential here, whether for personal use or added rental appeal. The 6-plex offers a solid mix of unit types, including two-bedroom, one-bedroom, and one-bedroom-plus-den layouts, making it attractive to a wide range of tenants. Location is a standout. With a park across the street and the hospital, schools, shopping, waterfront, and public transit all within walking distance, this is a highly desirable area for both living and renting. Each unit includes one parking space, a valuable feature for tenants. Major updates have already been completed, including the roof and gas hot water boiler in recent years. A strong investment opportunity in a location that continues to draw quality tenants, with added flexibility and future income potential. $122,717.52- $32,972.74 = $89,744.78 divided by 12 = $7478.75 per month. UPDATES-Boiler - 2024, Forced air gas furnace: 2025, Roof - 2023, hot water heaters-2026 for the most recent HWT. There are 2 hydro meters, 1 gas and water meter. PLEASE ALLOW 24+ HOURS FOR ALL SHOWINGS, AND BE SURE TO CHECK OUT THE 3D UNDER MEDIA IN REALTOR.CA (id:27476)

Property Highlights

MLS® Number
X12910658
Type
Multi-family
Community Name
810 - Brockville
Land Size
60 x 120 FT

Building

Building Type
Multi-Family
Amenities
Public Transit
Fireplace Present
No
Basement Type
Basement Features
Building Heating Type
Hot water radiator heat
Heating Fuel
Natural gas
Building Cooling Type
None

Utilities

Water
Municipal water

Location

Learn more about this property
Listing provided by:
RE/MAX HOMETOWN REALTY INC
MLS® number:
X12910658
Agent:
Bambi Marshall
*Indicates required field
Name is required
Email is required
Please enter a valid phone number (e.g., 416-111-1111).