7-9 Dales Avenue, Brockville, Ontario K6V 5G9

Listed for:
$199,900
5 beds
3 baths
Listed Today
Duplex for rent: 7-9 Dales Avenue, Brockville, Ontario K6V 5G9

View all 29 photos

About

Cross Streets: Abbott. ** Directions: Stewart Blvd to west on Pearl Street, south on Dales avenue. This centrally located downtown property offers exceptional convenience, just steps from the library, hospital, boutique shopping, and a short stroll to the river. Proudly held by the same owner since the 1950s, it presents a rare opportunity brimming with potential. Each side features a thoughtfully laid-out main floor with a kitchen, dining area, and living room. The upper levels offer comfortable bedroom accommodations, with one side benefiting from an additional bedroom and bathroom-ideal for added flexibility and value. Whether envisioned as an income-generating duplex or a live-in investment with rental income, this property invites a discerning buyer to bring their vision to life. Set on a generous lot and complemented by a detached garage, the possibilities here are truly compelling. Take the time to experience all this property has to offer and imagine the many possibilities as you bring this home into its next chapter. (id:27476)

Property Highlights

MLS® Number
X12950044
Type
Multi-family
Community Name
810 - Brockville
Land Size
50 x 94 FT
Parking Space Total
4

Building

Building Type
Duplex
Storeys
2.00
Square Footage
1500 - 2000 sqft
Bathrooms Total
3
Bedrooms Above Ground
5
Bedrooms Total
5
Exterior Finish
Aluminum siding, Brick
Fireplace Present
No
Basement Type
N/A (Unfinished)
Basement Features
Building Heating Type
Baseboard heaters, Not known
Heating Fuel
Electric, Natural gas
Building Cooling Type
None

Utilities

Water
Municipal water
Utility Sewer
Sanitary sewer

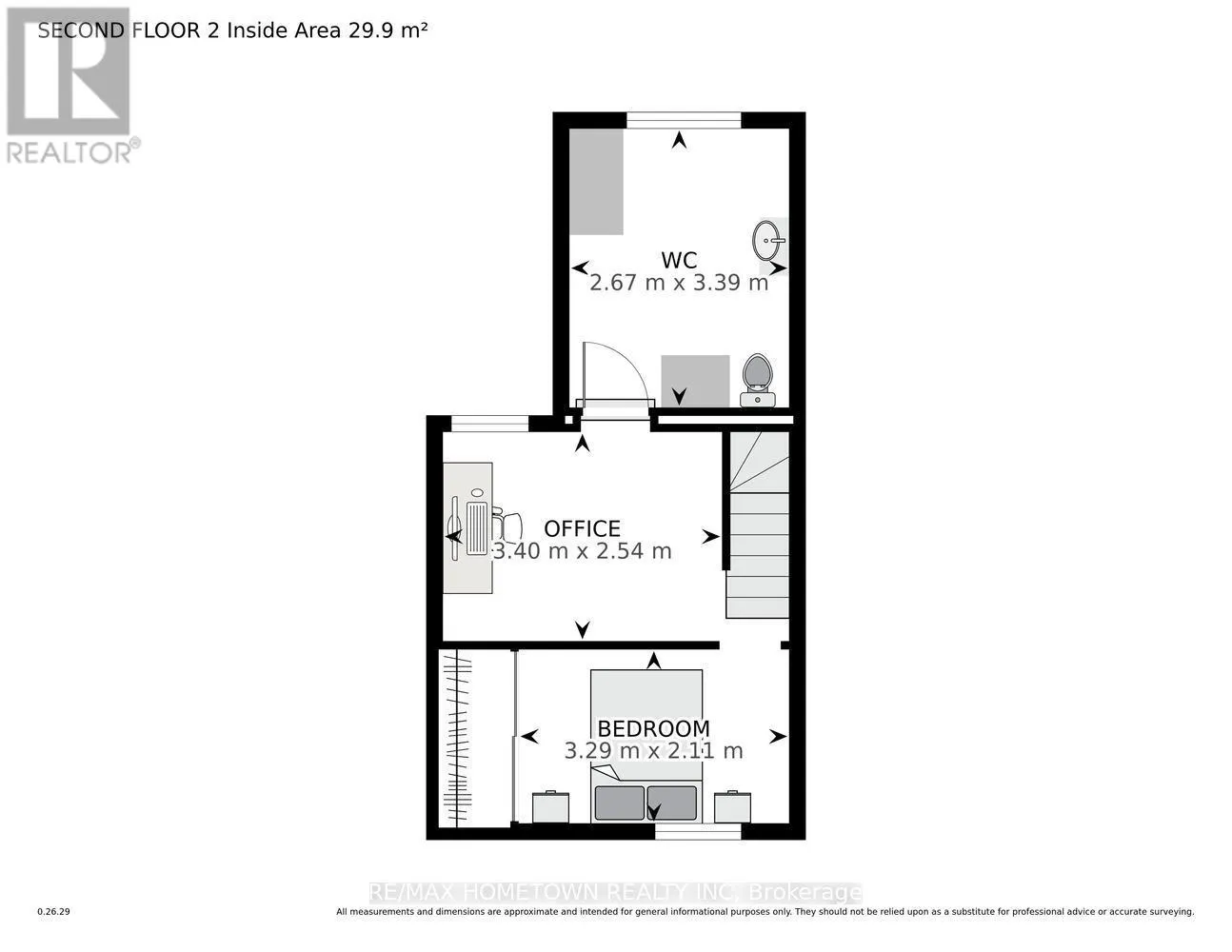
Room Layout

Bathroom
Second level
2.6 m x 3.3 m
Office
Second level
3.3 m x 2.5 m
Bedroom
Second level
4.3 m x 2.2 m
Bedroom
Second level
4.2 m x 2.1 m
Bedroom 2
Second level
3.4 m x 2.5 m
Bathroom
Second level
2.6 m x 3.3 m
Dining room
Main level
3.2 m x 2.45 m
Living room
Main level
4.1 m x 4.8 m
Kitchen
Main level
2.8 m x 3.6 m
Bedroom
Main level
4.4 m x 3.7 m
Kitchen
Main level
2.7 m x 3.5 m
Living room
Main level
4.2 m x 4.9 m
Bedroom
Main level
4.4 m x 3.7 m

Location

Learn more about this property
Listing provided by:
RE/MAX HOMETOWN REALTY INC
MLS® number:
X12950044
Agent:
Sue Steele
*Indicates required field
Name is required
Email is required
Please enter a valid phone number (e.g., 416-111-1111).