99 Fourth Concession Road Unit# 612, Burford, Ontario N0E 1A0

Listed for:
$325,000
2 beds
1 baths
Listed 4 days ago
Mobile Home for rent: 99 Fourth Concession Road Unit# 612, Burford, Ontario N0E 1A0

View all 4 photos

About

W Quarter Townline Rd. Hwy 2/53 West from Burford, turn right onto West Quarter Townline, second driveway on left into Twin Springs. Located on the corner of Fourth Concession Rd and W Quarter Townline Rd. Welcome to this modern 2023 park home in the sought-after Twin Springs community, just minutes from Burford. Offering bright, open-concept living, this well-appointed home features a stylish kitchen with a large centre island, floor-to-ceiling pantry, and stainless steel appliances overlooking the living and dining area. The home includes a spacious primary bedroom, one additional versatile bedroom, and a full 4-piece bathroom. Enjoy outdoor living on the newly built extended treated wood deck, complete with a convenient storage shed. A rare oversized parking pad provides four dedicated parking spaces, an exceptional feature for the community. Residents of Twin Springs enjoy access to a spring-fed lake, sandy beach, and community events, all conveniently located near Brantford and Highway 403. (id:27476)

Property Highlights

MLS® Number
40816690
Type
Single Family
Maintenance Fee
586.00
Ownership Type
Leasehold
Land Size
under 1/2 acre
Parking Space Total
4

Building

Building Type
Mobile Home
Storeys
1.00
Square Footage
858 sqft
Bathrooms Total
1
Bedrooms Above Ground
2
Bedrooms Total
2
Amenities
Shopping
Exterior Finish
Vinyl siding
Fireplace Present
No
Basement Type
None
Basement Features
Building Heating Type
Forced air, Hot water radiator heat
Heating Fuel
Natural gas
Building Cooling Type
Central air conditioning

Utilities

Water
Drilled Well
Utility Sewer
Septic System

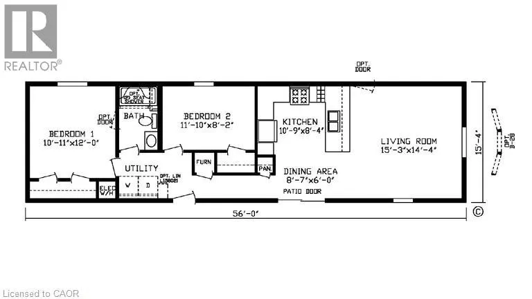
Room Layout

4pc Bathroom
Main level
5'0'' x 5'0''
Living room
Main level
15'3'' x 14'4''
Dining room
Main level
8'7'' x 6'0''
Kitchen
Main level
10'9'' x 8'4''
Bedroom
Main level
11'10'' x 8'2''
Primary Bedroom
Main level
10'11'' x 12'0''

Location

Learn more about this property
Listing provided by:
2 Percent Realty
MLS® number:
40816690
Agent:
Peter Lawrence Finlay Buchanan
*Indicates required field
Name is required
Email is required
Please enter a valid phone number (e.g., 416-111-1111).

Street Spotlight - For sale