5035 North Service Road Unit# A-1, Burlington, Ontario L7L 5V2

Listed for:
$15
0 beds
0 baths
Listed 126 days ago
5035 North Service Road Unit# A-1, Burlington, Ontario L7L 5V2

View all 15 photos

Learn more about this property
Listing provided by:
Martel Commercial Realty Inc.
MLS® number:
40748167
Agent:
Scott Overell
*Indicates required field
Name is required
Email is required
Please enter a valid phone number (e.g., 416-111-1111).

About

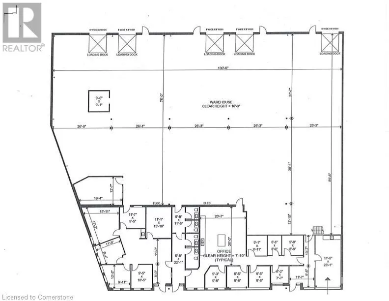
Appleby Line and North Service Road at the corner of North Service Road and Benson Drive Fantastic location for both employees and customers. Fronting on the North Service Road just east of Appleby Line this 14,189 sq.ft. warehouse is facing the North Service Road. 5 fully accessible full hight Dock Loading doors for your shipping requirements. This space includes an amazing 3875 sq. ft. of finished office space consisting of a mixture of open to private office space including all the necessary boardroom(s),lunchrooms and more. T.M.I. estimated to be $4.61 p.s.f. for 2025. (id:27476)

Property Highlights

MLS® Number
40748167
Type
Industrial
Ownership Type
Freehold
Land Size
3.2181 ac|2 - 4.99 acres

Building

Storeys
1.00
Square Footage
14189 sqft
Amenities
Public Transit
Exterior Finish
Concrete, Steel
Fireplace Present
No
Basement Type
None
Basement Features
Building Heating Type
Heating Fuel
Building Cooling Type

Utilities

Water
Municipal water
Utility Sewer
Municipal sewage system

Location