835 Harrington Court Unit# 101-c, Burlington, Ontario L7N 3P3

Listed for:
$10
0 beds
0 baths
Listed 106 days ago
835 Harrington Court Unit# 101-c, Burlington, Ontario L7N 3P3

View all 13 photos

Learn more about this property
Listing provided by:
Martel Commercial Realty Inc.
MLS® number:
40761456
Agent:
Scott Overell
*Indicates required field
Name is required
Email is required
Please enter a valid phone number (e.g., 416-111-1111).

About

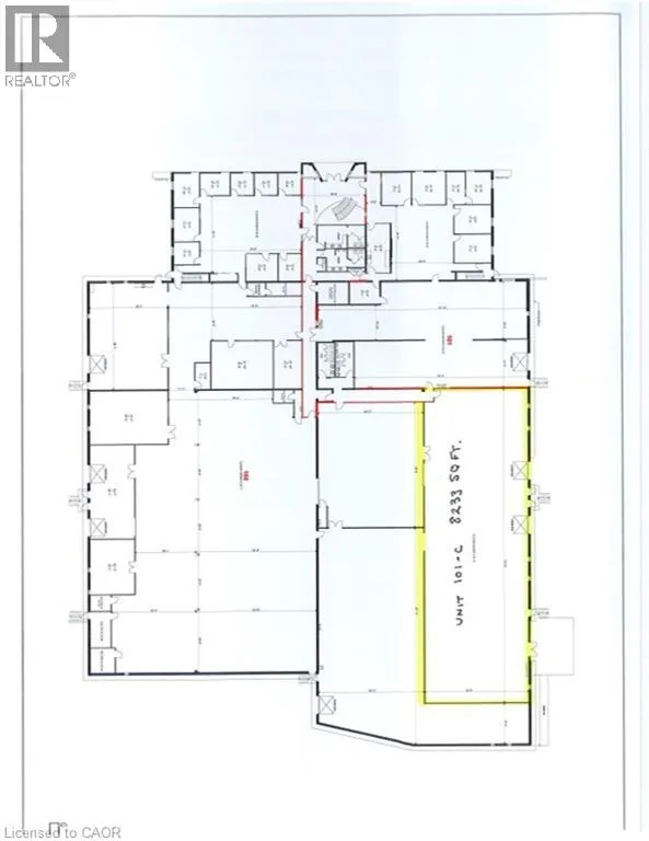
South Side of Harvester Road, West of Walkers Line Clean Flex Warehouse space with clear span bay measuring 50'x140'. DOCK LOADING with Direct access to the parking from multiple locations allows for fantastic flexibility. Other sizes and configurations also available please see other MLS listings. (id:27476)

Property Highlights

MLS® Number
40761456
Type
Industrial
Ownership Type
Freehold
Land Size
2 - 4.99 acres
Parking Space Total
10

Building

Storeys
1.00
Square Footage
8233 sqft
Fireplace Present
No
Basement Type
None
Basement Features
Building Heating Type
Heating Fuel
Building Cooling Type

Utilities

Water
Municipal water
Utility Sewer
Municipal sewage system

Location