4 Tamarack - 4449 Milburough Line, Burlington, Ontario L7P 0C5

Listed for:
$369,900
1 beds
1 baths
Listed 23 days ago
Modular for rent: 4 Tamarack - 4449 Milburough Line, Burlington, Ontario L7P 0C5

View all 24 photos

Learn more about this property
Listing provided by:
KELLER WILLIAMS EDGE REALTY
MLS® number:
W12482407
Agent:
Cindy Zupanovic
*Indicates required field
Name is required
Email is required
Please enter a valid phone number (e.g., 416-111-1111).

About

Cross Streets: Concession #6/Milburough. ** Directions: Turn right from Concession #6 into Lost Forest Park, go to gate (must have code to proceed - will be provided upon booking a showing), Keep to the right, 4th treet on left (Tamarack), first house on right by visitors parking. Sharp home, move in condition, in Burlington's highly desired Lost Forest Park with secure gated entry. Located just minutes from Memorial Park in the Village of Waterdown. 1 bed, 1 bath, Home features a spacious family room with an abundance of windows. Large eat-in kitchen with quality cabinetry, flooring, appliances, and plenty of room for dining. Off family room and kitchen is a walkout to a huge 36 X 10 covered deck. This is an End Unit, besides visitors parking, great when you have guests!! The monthly fee includes land lease, maintenance of the park and systems and property tax (id:27476)

Property Highlights

MLS® Number
W12482407
Type
Single Family
Community Name
Rural Burlington
Ownership Type
Leasehold/Leased Land
Land Size
45 x 65 FT
Parking Space Total
2

Building

Building Type
Modular
Storeys
1.00
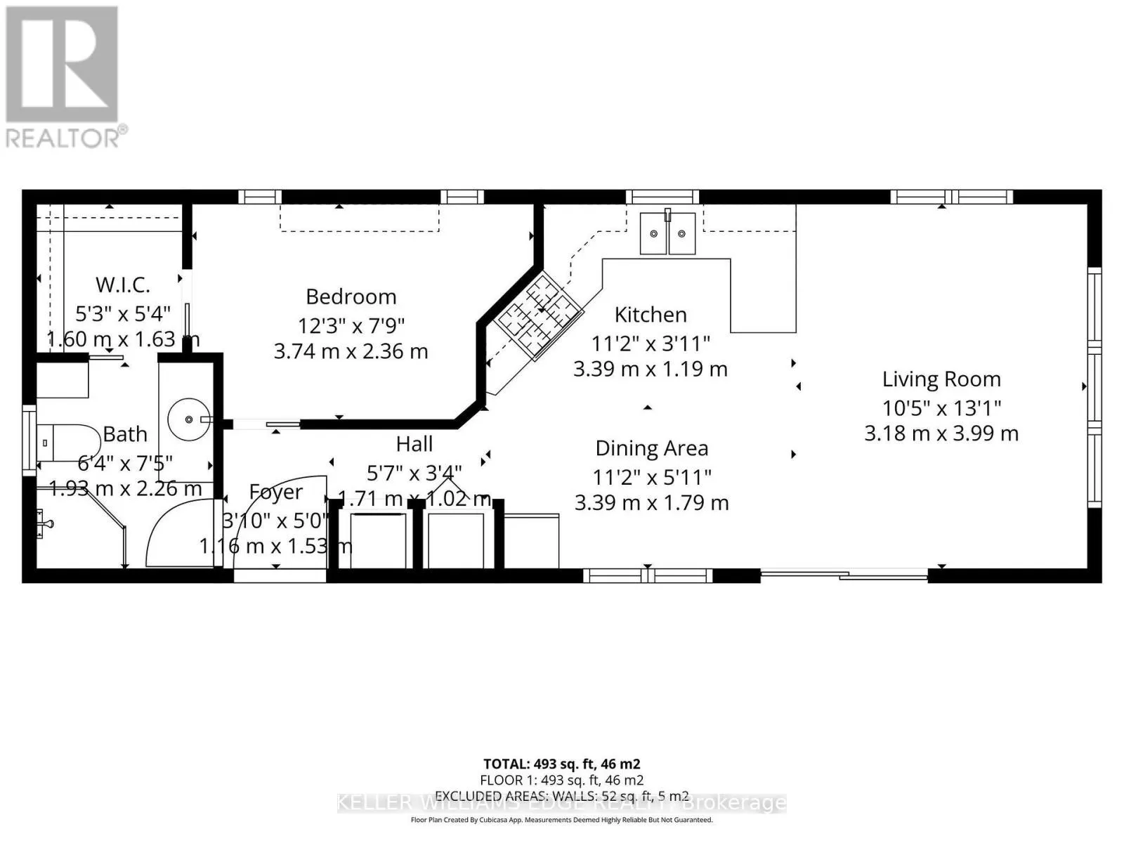
Square Footage
0 - 699 sqft
Bathrooms Total
1
Bedrooms Above Ground
1
Bedrooms Total
1
Exterior Finish
Vinyl siding
Fireplace Present
No
Basement Type
Crawl space
Basement Features
Building Heating Type
Forced air
Heating Fuel
Propane
Building Cooling Type
Central air conditioning

Utilities

Power
Generator
Utility Sewer
Septic System

Room Layout

Family room
Main level
3.17 m x 3.99 m
Kitchen
Main level
3.4 m x 3.99 m
Primary Bedroom
Main level
3.73 m x 2.44 m
Bathroom
Main level
1.93 m x 2.26 m

Location

Street Spotlight - For sale