A606 - 3210 Dakota Common Circle, Burlington, Ontario L7M 2A8

Listed for:
$2,900
3 beds
2 baths
Listed 51 days ago
Apartment for rent: A606 - 3210 Dakota Common Circle, Burlington, Ontario L7M 2A8

View all 39 photos

Learn more about this property
Listing provided by:
RISING SUN REAL ESTATE INC.
MLS® number:
W12553534
Agent:
Shiv Ram Kri Shiv Ram Krishna
*Indicates required field
Name is required
Email is required
Please enter a valid phone number (e.g., 416-111-1111).

About

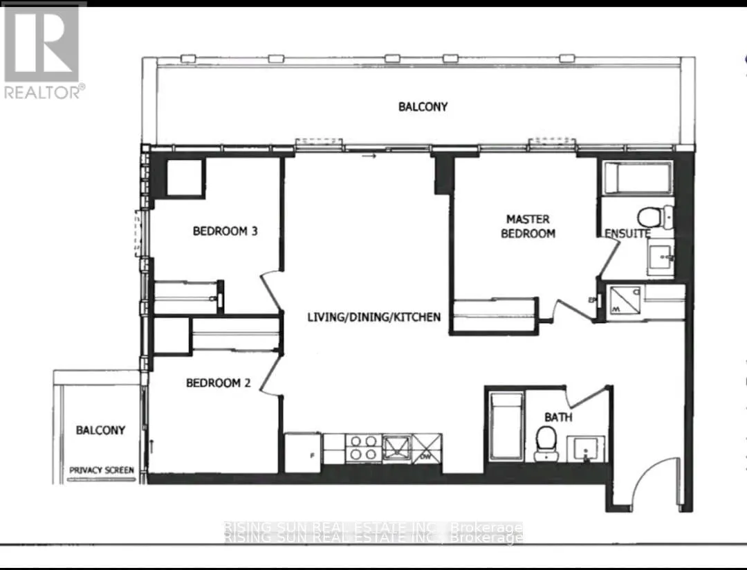
Cross Streets: Appleby & Dundas. ** Directions: East. Welcome to Valera Condo A606! *This beautiful corner unit offers 3 bedrooms, 2 full bathrooms, and 1 P2 underground parking space. With floor-to-ceiling windows and 9-foot ceilings, the condo is filled with natural light and offers unobstructed views with stunning sunsets. Pet spa and party room! Huge Living Space and large balconies. Upgrades: $55,000+ in modern finishes, including a kitchen island, upgraded backsplash & microwave over the stove, upgraded floor and ground floor storage Kitchen: Whirlpool stainless steel appliances, Bedrooms: Each fits a queen-sized bed comfortably. Smart Home: Keyless entry & smart thermostat for remote temperature control. Unlimited fiber internet from Bell Luxury Amenities: Rooftop pool, gym, sauna & steam room, BBQ area, party/meeting room, 24-hour security. Location: Close to high-ranking schools, shopping, restaurants, public transit, and easy access to Hwy 407 & QEW. The listing agent is the owner of the property. (id:27476)

Property Highlights

MLS® Number
W12553534
Type
Single Family
Community Name
Alton
Ownership Type
Condominium/Strata
Parking Space Total
1

Building

Building Type
Apartment
Square Footage
0 - 499 sqft
Bathrooms Total
2
Bedrooms Above Ground
3
Bedrooms Total
3
Amenities
Security/Concierge, Exercise Centre, Party Room, Sauna, Storage - Locker Public Transit, Schools, Park, Place of Worship
Exterior Finish
Concrete
Fireplace Present
No
Basement Type
None
Basement Features
Building Heating Type
Coil Fan
Heating Fuel
Natural gas
Building Cooling Type
Central air conditioning

Location

Street Spotlight - For rent