1501 Upper Middle Road Unit# 2, Burlington, Ontario L7P 4M5

Listed for:
$729,000
2 beds
4 baths
Listed 1 day ago
Row / Townhouse for rent: 1501 Upper Middle Road Unit# 2, Burlington, Ontario L7P 4M5

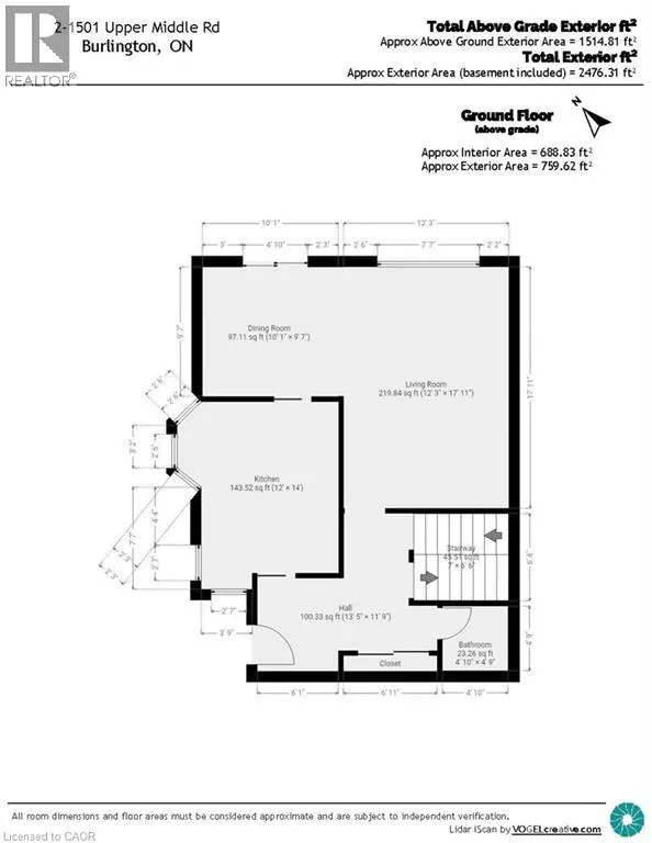
View all 38 photos

Learn more about this property
Listing provided by:
Royal LePage State Realty Inc.
MLS® number:
40794455
Agent:
Lori Macrae
*Indicates required field
Name is required
Email is required
Please enter a valid phone number (e.g., 416-111-1111).

About

Brant St to Upper Middle Rd Welcome to #2-1501 Upper Middle Road, located in beautiful Burlington. This well-maintained townhome offers comfort, convenience and exceptional value in a desirable, quiet community. The main floor features a welcoming foyer and neutral tones throughout. The eat-in kitchen is complete with California shutters, pot lights, ceramic flooring, dishwasher, built-in microwave, and pantry cabinet for extra storage. The dining room offers hardwood flooring and sliding doors leading to a private, fenced backyard with beautiful gardens (no grass for easy maintenance!) and a new retractable awning. The living room also features hardwood flooring, large windows with California shutters, and an ornamental gas fireplace. Completing the main level is a convenient powder room. Upstairs offers two spacious bedrooms, including a primary with large sitting area, walk-in closet, and two-piece ensuite. The second bedroom with double closets enjoys easy access to the four-piece main bath, which includes a tub/shower combination with grab bars for added support. The finished lower level features a large rec room, ideal for entertaining or relaxing, a 3-piece bath, laundry room with stackable washer/dryer and plenty of storage space. Direct access from the single-car garage adds everyday convenience. Recent updates include a new furnace (2025), air conditioner (2024), roof (2025), windows and patio doors (2025). The well-managed condo community offers excellent inclusions such as snow removal, landscaping, and maintenance of the roof, windows, exterior walls, chimneys, and garage. Enjoy maintenance-free living with the added bonus of an outdoor pool and tennis court for residents to enjoy. Ideal for those looking to downsize, first-time buyers, professionals wanting a lock and go lifestyle, or anyone looking for a move-in-ready property in a wonderful Burlington location. Welcome Home! (id:27476)

Property Highlights

MLS® Number
40794455
Type
Single Family
Maintenance Fee
630.00
Ownership Type
Condominium
Land Size
Unknown
Parking Space Total
2

Building

Building Type
Row / Townhouse
Storeys
2.00
Square Footage
2149 sqft
Bathrooms Total
4
Bedrooms Above Ground
2
Bedrooms Total
2
Amenities
Park, Place of Worship, Public Transit, Schools, Shopping
Exterior Finish
Brick
Fireplace Present
Yes
Basement Type
Full (Finished)
Basement Features
Building Heating Type
Forced air
Heating Fuel
Natural gas
Building Cooling Type
Central air conditioning

Utilities

Water
Municipal water
Utility Sewer
Municipal sewage system

Room Layout

4pc Bathroom
Second level
8'11'' x 4'11''
Bedroom
Second level
19'4'' x 11'0''
2pc Bathroom
Second level
7'3'' x 5'1''
Primary Bedroom
Second level
23'9'' x 12'9''
Utility room
Basement
7'6'' x 3'10''
Recreation room
Basement
25'8'' x 17'6''
Laundry room
Basement
7'6'' x 5'3''
3pc Bathroom
Basement
Measurements not available
2pc Bathroom
Main level
4'10'' x 4'9''
Kitchen
Main level
12'0'' x 14'0''
Dining room
Main level
10'1'' x 9'7''
Living room
Main level
17'11'' x 12'3''

Location

Street Spotlight - For sale