911 - 5280 Lakeshore Road, Burlington, Ontario L7L 5R1

Listed for:
$970,000
2 beds
2 baths
Listed 29 days ago
Apartment for rent: 911 - 5280 Lakeshore Road, Burlington, Ontario L7L 5R1

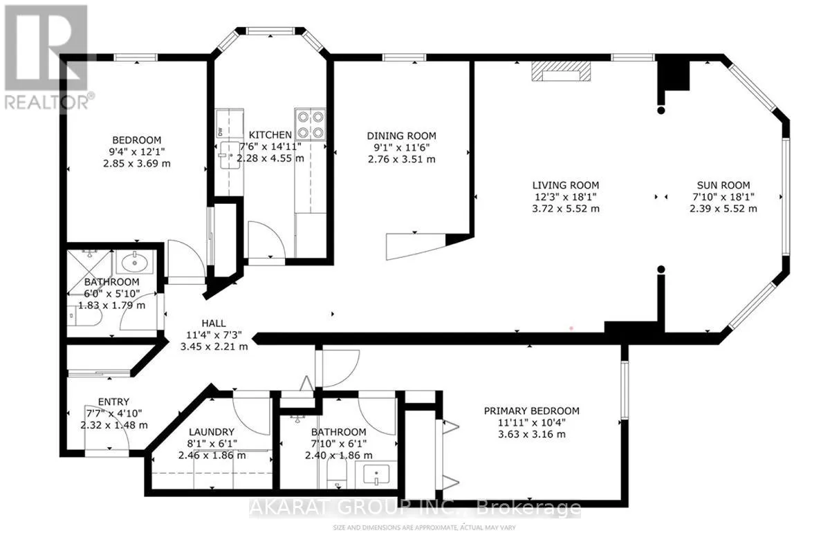
View all 49 photos

About

Cross Streets: Lakeshore Rd & Kenwood Ave. ** Directions: Lakeshore Rd between Burloak Dr and Appleby Line; West of Burloak Dr. Building on the south side of Lakeshore Rd, directly on the lake. Welcome to this bright, south-facing waterfront condo with direct views of Lake Ontario. This well-laid-out 2-bedroom, 2-bathroom suite offers approximately 1,277 sq ft of living space with laminate flooring throughout and large windows that fill the unit with natural light.The living area comes with an electric fireplace and flows into a spacious sunroom overlooking the lake, ideal for everyday living or entertaining. The kitchen features ample cabinetry, stone countertops, stainless steel appliances, and a breakfast area by the bay window. The primary bedroom includes a 3-piece ensuite and closet. The second bedroom is well sized and located near the main 3-piece bathroom. A separate laundry room provides in-suite convenience.Property comes with one underground parking space (exclusive use). Maintenance fees include heat, hydro, water, parking, common elements, and building insurance.Well-managed waterfront building with amenities including outdoor pool, tennis court, exercise room, party/meeting room, sauna, community BBQ, elevator, and beautifully maintained lakefront grounds with a seawall. Direct lake access and south shoreline exposure.Convenient location close to parks, trails, public transit, and amenities, with easy access to Appleby GO and major highways. (id:27476)

Property Highlights

MLS® Number
W12706752
Type
Single Family
Community Name
Appleby
Maintenance Fee
1147.41
Ownership Type
Condominium/Strata
Parking Space Total
1

Building

Building Type
Apartment
Square Footage
1200 - 1399 sqft
Bathrooms Total
2
Bedrooms Above Ground
2
Bedrooms Total
2
Amenities
Exercise Centre, Party Room, Fireplace(s) Park, Public Transit
Exterior Finish
Concrete
Fireplace Present
Yes
Basement Type
None
Basement Features
Building Heating Type
Heat Pump, Not known
Heating Fuel
Electric
Building Cooling Type
Central air conditioning

Location

Learn more about this property
Listing provided by:
AKARAT GROUP INC.
MLS® number:
W12706752
Agent:
M. Abusaa
*Indicates required field
Name is required
Email is required
Please enter a valid phone number (e.g., 416-111-1111).

Street Spotlight - For sale