2060 Lakeshore Road Unit# 1303, Burlington, Ontario L7R 0G2

Listed for:
$1,550,000
2 beds
2 baths
Listed 60 days ago
Apartment for rent: 2060 Lakeshore Road Unit# 1303, Burlington, Ontario L7R 0G2

View all 48 photos

About

Lakeshore Road and Elizabeth Street Experience unparalleled luxury at Bridgewater Residences on the lake. This stunning 1,269SF unit boasts a flawless layout and breathtaking, unobstructed views of Lake Ontario, from Burlington to the Toronto skyline. Every detail speaks of quality, from the hardwood floors to the high-end Thermador built in kitchen appliances, including a 5-burner gas range set in granite countertops. Floor-to-ceiling windows flood the open-concept living and dining area with natural light, while offering access to a spacious balcony equipped for BBQs. Both bedrooms feature spectacular views and luxurious en-suites—the primary with a 5-piece set including a separate tub and glass shower, all complemented by marble and granite finishes with heated floors. The secondary bedroom enjoys ensuite privileges and also boasts heated floors. A generous corner den provides a flexible space, ideal for a home office or gym, equipped with built-in cabinetry, which can be easily converted into a 3rd bedroom. Included are central vacuum and a garbage disposal unit. Enjoy the building’s exclusive amenities: indoor pool, rooftop courtyard, dual gyms, games and party rooms, and a lakefront deck. Benefit from 24-hour concierge, bike storage, valet visitor parking, and two EV-ready parking spaces, enhancing this premium living experience. (id:27476)

Property Highlights

MLS® Number
40801338
Type
Single Family
Maintenance Fee
1647.76
Ownership Type
Condominium
Land Size
under 1/2 acre
Parking Space Total
2

Building

Building Type
Apartment
Storeys
1.00
Square Footage
1269 sqft
Bathrooms Total
2
Bedrooms Above Ground
2
Bedrooms Total
2
Amenities
Exercise Centre, Party Room Marina, Park, Schools
Exterior Finish
Brick
Fireplace Present
No
Basement Type
None
Basement Features
Building Heating Type
Forced air
Heating Fuel
Natural gas
Building Cooling Type
Central air conditioning

Utilities

Water
Municipal water
Utility Sewer
Municipal sewage system

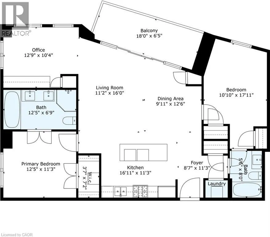
Room Layout

Office
Main level
12'9'' x 10'4''
4pc Bathroom
Main level
5'6'' x 8'0''
Bedroom
Main level
10'10'' x 17'11''
5pc Bathroom
Main level
12'5'' x 6'9''
Primary Bedroom
Main level
12'5'' x 11'3''
Laundry room
Main level
3'10'' x 3'0''
Living room
Main level
11'2'' x 16'0''
Dining room
Main level
9'11'' x 12'6''
Kitchen
Main level
16'11'' x 11'3''

Location

Learn more about this property
Listing provided by:
Royal LePage Burloak Real Estate Services
MLS® number:
40801338
Agent:
Cathy Rocca
*Indicates required field
Name is required
Email is required
Please enter a valid phone number (e.g., 416-111-1111).

Street Spotlight - For sale