509 - 500 Plains Road E, Burlington, Ontario L7T 0C8

Listed for:
$2,200
2 beds
1 baths
Listed 37 days ago
Apartment for rent: 509 - 500 Plains Road E, Burlington, Ontario L7T 0C8

View all 7 photos

About

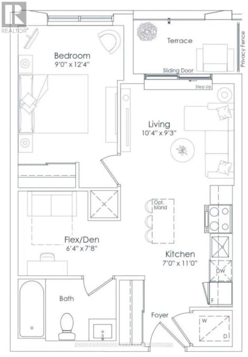
Cross Streets: King Rd & Plains Rd E. ** Directions: King Rd & Plains Rd E - across from school. Brand new, never lived in 1 Bedroom + 1 Den available for lease in upscale Burlington LaSalle community. Bright & spacious open concept layout features combined Living, Den & Kitchen with light laminate flooring and high ceilings throughout. Kitchen includes two tone cabinetry, quartz counters, kitchen island, & stainless steel fridge, stove & microwave. Full 4 piece bathroom (shower, bathtub, toilet, and vanity sink). Also includes In-Suite Laundry & Private Balcony with panoramic views. Building amenities include Gym, Yoga Studio, Sky Lounge Rooftop Terrace with BBQ Stations, Co-Working Lounge, Party Room & Pet Wash Station. Close Proximity To Aldershot GO Station, Burlington GO Station, Schools, Burlington Centre, Mapleview Mall, LaSalle Park & Marina. (id:27476)

Property Highlights

MLS® Number
W12773370
Type
Single Family
Community Name
LaSalle
Ownership Type
Condominium/Strata
Parking Space Total
1

Building

Building Type
Apartment
Square Footage
600 - 699 sqft
Bathrooms Total
1
Bedrooms Above Ground
1
Bedrooms Total
2
Amenities
Security/Concierge, Exercise Centre, Party Room, Visitor Parking, Storage - Locker
Exterior Finish
Brick, Concrete
Fireplace Present
Yes
Basement Type
None
Basement Features
Building Heating Type
Forced air
Heating Fuel
Natural gas
Building Cooling Type
Central air conditioning, Ventilation system

Location

Learn more about this property
Listing provided by:
HOMELIFE/MIRACLE REALTY LTD
MLS® number:
W12773370
Agent:
Shah Faridi
*Indicates required field
Name is required
Email is required
Please enter a valid phone number (e.g., 416-111-1111).

Street Spotlight - For rent