310 - 2088 James Street, Burlington, Ontario L7R 0H2

Listed for:
$2,895
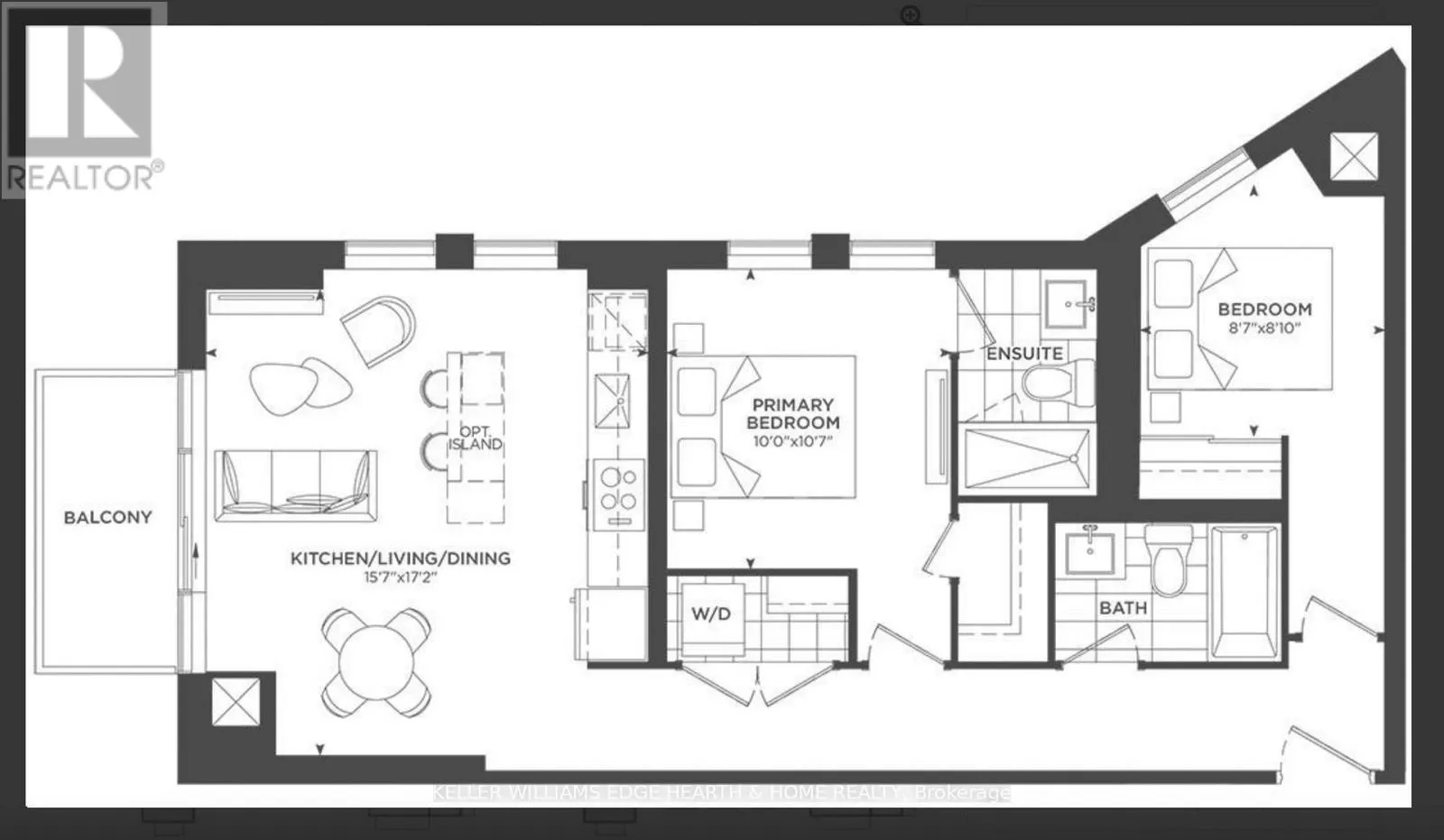
2 beds
2 baths
Listed 32 days ago
Apartment for rent: 310 - 2088 James Street, Burlington, Ontario L7R 0H2

View all 36 photos

About

Cross Streets: Martha. ** Directions: Brant Street to James Street, then South on Martha. Location, location, location. Be the first to occupy this state of the art suite in this state of the art building. Prime downtown Burlington local. Walk to shopping, restaurants, lakefront park, pier, art gallery, library, hospital, preforming arts centre, walking trails and transit. This BRAND NEW 2 bedroom, 2 bath suite offers sunlit rooms in new luxurious building with plenty of amenities. In suite laundry facilities. Sleek kitchen with quartz counters and centre island. Balcony with southern exposure. Window coverings included. Fob locking system on doors. Virtual valet at front lobby with concierge/security services. Amenities include, pet wash, roofs top terrace with BBQ's, loft lounge, exercise room with an array of equipment, yoga room. 1 underground parking space with EV charger, 1 storage locker. (id:27476)

Property Highlights

MLS® Number
W12774502
Type
Single Family
Community Name
Brant
Maintenance Fee
0.00
Ownership Type
Condominium/Strata
Parking Space Total
1

Building

Building Type
Apartment
Square Footage
900 - 999 sqft
Bathrooms Total
2
Bedrooms Above Ground
2
Bedrooms Total
2
Amenities
Storage - Locker, Security/Concierge
Exterior Finish
Concrete
Fireplace Present
No
Basement Type
None
Basement Features
Building Heating Type
Forced air
Heating Fuel
Natural gas
Building Cooling Type
Central air conditioning

Location

Learn more about this property
Listing provided by:
KELLER WILLIAMS EDGE HEARTH & HOME REALTY
MLS® number:
W12774502
Agent:
Tamer E Fahmi
*Indicates required field
Name is required
Email is required
Please enter a valid phone number (e.g., 416-111-1111).

Street Spotlight - For rent