15 Ireson Road, Burlington, Ontario L7P 0T2

Listed for:
$1,449,900
5 beds
2 baths
Listed 2 days ago
House for rent: 15 Ireson Road, Burlington, Ontario L7P 0T2

View all 42 photos

About

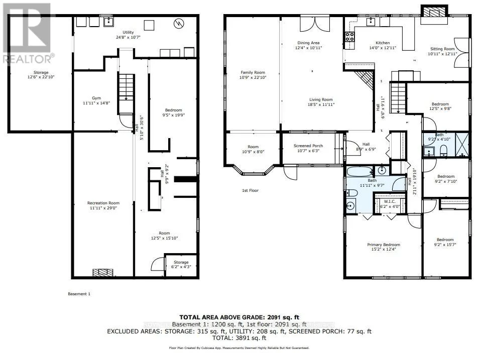
Cross Streets: Waterdown Road. ** Directions: Waterdown Road to Ireson Road. Key location for nature lovers, minutes from Smoky Hollow waterfalls, and countless trails to enjoy. This custom corner-lot ranch-style bungalow offers the perfect blend of nature and everyday convenience for families. With 3291sf of living space, this home delivers comfort and functionality, all surrounded by mature trees and peaceful scenery while still being close to daily amenities, GO Station, Hwys, Waterdown, Burlington and Hamilton. Beautiful curb appeal welcomes you with manicured gardens, glass-enclosed front porch, and large side yard w/ a wrought iron fence. Rare 9-car parking provides incredible flexibility for families or guests. Inside, an open-concept layout showcases hardwood flooring, large windows, and tons of natural light throughout. The living room features a fireplace, while the dining room offers a walkout to the yard. A den w/ a bay window creates an ideal reading nook or workspace. The spacious kitchen is designed for family life with tile backsplash, granite countertops, custom cabinetry, breakfast bar, and Whirlpool appliances, flowing seamlessly into a warm sitting room w/ a stone-surround gas fireplace. The main level features a spacious primary retreat w/ walk-in closet and private 4pc ensuite with dual vanity, along with three additional well-sized bedrooms and a modern 3pc bath with walk-in shower - ideal for busy family mornings. The finished basement expands your living space with laminate flooring, a large rec room with fireplace, dedicated home gym, and an additional bedroom - perfect for teens, guests, or multi-generational living. Step outside to an expansive backyard designed for making memories, featuring endless green space, a shed, and a large wood deck with pergola for relaxing or entertaining. The fenced above-ground pool with surrounding deck creates the ultimate summer hangout for kids and family gatherings. A rare opportunity to enjoy privacy, and nature - all while staying connected to everything your family needs. (id:27476)

Property Highlights

MLS® Number
W12788240
Type
Single Family
Community Name
Grindstone
Ownership Type
Freehold
Land Size
203.9 x 105 FT
Parking Space Total
9

Building

Building Type
House
Storeys
1.00
Square Footage
2000 - 2500 sqft
Bathrooms Total
2
Bedrooms Above Ground
4
Bedrooms Total
5
Amenities
Fireplace(s) Park, Public Transit, Schools
Exterior Finish
Brick, Vinyl siding
Fireplace Present
Yes
Basement Type
Full (Finished)
Basement Features
Building Heating Type
Forced air
Heating Fuel
Natural gas
Building Cooling Type
Central air conditioning

Utilities

Water
Municipal water
Utility Sewer
Sanitary sewer

Room Layout

Recreational, Games room
Basement
3.63 m x 8.84 m
Exercise room
Basement
3.63 m x 4.47 m
Bedroom 5
Basement
2.87 m x 6.02 m
Other
Basement
3.78 m x 4.83 m
Other
Basement
3.81 m x 6.96 m
Utility room
Basement
7.52 m x 3.23 m
Primary Bedroom
Main level
4.62 m x 3.76 m
Other
Main level
3.23 m x 1.91 m
Family room
Main level
3.28 m x 6.96 m
Living room
Main level
5.61 m x 3.63 m
Kitchen
Main level
4.27 m x 3.94 m
Dining room
Main level
3.76 m x 3.33 m
Sitting room
Main level
3.33 m x 3.94 m
Bedroom 2
Main level
3.78 m x 2.95 m
Bedroom 3
Main level
2.79 m x 4.75 m
Bedroom 4
Main level
2.79 m x 2.39 m
Other
Main level
3.28 m x 2.44 m

Location

Learn more about this property
Listing provided by:
ROYAL LEPAGE BURLOAK REAL ESTATE SERVICES
MLS® number:
W12788240
Agent:
Cathy Rocca
*Indicates required field
Name is required
Email is required
Please enter a valid phone number (e.g., 416-111-1111).