195 Wilton Street, Burlington, Ontario L7N 1V8

Listed for:
$5,799,000
5 beds
7 baths
Listed 46 days ago
House for rent: 195 Wilton Street, Burlington, Ontario L7N 1V8

View all 12 photos

About

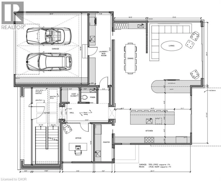
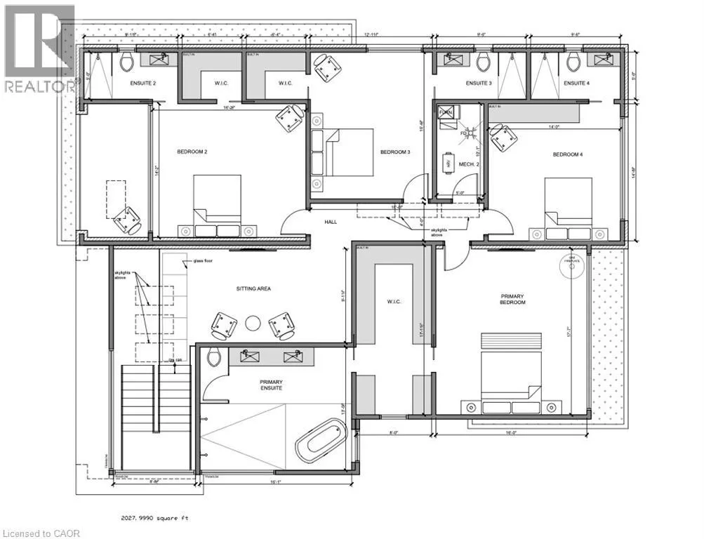
Lakeshore Rd/Wilton Proposed Luxury Residence in the Heart of Roseland. Exceptional opportunity to purchase a fully approved land and build package on a prime oversized lot in one of Burlington’s most prestigious neighbourhoods. Designed by SMPL, this striking custom home blends modern architecture with timeless materials and offers approx 6,700+ sq ft of finished living space. The thoughtfully designed main floor features expansive open concept living with a dramatic chef’s kitchen, oversized island, walk-in pantry, wine display, and seamless flow to the dining and living areas. A private office, generous foyer, mudroom with garage access, and double car garage complete the level. The second level offers 4 spacious bedrooms, each with ensuites, including a luxurious primary retreat with spa-inspired ensuite, large walk-in closet, and private sitting area. The finished lower level is designed for entertaining and lifestyle, featuring a large recreation area with wet bar, dedicated theatre room, gym, guest bedroom with ensuite and walk-in closet, plus additional storage and mechanical space. Architectural highlights include dramatic arched window openings, expansive glass, and a covered outdoor living area overlooking the backyard with proposed pool and waterfall feature. The design offers a rare combination of bold architecture and functional family living. This offering includes both the building lot and construction by a Tarion registered builder, allowing buyers the opportunity to customize finishes to their taste. Located on a quiet tree-lined street surrounded by luxury custom homes and within walking distance to top-rated schools, parks and the lake. Rare opportunity to build a distinctive custom residence in South Burlington’s most sought-after community. Land-only listing also available. Buyer to enter into a construction agreement with the builder. Pricing subject to final specifications. Renderings and plans are for illustrative purposes only. (id:27476)

Property Highlights

MLS® Number
40808188
Type
Single Family
Ownership Type
Freehold
Land Size
0.22 ac|under 1/2 acre
Parking Space Total
6

Building

Building Type
House
Storeys
2.00
Square Footage
6601 sqft
Bathrooms Total
7
Bedrooms Above Ground
4
Bedrooms Total
5
Amenities
Park, Place of Worship, Schools, Shopping
Exterior Finish
Brick Veneer, Wood
Fireplace Present
Yes
Basement Type
Full (Finished)
Basement Features
Building Heating Type
Forced air
Heating Fuel
Natural gas
Building Cooling Type
Central air conditioning

Utilities

Water
Municipal water
Utility Sewer
Municipal sewage system

Room Layout

5pc Bathroom
Second level
Measurements not available
3pc Bathroom
Second level
Measurements not available
3pc Bathroom
Second level
Measurements not available
3pc Bathroom
Second level
Measurements not available
Bedroom
Second level
14'6'' x 14'0''
Bedroom
Second level
13'10'' x 14'9''
Bedroom
Second level
16'3'' x 14'2''
Primary Bedroom
Second level
17'2'' x 16'10''
4pc Bathroom
Basement
Measurements not available
2pc Bathroom
Basement
5'6'' x 4'4''
Bedroom
Basement
10'1'' x 18'4''
Recreation room
Basement
25'4'' x 38'6''
2pc Bathroom
Main level
5'0'' x 4'6''
Den
Main level
9'9'' x 12'0''
Kitchen
Main level
24'11'' x 18'0''
Dining room
Main level
10'0'' x 20'0''
Living room
Main level
17'0'' x 20'6''

Location

Learn more about this property
Listing provided by:
RE/MAX Escarpment Realty Inc.
MLS® number:
40808188
Agent:
David Bakowsky
*Indicates required field
Name is required
Email is required
Please enter a valid phone number (e.g., 416-111-1111).