168 - 2050 Upper Middle Road, Burlington, Ontario L7P 3R9

Listed for:
$579,900
3 beds
2 baths
Listed 73 days ago
Row / Townhouse for rent: 168 - 2050 Upper Middle Road, Burlington, Ontario L7P 3R9

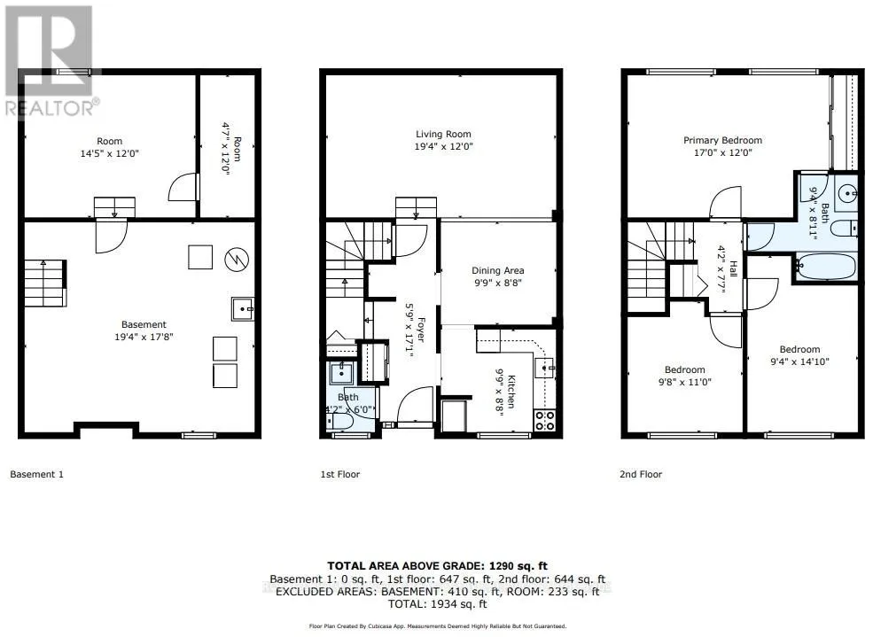
View all 29 photos

About

Brant Street Welcome to this beautifully maintained family home set on a private ravine lot in one of Burlington's most sought-after communities. Offering 1,523 sq ft of thoughtfully designed living space, this home is perfectly positioned within walking distance to schools, a shopping plaza, Brant Hills Community Centre, and the indoor pool. Families will especially appreciate being near one of Burlington's most renowned schools, Paul A. Fisher. With quick access to Highways 403 and 407 and just a 10-minute drive to downtown Burlington, Mapleview, and Burlington Centre, convenience truly meets lifestyle here. The front exterior welcomes you with charming gardens, a private walkway, plus two dedicated parking spaces. Inside, you'll find a bright and inviting main level with a functional flow and hardwood flooring throughout. The updated kitchen features subway tile backsplash, quartz countertops, stainless steel appliances, and a sleek range hood-perfect for everyday family meals and entertaining alike. The dining room overlooks the sunken living room, where wall-to-wall windows fill the space with natural light and a walkout leads directly to the backyard. A convenient 2-piece powder room completes the main floor. Upstairs, hardwood flooring continues throughout. The spacious primary bedroom offers ensuite privileges to the 4-piece main bath, while two additional bedrooms provide comfortable space for children, guests, or a home office. A sunken flex room (currently a playroom) in the basement adds extra versatility for families. Step outside to a fully fenced backyard designed for both relaxation and play. Enjoy the patio, lush gardens, and handy shed-all backing onto a beautiful ravine that offers privacy, tranquility, and a scenic natural backdrop year-round. This is an incredible opportunity to plant roots in a family-friendly neighbourhood surrounded by parks, top schools, and everyday amenities-where comfort, convenience, and nature come together seamlessly. (id:27476)

Property Highlights

MLS® Number
W12843768
Type
Single Family
Community Name
Brant Hills
Maintenance Fee
698.00
Ownership Type
Condominium/Strata
Parking Space Total
2

Building

Building Type
Row / Townhouse
Storeys
2.00
Square Footage
1200 - 1399 sqft
Bathrooms Total
2
Bedrooms Above Ground
3
Bedrooms Total
3
Amenities
Visitor Parking Park, Public Transit, Schools
Exterior Finish
Brick, Vinyl siding
Fireplace Present
No
Basement Type
N/A (Partially finished)
Basement Features
Building Heating Type
Forced air
Heating Fuel
Natural gas
Building Cooling Type
Central air conditioning

Location

Learn more about this property
Listing provided by:
ROYAL LEPAGE BURLOAK REAL ESTATE SERVICES
MLS® number:
W12843768
Agent:
Cathy Rocca
*Indicates required field
Name is required
Email is required
Please enter a valid phone number (e.g., 416-111-1111).

Street Spotlight - For sale