1206 - 2055 Upper Middle Road, Burlington, Ontario L7P 3P4

Listed for:
$499,900
2 beds
2 baths
Listed 50 days ago
Apartment for rent: 1206 - 2055 Upper Middle Road, Burlington, Ontario L7P 3P4

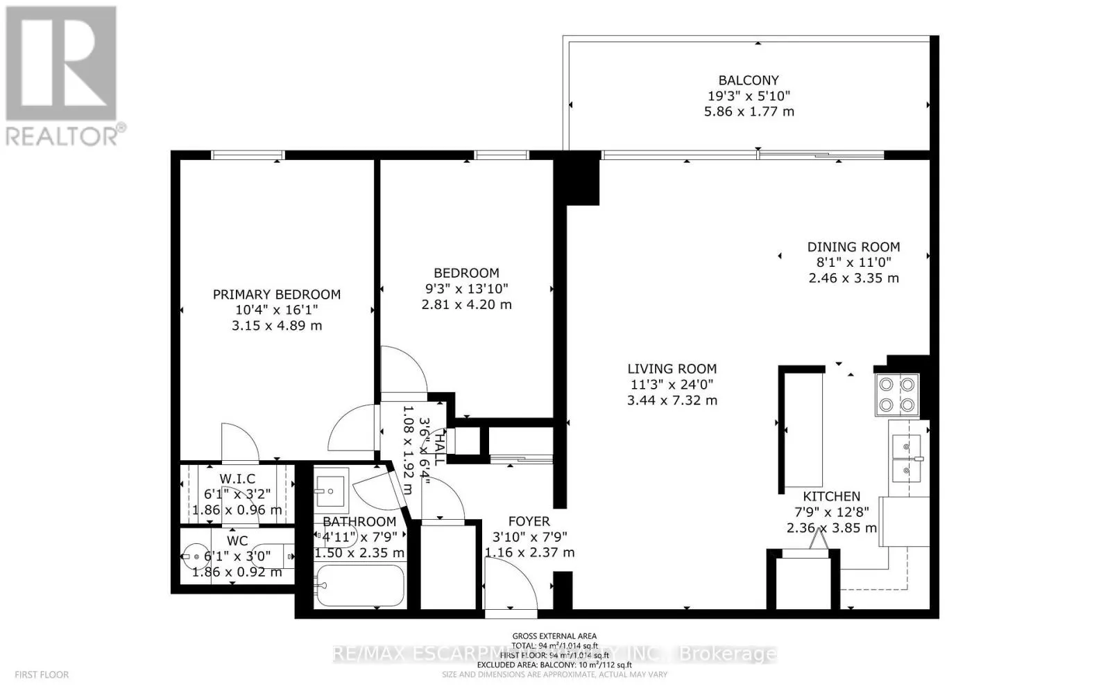
View all 24 photos

About

Cross Streets: BRANT ST. ** Directions: CORNER OF UPPER MIDDLE AND DUNCASTER. Take in that view. This spacious, south-facing two-bedroom suite features a generous living room-ideal for entertaining, catching the game with friends and family, or hosting an intimate dinner. With the lake as your stunning backdrop, the setting is truly captivating. For added convenience, the unit includes in-suite laundry, ample storage, and an additional ground-floor locker. One exclusive parking space is included, with a second available for a modest monthly fee. Ideally located just a short walk from shopping, public transit, parks, and places of worship-and offering quick access to major highways-this condo delivers exceptional connectivity and everyday ease. Residents also enjoy a warm, vibrant community within the building. The condo fee is all-inclusive, covering heat, hydro, water, central air conditioning, Bell Fibe TV, a portion of internet, as well as exterior maintenance, building insurance, common elements, parking, and guest parking. Experience comfort, convenience, and community in one exceptional package-welcome Home (id:27476)

Property Highlights

MLS® Number
W12928570
Type
Single Family
Community Name
Brant Hills
Maintenance Fee
860.32
Ownership Type
Condominium/Strata
Parking Space Total
1

Building

Building Type
Apartment
Square Footage
900 - 999 sqft
Bathrooms Total
2
Bedrooms Above Ground
2
Bedrooms Total
2
Amenities
Car Wash, Visitor Parking, Sauna, Storage - Locker Place of Worship, Park, Public Transit, Schools
Exterior Finish
Stucco
Fireplace Present
No
Basement Type
N/A
Basement Features
Apartment in basement
Building Heating Type
Forced air
Heating Fuel
Natural gas
Building Cooling Type
Central air conditioning

Location

Learn more about this property
Listing provided by:
RE/MAX ESCARPMENT REALTY INC.
MLS® number:
W12928570
Agent:
Patricia E. Snowdon
*Indicates required field
Name is required
Email is required
Please enter a valid phone number (e.g., 416-111-1111).

Street Spotlight - For sale