B608 - 3200 Dakota Common, Burlington, Ontario L7M 2A7

Listed for:
$2,350
2 beds
1 baths
Listed 5 days ago
Apartment for rent: B608 - 3200 Dakota Common, Burlington, Ontario L7M 2A7

View all 11 photos

About

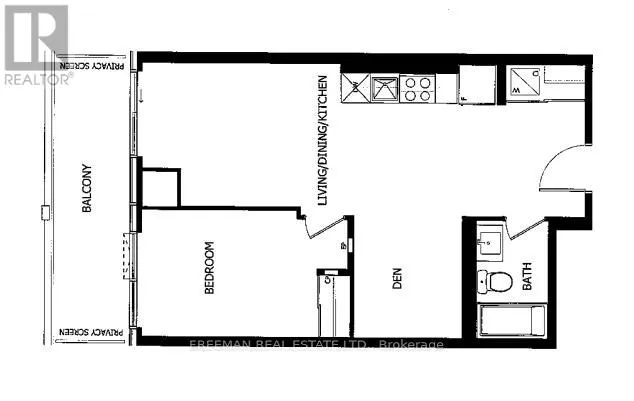
Abbydale & Dundas & Thomas Absolutely Beautiful 6th Floor 1 Bed + Den, 1 Bath Valera Condo in sought after Alton Village Neighbourhood. Interior Living Space 609 + 116 Sq ft Balcony. 9Ft Ceiling. Modern Finishes, S/S Appliances, Quartz Counters, Laminate Floors & In-Suite Stacked Washer & Dryer. 1 Parking & 1 Locker Included! All utilities are through Metergy. No smokers. Quick QEW access, walking distance to shopping centre, restaurants, park and schools. (id:27476)

Property Highlights

MLS® Number
W12928616
Type
Single Family
Community Name
Alton
Ownership Type
Condominium/Strata
Parking Space Total
1

Building

Building Type
Apartment
Square Footage
600 - 699 sqft
Bathrooms Total
1
Bedrooms Above Ground
1
Bedrooms Total
2
Amenities
Storage - Locker
Exterior Finish
Concrete, Stucco
Fireplace Present
No
Basement Type
None
Basement Features
Building Heating Type
Forced air
Heating Fuel
Natural gas
Building Cooling Type
Central air conditioning

Location

Learn more about this property
Listing provided by:
FREEMAN REAL ESTATE LTD.
MLS® number:
W12928616
Agent:
Gurjit Kaur Mann
*Indicates required field
Name is required
Email is required
Please enter a valid phone number (e.g., 416-111-1111).

Street Spotlight - For rent