330 Strathcona Drive, Burlington, Ontario L7L 2E3

Listed for:
$1,899,000
6 beds
4 baths
Listed 14 days ago
House for rent: 330 Strathcona Drive, Burlington, Ontario L7L 2E3

View all 49 photos

About

New street to Strathcona Welcome to 330 Strathcona Drive! Stunning 4 + 2 bedroom/4 bath custom built home (original foundation) in the prestigious Shoreacres neighbourhood of South Burlington. Lovingly and meticulously designed by the current owners in 2007. Wonderful 60 x 150 private lot. Walking distance to some of the top schools in Halton; John T. Tuck elementary (K-8) and Nelson high school. Spacious main floor with large entry, additional mud room space and heated floors. Open concept style eat in chef's kitchen/family room combination with granite counters and large island. Custom built-ins and fire place add to the cozy family room setting. 2 sets of sliding glass doors open to the west facing backyard with large deck and pool sized yard. Separate dining and living rooms make for ideal entertaining space. Hardwood floors throughout the main level. Upper floor boasts separate master suite with walk in closet and spa like 5 piece ensuite. 3 additional bedrooms, convenient laundry and 3 piece bath are perfect for the growing or extended family. The lower level makes for additional living space; in law suite, teen bedrooms, home gym or home office space. Additional 3 piece bath. Recreation room with built in projector and screen plus additional area for a games room. Utility room/storage room as well as cantina add to the practical living. Extended single car garage with over head storage and work shop. This home is a must see! Washer/dryer 2026. Minutes to transit, highways, shopping and parks. Steps to the lake! A great opportunity to live in one of Burlington's best neighbourhoods. (id:27476)

Property Highlights

MLS® Number
40817034
Type
Single Family
Ownership Type
Freehold
Land Size
under 1/2 acre
Parking Space Total
7

Building

Building Type
House
Storeys
2.00
Square Footage
3836 sqft
Bathrooms Total
4
Bedrooms Above Ground
4
Bedrooms Total
6
Amenities
Hospital, Park, Place of Worship, Playground, Public Transit, Shopping
Exterior Finish
Stucco
Fireplace Present
Yes
Basement Type
Full (Finished)
Basement Features
Building Heating Type
Forced air, Radiant heat
Heating Fuel
Natural gas
Building Cooling Type
Central air conditioning

Utilities

Water
Municipal water
Utility Sewer
Municipal sewage system

Room Layout

3pc Bathroom
Second level
Measurements not available
Laundry room
Second level
6'0'' x 7'2''
Bedroom
Second level
10'1'' x 12'0''
Bedroom
Second level
12'1'' x 12'2''
Bedroom
Second level
10'3'' x 17'6''
Full bathroom
Second level
Measurements not available
Primary Bedroom
Second level
14'4'' x 17'9''
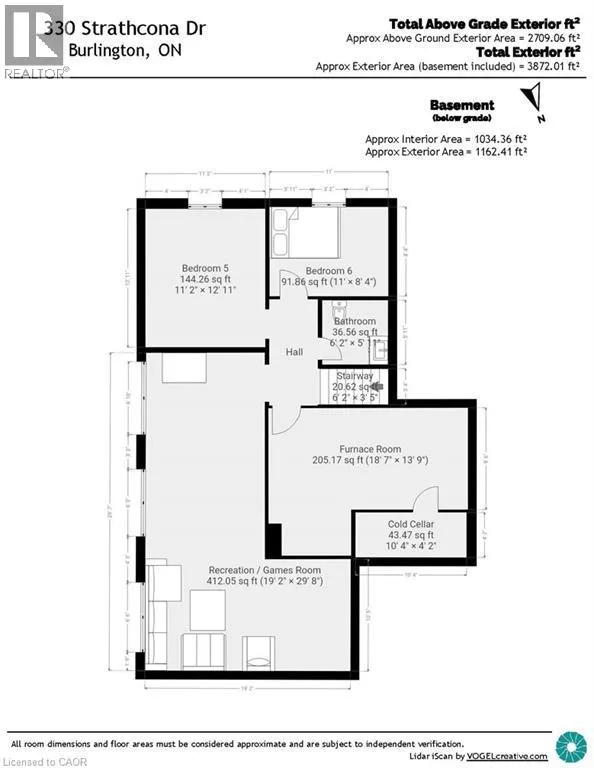
3pc Bathroom
Basement
6'2'' x 5'11''
Cold room
Basement
4'2'' x 10'4''
Utility room
Basement
13'9'' x 18'7''
Recreation room
Basement
19'2'' x 29'8''
Bedroom
Basement
11'0'' x 8'4''
Bedroom
Basement
11'2'' x 12'11''
2pc Bathroom
Main level
Measurements not available
Living room
Main level
12'10'' x 19'11''
Dining room
Main level
12'0'' x 11'4''
Family room
Main level
14'5'' x 19'11''
Eat in kitchen
Main level
9'3'' x 23'8''
Foyer
Main level
6'5'' x 14'7''

Location

Learn more about this property
Listing provided by:
Royal LePage Burloak Real Estate Services
MLS® number:
40817034
Agent:
Hilary Prins
*Indicates required field
Name is required
Email is required
Please enter a valid phone number (e.g., 416-111-1111).