977 Gorton Avenue, Burlington, Ontario L7T 1S6

Listed for:
$3,249,000
4 beds
5 baths
Listed 4 days ago
House for rent: 977 Gorton Avenue, Burlington, Ontario L7T 1S6

View all 50 photos

About

Cross Streets: Plains Rd W. ** Directions: South of Plains Road West. This stunning 2022 custom-built home sits on a deep 50 x 198 ft lot in Burlington's coveted Aldershot South, offering 4,700+ sq. ft. of refined living space and $500,000 in recent luxury upgrades. Designed for both everyday comfort and entertaining, the main level boasts soaring 10' ceilings, wide-plank oak floors, Control4 smart lighting, 8-zone Sonos system, and a warm modern great room with custom wall unit and sleek fireplace. The chef's kitchen features top-tier appliances, a built-in bar/servery with crystal glassware display, and seamless access to the covered patio with fireplace. Upstairs, the boutique-style primary retreat offers a private balcony and spa-inspired 5-piece ensuite with skylight, glass shower, soaker tub, heated towel rack, and automated heated toilet with bidet, complemented by three additional bedrooms and two baths. The fully finished lower level showcases a French-inspired custom bar, designer +/-60-bottle display, 1,100-bottle temperature-controlled wine cellar, spacious recreation area, and a private entrance ideal for an in-law or nanny suite. Outdoors, a resort-like oasis awaits: in-ground swimming pool with motorized cover, porcelain-tiled pool-deck, cabana lounge, Sonance speakers, landscape lighting, and a luxury outdoor kitchen with DCS grill, cabinetry, fridge, and Bella pizza oven. A 2 car garage with heated epoxy finished flooring and driveway parking for 8 completes this exceptional property. Close to top-rated schools, parks, waterfront, downtown Burlington, and GO access, this residence blends modern sophistication, smart-home technology, and resort-style living. Luxury Certified. (id:27476)

Property Highlights

MLS® Number
W12996426
Type
Single Family
Community Name
Bayview
Ownership Type
Freehold
Land Size
50 x 198.9 FT|under 1/2 acre
Parking Space Total
10

Building

Building Type
House
Storeys
2.00
Square Footage
3000 - 3500 sqft
Bathrooms Total
5
Bedrooms Above Ground
4
Bedrooms Total
4
Amenities
Fireplace(s) Golf Nearby, Hospital, Park
Exterior Finish
Brick, Stone
Fireplace Present
Yes
Basement Type
N/A (Finished), N/A, Full
Basement Features
Separate entrance
Building Heating Type
Forced air
Heating Fuel
Natural gas
Building Cooling Type
Central air conditioning

Utilities

Water
Municipal water
Utility Sewer
Sanitary sewer

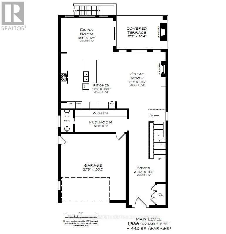
Room Layout

Bedroom
Second level
4.7 m x 3.86 m
Bathroom
Second level
Measurements not available
Laundry room
Second level
3.38 m x 2.24 m
Primary Bedroom
Second level
5 m x 3.94 m
Bathroom
Second level
Measurements not available
Bedroom 2
Second level
5.11 m x 3.63 m
Bathroom
Second level
Measurements not available
Bedroom 2
Second level
5.11 m x 3.53 m
Recreational, Games room
Lower level
8.26 m x 4.65 m
Bathroom
Lower level
Measurements not available
Exercise room
Lower level
4.67 m x 4.37 m
Utility room
Lower level
3.84 m x 1.93 m
Other
Lower level
2.9 m x 2.67 m
Great room
Main level
5.36 m x 4.93 m
Kitchen
Main level
5.33 m x 5 m
Dining room
Main level
5 m x 3.28 m
Mud room
Main level
4.93 m x 2.13 m
Bathroom
Main level
Measurements not available

Location

Learn more about this property
Listing provided by:
RE/MAX ESCARPMENT REALTY INC.
MLS® number:
W12996426
Agent:
Clinton Lorne Howell
*Indicates required field
Name is required
Email is required
Please enter a valid phone number (e.g., 416-111-1111).