Lot 12 Rivergreen Crescent, Cambridge, Ontario N1S 0G1

Listed for:
$924,800
3 beds
3 baths
Listed 20 days ago
House for rent: Lot 12 Rivergreen Crescent, Cambridge, Ontario N1S 0G1

View all 4 photos

Learn more about this property
Listing provided by:
PSR
MLS® number:
X12493082
Agent:
Vongdeuane Kennedy
*Indicates required field
Name is required
Email is required
Please enter a valid phone number (e.g., 416-111-1111).

About

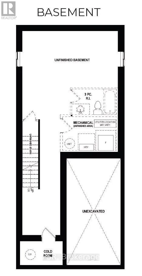
Cross Streets: Blenheim Rd. ** Directions: Blenheim Rd to Bismark Dr to Rivergreen Cr. OPEN HOUSE: Saturday 1:00 PM - 5:00 PM at the model home / sales office located at 19 Rivergreen Cr., Cambridge. SINGLE DETACHED ORIGINAL SERIES LIMITED TIME PROMOS: $45,000 off list price & $0 for Walk-out and Look-out lots & 50% off other lot premiums & 5 Builder's standard appliances & $5,000 Design Dollars & 5% deposit structure. Meet The Beasley by Ridgeview Homes - a chic 3-bedroom, 2.5-bath home in the heart of Westwood Village, where fresh design and everyday function come together. With its modern exterior, this home is made to impress from the outside in. Step into a bright, open concept main floor with soaring 9-ft ceilings and a sleek, carpet-free layout. The kitchen? Stunning! Quartz countertops, an extended bar top for casual hangouts, and 36'' uppers to keep everything stylishly organized. Upstairs, your primary suite is a vibe. Think walk-in closet and a spa-like ensuite with a glass walk-in shower perfect for winding down. Two extra bedrooms mean more space for a home office, guest room, or whatever fits your lifestyle. And yes, laundry is on the second floor, because convenience is key. The basement's a blank canvas, with a 3 piece rough-in and ready for your future plans - whether it's a home gym, media room, or that dream home bar. All of this, just steps from parks, shops, and close to downtown Galt, the 401, Kitchener, and Conestoga College. The Beasley isn't just a home it's your next-level lifestyle. Premium walk-out lots, backing onto walking trails available! (id:27476)

Property Highlights

MLS® Number
X12493082
Type
Single Family
Ownership Type
Freehold
Land Size
30 x 98 FT
Parking Space Total
2

Building

Building Type
House
Storeys
2.00
Square Footage
1500 - 2000 sqft
Bathrooms Total
3
Bedrooms Above Ground
3
Bedrooms Total
3
Amenities
Golf Nearby, Park
Exterior Finish
Brick, Stone
Fireplace Present
No
Basement Type
Full (Unfinished)
Basement Features
Building Heating Type
Forced air
Heating Fuel
Natural gas
Building Cooling Type
Central air conditioning

Utilities

Water
Municipal water
Utility Sewer
Sanitary sewer

Room Layout

Bedroom
Second level
3.2 m x 4.98 m
Bathroom
Second level
3.05 m x 2.29 m
Bedroom 2
Second level
2.97 m x 3.94 m
Bedroom 3
Second level
2.97 m x 3.94 m
Bathroom
Second level
1.6 m x 2.67 m
Laundry room
Second level
1.2 m x 1.22 m
Kitchen
Main level
3.35 m x 2.9 m
Dining room
Main level
2.95 m x 3.38 m
Living room
Main level
3.1 m x 5.44 m

Location