79 Zieman Crescent, Cambridge, Ontario N1T 2H5

Listed for:
$1,220,000
5 beds
3 baths
Listed 8 days ago
House for rent: 79 Zieman Crescent, Cambridge, Ontario N1T 2H5

View all 38 photos

Learn more about this property
Listing provided by:
CITIMAX REALTY LTD.
MLS® number:
40788423
Agent:
Teresa Godglick
*Indicates required field
Name is required
Email is required
Please enter a valid phone number (e.g., 416-111-1111).

About

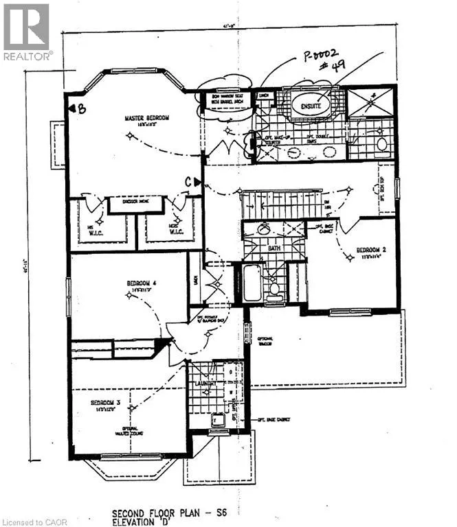
Can-Amera Pkwy to Baintree Way to Brayshaw Dr. to Zieman Crescent Welcome to 79 Zieman Crescent! This meticulously maintained 5-bedroom, 2.5-bathroom home with a total of 6 parking spots offers approximately 4,000 sq ft of living space and is tucked away on a quiet street in a highly sought-after neighbourhood—perfect for a growing family. With a double car garage, main floor bedroom (currently used as an office), and abundant natural light, it’s just minutes from Highway 401, making it ideal for commuters. The main floor with 9ft ceilings offers a bright, functional layout: formal living room, main floor bedroom (or office), 2-piece bath, and a separate coffered ceiling dining room with arches which flows into the open-concept kitchen and family room. The spacious eat-in kitchen boasts a large island with breakfast bar, stainless steel appliances, under counter lighting, and ample cupboard space—conveniently located just off the garage entry. The adjoining family room features a cozy gas fireplace, lots of natural light and is perfect for everyday living and entertaining. Upstairs, the primary suite is a true retreat with his-and-her walk-in closets, an electric fireplace, and a luxurious 5-piece ensuite with dual sinks, a 6-foot soaker tub, and a glass-enclosed shower. Three additional generously sized bedrooms, a full bathroom, and an upper-level laundry room complete the second floor. The partially finished basement offers even more living space, currently set up as a large rec room with a bar/games/movie area, a home gym, and a large storage area that could be converted into bedrooms and a bathroom (rough-in located near the furnace). Step outside to a fully fenced private backyard—ideal for entertaining, kids, and pets alike. Enjoy the well-maintained patio for summer BBQs or quiet evenings outdoors. Conveniently located near top-rated schools, parks, tennis, volleyball, forest trails, public & school bus routes, shopping, place of worship, and just minutes to the 401— a must see! (id:27476)

Property Highlights

MLS® Number
40788423
Type
Single Family
Ownership Type
Freehold
Land Size
under 1/2 acre
Parking Space Total
6

Building

Building Type
House
Storeys
2.00
Square Footage
3748 sqft
Bathrooms Total
3
Bedrooms Above Ground
5
Bedrooms Total
5
Amenities
Park, Place of Worship, Playground, Public Transit, Schools, Shopping
Exterior Finish
Brick, Vinyl siding
Fireplace Present
Yes
Basement Type
Full (Partially finished)
Basement Features
Building Heating Type
Forced air
Heating Fuel
Natural gas
Building Cooling Type
Central air conditioning

Utilities

Water
Municipal water
Utility Sewer
Municipal sewage system

Room Layout

Laundry room
Second level
Measurements not available
4pc Bathroom
Second level
Measurements not available
Bedroom
Second level
14'6'' x 11'0''
Bedroom
Second level
14'9'' x 12'0''
Bedroom
Second level
11'9'' x 11'4''
Full bathroom
Second level
Measurements not available
Primary Bedroom
Second level
16'6'' x 16'0''
2pc Bathroom
Main level
Measurements not available
Kitchen
Main level
14'2'' x 12'0''
Dinette
Main level
11'0'' x 12'0''
Family room
Main level
16'0'' x 12'0''
Dining room
Main level
16'0'' x 11'6''
Bedroom
Main level
10'0'' x 10'6''
Living room
Main level
13'10'' x 13'0''

Location