7 - 170 Attwater Drive, Cambridge, Ontario N1R 5S2

Listed for:
$3,000
4 beds
4 baths
Listed 40 days ago
Row / Townhouse for rent: 7 - 170 Attwater Drive, Cambridge, Ontario N1R 5S2

View all 19 photos

Learn more about this property
Listing provided by:
RE/MAX REAL ESTATE CENTRE INC.
MLS® number:
X12568404
Agent:
Zeeshan Kiani
*Indicates required field
Name is required
Email is required
Please enter a valid phone number (e.g., 416-111-1111).

About

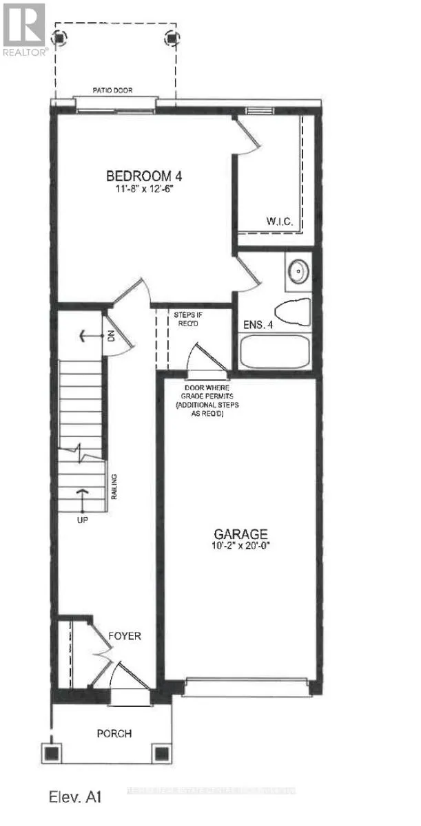
Dundas St S. & Attwater Dr. Beautiful and modern 4-bedroom, 3.5-bath freehold townhouse located in a quiet, family-friendly neighbourhood. This almost-new home features a bright open-concept second floor with a spacious Great Room, large Breakfast area, and a contemporary Kitchen with a centre island, pantry, and patio door walkout to the deck-perfect for entertaining.The top floor offers three bedrooms, including a generous Primary Bedroom with a full ensuite bathroom and a walk-in closet. A second full bathroom and convenient third-floor laundry complete this level.The ground floor includes a large bedroom with its own ensuite bathroom and a walkout to the backyard-ideal for an in-law suite, guest suite, or private home office. The foyer connects to an attached single-car garage with interior access. (id:27476)

Property Highlights

MLS® Number
X12568404
Type
Single Family
Ownership Type
Freehold
Parking Space Total
2

Building

Building Type
Row / Townhouse
Storeys
3.00
Square Footage
1500 - 2000 sqft
Bathrooms Total
4
Bedrooms Above Ground
4
Bedrooms Total
4
Exterior Finish
Aluminum siding, Brick
Fireplace Present
Yes
Basement Type
N/A (Unfinished)
Basement Features
Building Heating Type
Forced air
Heating Fuel
Natural gas
Building Cooling Type
Central air conditioning

Utilities

Water
Municipal water
Utility Sewer
Sanitary sewer

Room Layout

Great room
Second level
Measurements not available
Kitchen
Second level
Measurements not available
Primary Bedroom
Third level
Measurements not available
Bedroom
Third level
Measurements not available
Bedroom
Third level
Measurements not available
Bedroom
Main level
Measurements not available
Eating area
Main level
Measurements not available

Location