301 - 35-39 Main Street, Cambridge, Ontario N1R 1V6

Listed for:
$1,950
2 beds
1 baths
Listed 16 days ago
Other for rent: 301 - 35-39 Main Street, Cambridge, Ontario N1R 1V6

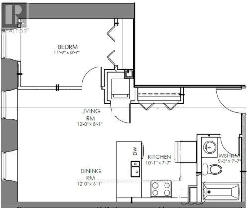
View all 11 photos

Learn more about this property
Listing provided by:
FOREST HILL REAL ESTATE INC.
MLS® number:
X12633944
Agent:
Marie-sophie Garant
*Indicates required field
Name is required
Email is required
Please enter a valid phone number (e.g., 416-111-1111).

About

Water St Welcome to Granite Lofts, located at 35 Main Street in the heart of historic downtown Galt, Cambridge. This unique heritage building blends early 20th-century industrial charm with modern loft-style living. Step inside to soaring ceilings, exposed brick and beam architecture, oversized windows, and open-concept layouts that flood each unit with natural light. Carefully restored and thoughtfully updated, these lofts feature modern kitchens and con temporary finishes that highlight the character of the original structure. Located just steps from the Grand River, trendy cafes, art galleries, and boutique shopping, Granite Lofts offers both convenience and culture. With easy access to trails, transit, and key commuting routes, this location is ideal for professionals, creatives, and those looking for a vibrant urban lifestyle with a touch of history. Parking passes to be purchased through the City of Cambridge for any of their downtown lots. Authentic loft. Style units with exposed brick and timber beams. One bedroom, open-concept layouts with high ceilings and large windows. Modern kitchens with quartz countertops and stainless-steel appliances. In-suite laundry and secure building access. Walkable to shops, restaurants, and the Gaslight District. Easy access to Highway 401 and public transit (id:27476)

Property Highlights

MLS® Number
X12633944
Type
Single Family

Building

Building Type
Other
Square Footage
0 - 699 sqft
Bathrooms Total
1
Bedrooms Above Ground
1
Bedrooms Total
2
Amenities
Separate Electricity Meters Golf Nearby, Park, Public Transit, Schools
Exterior Finish
Brick
Fireplace Present
No
Basement Type
None
Basement Features
Building Heating Type
Forced air
Heating Fuel
Natural gas
Building Cooling Type
Central air conditioning

Utilities

Water
Municipal water
Utility Sewer
Sanitary sewer

Room Layout

Bedroom
Main level
Measurements not available
Kitchen
Main level
Measurements not available
Living room
Main level
Measurements not available
Den
Main level
Measurements not available
Bathroom
Main level
Measurements not available

Location

Street Spotlight - For rent