150 Water Street N Unit# 1007, Cambridge, Ontario N1R 0B5

Listed for:
$547,000
3 beds
2 baths
Listed 60 days ago
Apartment for rent: 150 Water Street N Unit# 1007, Cambridge, Ontario N1R 0B5

View all 33 photos

About

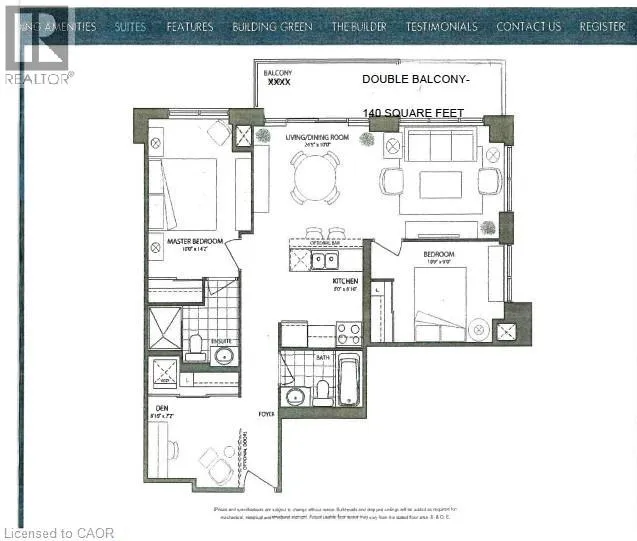
Hespeler Rd past Delta stay right to Water St. N Condo living with the BEST VIEW! At its finest this pristine corner unit in the heart of historic Downtown Galt, offering uninterrupted views of the scenic Grand River. Rarely offered, this suite includes another 140 sq.ft. of private outdoor DOUBLE LENGTH balcony space—ideal for enjoying both sunrises and sunsets over the water and downtown skyline. The open-concept layout allows natural light to flood the space through dramatic floor-to-ceiling windows. This 2-bedroom, 2-bathroom, plus den is completely carpet-free, complete with granite countertops.Enjoy the convenience of in-suite laundry, stainless steel appliances and the bonus of a Den/Office area. This Condo has been recently painted(July 2025) allowing for an easy move in, and shows immaculately. Several photos have been virtually staged to help provide a better visual. Included is one underground parking spot, a private storage locker, and plenty of visitor parking. Residents have access to an array of amenities, including a fully equipped fitness centre, a stylish social lounge, guest suite, and an expansive outdoor terrace complete with gas BBQs right alongside the Grand River. Built in 2015, The GrandCondominiums place you steps away from everything—boutique shops, gourmet coffee, local restaurants, art galleries, live theatre, weekend markets, and the scenicTrans Canada Trail. Commuters will love the quick access to the 401, Hwy 8, and Hwy 7/8, as well as excellent transit options. (id:27476)

Property Highlights

MLS® Number
40786866
Type
Single Family
Maintenance Fee
889.29
Ownership Type
Condominium
Land Size
Unknown
Parking Space Total
1

Building

Building Type
Apartment
Storeys
1.00
Square Footage
890 sqft
Bathrooms Total
2
Bedrooms Above Ground
2
Bedrooms Total
3
Amenities
Exercise Centre, Guest Suite, Party Room Airport, Golf Nearby, Hospital, Park, Place of Worship, Public Transit, Shopping
Exterior Finish
Concrete
Fireplace Present
No
Basement Type
None
Basement Features
Building Heating Type
Forced air
Heating Fuel
Building Cooling Type
Central air conditioning

Utilities

Water
Municipal water
Utility Sewer
Municipal sewage system

Room Layout

Living room/Dining room
Main level
24'5'' x 10'0''
Bedroom
Main level
10'9'' x 9'0''
Kitchen
Main level
8'10'' x 8'0''
4pc Bathroom
Main level
Measurements not available
Full bathroom
Main level
Measurements not available
Primary Bedroom
Main level
14'2'' x 10'0''
Den
Main level
8'10'' x 7'2''

Location

Learn more about this property
Listing provided by:
Royal LePage Wolle Realty
MLS® number:
40786866
Agent:
Linda Cybalski
*Indicates required field
Name is required
Email is required
Please enter a valid phone number (e.g., 416-111-1111).

Street Spotlight - For sale