A005 - 25 Isherwood Avenue, Cambridge, Ontario N1R 0E2

Listed for:
$469,000
3 beds
2 baths
Listed 59 days ago
Row / Townhouse for rent: A005 - 25 Isherwood Avenue, Cambridge, Ontario N1R 0E2

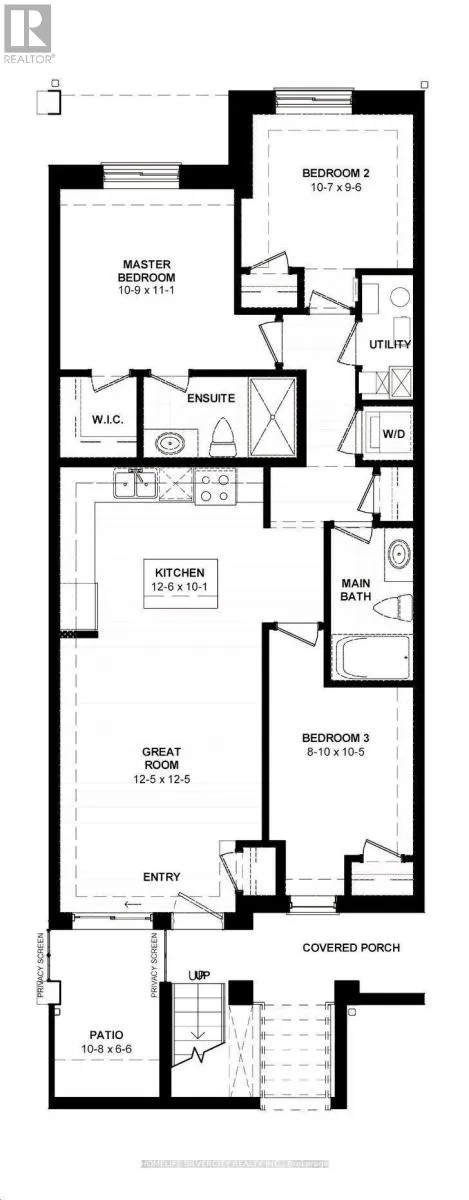
View all 18 photos

About

Cross Streets: Hespeler Rd/Isherwood Ave. ** Directions: South on Hespeler Rd from Hwy 401 and make a right turn on Isherwood Ave/Munch Ave. An incredible opportunity to purchase this 3 bedroom, 2 bathroom garden suite apartment in the highest demanding area of Cambridge. This is a perfect nest for the first time homebuyers or for the investors. Renowned builder ACTIVA homes have provided dashing and reliable building material throughout the suite. The kitchen traits stainless steel appliances and generous counter space which is a chef's dream and ideal for women's happiness. Whether it is a great room, kitchen, bedrooms or bathrooms, this suite leaves no stone unturned to impress you with the remarkable features found in this suite. Zebra blinds and pot lights add an extra charm in lighting up the suite. Patio and covered porch are available for the enjoyment. Monthly maintenance fee is only $261.71 which also includes unlimited bell fibre internet. Call your realtor today and book a showing to take a tour of this beautiful home. (id:27476)

Property Highlights

MLS® Number
X12760428
Type
Single Family
Maintenance Fee
261.71
Ownership Type
Condominium/Strata
Parking Space Total
1

Building

Building Type
Row / Townhouse
Square Footage
1000 - 1199 sqft
Bathrooms Total
2
Bedrooms Above Ground
3
Bedrooms Total
3
Exterior Finish
Concrete
Fireplace Present
No
Basement Type
None
Basement Features
Building Heating Type
Forced air
Heating Fuel
Natural gas
Building Cooling Type
Central air conditioning

Location

Learn more about this property
Listing provided by:
HOMELIFE SILVERCITY REALTY INC.
MLS® number:
X12760428
Agent:
Vishal Parmar
*Indicates required field
Name is required
Email is required
Please enter a valid phone number (e.g., 416-111-1111).

Street Spotlight - For sale