Lot 13 Rivergreen Crescent, Cambridge, Ontario N1S 0G1

Listed for:
$869,800
4 beds
3 baths
Listed 5 days ago
House for rent: Lot 13 Rivergreen Crescent, Cambridge, Ontario N1S 0G1

View all 4 photos

About

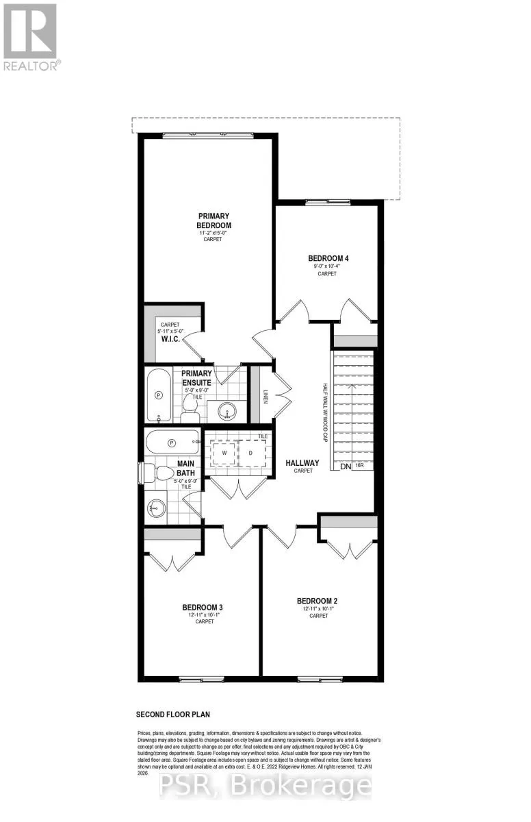
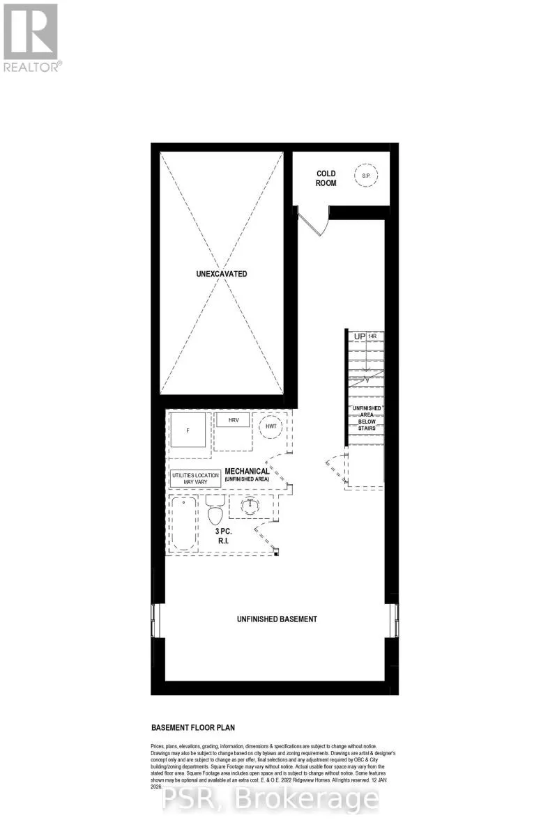
Blenheim Rd. to Bismark Dr. to Rivergreen Cres. Discover The Dahlia, Ridgeview Homes exciting New Chapter Series floorplan offering 1,645 sq. ft. of functional living space with 4 bedrooms and 2.5 bathrooms. Perfectly blending contemporary style with everyday practicality, step inside to soaring 9-foot ceilings and an open-concept main floor where carpet-free flooring connects the spacious great room, ideal for gatherings, to the kitchen featuring ample cabinetry, flowing into sunny dining space. A convenient mudroom with a deep closet keeps daily life organized, while a 5-foot patio slider invites you to enjoy the backyard space. Upstairs offers four sizeable bedrooms highlighted by a primary suite with a private ensuite and walk-in closet. The unfinished basement offers great potential with a 3-piece rough-in, cold room and sump pump ready. Located in the desirable Westwood Village community, you're steps from parks, trails and schools, just 10 minutes from Kitchener, Highway 401 and GO Transit, delivering exceptional value and convenience for families, first-time buyers and commuters! (id:27476)

Property Highlights

MLS® Number
X12845772
Type
Single Family
Ownership Type
Freehold
Land Size
30 x 98 FT
Parking Space Total
2

Building

Building Type
House
Storeys
2.00
Square Footage
1500 - 2000 sqft
Bathrooms Total
3
Bedrooms Above Ground
4
Bedrooms Total
4
Amenities
Golf Nearby, Park
Exterior Finish
Brick Veneer
Fireplace Present
No
Basement Type
Full (Unfinished)
Basement Features
Building Heating Type
Forced air
Heating Fuel
Natural gas
Building Cooling Type
Central air conditioning

Utilities

Water
Municipal water
Utility Sewer
Sanitary sewer

Room Layout

Bedroom 4
Second level
2.74 m x 3.15 m
Bathroom
Second level
1.52 m x 2.74 m
Bedroom
Second level
3.4 m x 4.57 m
Bathroom
Second level
1.52 m x 2.74 m
Bedroom 2
Second level
3.94 m x 3.07 m
Bedroom 3
Second level
3.94 m x 3.07 m
Foyer
Main level
1.65 m x 2.59 m
Kitchen
Main level
3.33 m x 2.9 m
Living room
Main level
3.07 m x 5.26 m
Dining room
Main level
2.92 m x 3.28 m
Mud room
Main level
2.03 m x 1.22 m

Location

Learn more about this property
Listing provided by:
PSR
MLS® number:
X12845772
Agent:
Vongdeuane Kennedy
*Indicates required field
Name is required
Email is required
Please enter a valid phone number (e.g., 416-111-1111).