C15 - 370 Fisher Mills Road, Cambridge, Ontario N3C 0G8

Listed for:
$1,999
2 beds
2 baths
Listed 7 days ago
Row / Townhouse for rent: C15 - 370 Fisher Mills Road, Cambridge, Ontario N3C 0G8

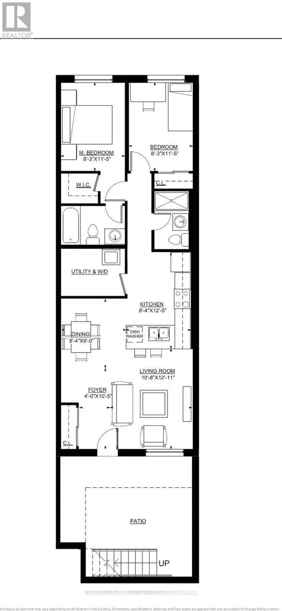
View all 16 photos

About

Haspler Rd and Fisher mills rd Less than one year old stacked townhouse for rent in Cambridge. Unit is still in occupancy phase. This is garden level unit. This 2BR and 2WR unit has patio in front. Master BR with 3pc ensuit. Stainles steel appliances.One parking available. Available from 1st May 2026 *For Additional Property Details Click The Brochure Icon Below* (id:27476)

Property Highlights

MLS® Number
X12920322
Type
Single Family
Ownership Type
Condominium/Strata
Parking Space Total
1

Building

Building Type
Row / Townhouse
Square Footage
800 - 899 sqft
Bathrooms Total
2
Bedrooms Above Ground
2
Bedrooms Total
2
Exterior Finish
Brick
Fireplace Present
No
Basement Type
None
Basement Features
Building Heating Type
Forced air
Heating Fuel
Natural gas
Building Cooling Type
Central air conditioning

Location

Learn more about this property
Listing provided by:
ICI SOURCE REAL ASSET SERVICES INC.
MLS® number:
X12920322
Agent:
James Tasca
*Indicates required field
Name is required
Email is required
Please enter a valid phone number (e.g., 416-111-1111).

Street Spotlight - For rent