210 Glamis Road Unit# 33, Cambridge, Ontario N1R 6L3

Listed for:
$399,999
3 beds
2 baths
Listed 7 days ago
Row / Townhouse for rent: 210 Glamis Road Unit# 33, Cambridge, Ontario N1R 6L3

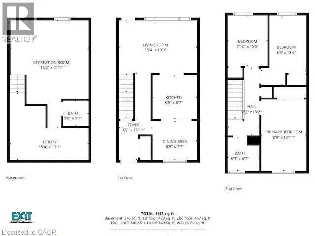
View all 30 photos

About

FRANKLIN BLVD This is the kind of home buyers wait for. A steal of a deal!A charming 3-bedroom townhome in Cambridge with solid bones, and the kind of potential that lets you truly make it your own. Whether you're a first-time buyer or someone looking to add value, this one just makes sense.Step inside to a bright, functional layout featuring a walk-through kitchen with stainless steel appliances and a dining area overlooking the front window, perfect for morning coffee or casual meals. The main floor living space is generous and easy to work with, offering plenty of room to relax or entertain.Upstairs, you’ll find three well-sized bedrooms and a full 4-piece bathroom, giving you flexibility for family, guests, or a home office.The finished basement adds even more living space with a large rec room, a convenient 2-piece bathroom, and extra storage, ideal for movie nights, a play area, or a future upgrade.Out back, enjoy your own private yard, ready for summer BBQs, quiet evenings, or a little landscaping vision to really make it shine.With updated flooring throughout, parking for one car, and ample visitor parking, this home checks the boxes, while still leaving room to build equity and personalize.A smart move in today’s market, with upside built right in. (id:27476)

Property Highlights

MLS® Number
40811788
Type
Single Family
Maintenance Fee
374.00
Ownership Type
Condominium
Land Size
0|under 1/2 acre
Parking Space Total
1

Building

Building Type
Row / Townhouse
Storeys
2.00
Square Footage
1163 sqft
Bathrooms Total
2
Bedrooms Above Ground
3
Bedrooms Total
3
Amenities
Public Transit
Exterior Finish
Brick, Vinyl siding
Fireplace Present
No
Basement Type
Full (Finished)
Basement Features
Building Heating Type
Forced air
Heating Fuel
Natural gas
Building Cooling Type
Central air conditioning

Utilities

Water
Municipal water
Utility Sewer
Municipal sewage system

Room Layout

Bedroom
Second level
10'0'' x 7'0''
Bedroom
Second level
13'6'' x 8'9''
Primary Bedroom
Second level
13'11'' x 8'9''
Laundry room
Basement
Measurements not available
2pc Bathroom
Basement
Measurements not available
Recreation room
Basement
21'1'' x 15'2''
4pc Bathroom
Main level
Measurements not available
Living room
Main level
15'4'' x 10'9''
Kitchen
Main level
8'9'' x 8'7''
Dinette
Main level
8'9'' x 7'7''

Location

Learn more about this property
Listing provided by:
Exit Integrity Realty
MLS® number:
40811788
Agent:
Kim Smiley Wiley
*Indicates required field
Name is required
Email is required
Please enter a valid phone number (e.g., 416-111-1111).

Street Spotlight - For sale