65 Brooklyne Road, Cambridge, Ontario N1R 1C6

Listed for:
$780,000
0 beds
0 baths
Listed 5 days ago
65 Brooklyne Road, Cambridge, Ontario N1R 1C6

View all 7 photos

About

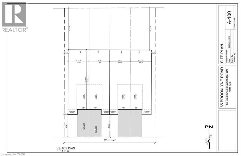
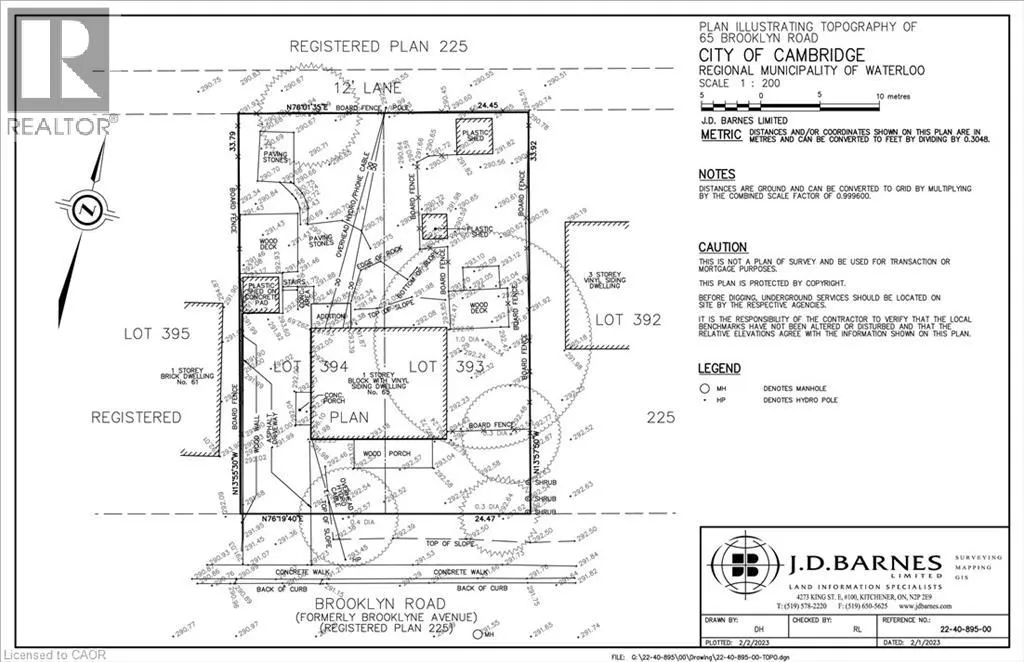
Carry the property while you plan. Build when you’re ready. Development-focused opportunity in a proven end-user location in Cambridge, with concept plans available for four freehold townhomes (not approved yet). Located within Cambridge’s updated R2 zoning framework, supporting low-density residential development and aligning with current housing intensification initiatives. Proposed plans feature four freehold townhomes, each approximately 1,783 sq ft with 3 bedrooms, 2.5 bathrooms, open-concept layouts, attached garages, and walk-out basement potential—an ideal product for today’s buyer. Positioned to take advantage of current new construction incentives, including potential HST rebates for end users, supporting strong resale demand. The property sits on an 80 ft x 110 ft lot and backs onto a laneway, offering flexibility for site design and access. Survey, site plan, and architectural drawings are available. An existing 5-bedroom, 2-bath bungalow is currently configured as a 2-unit property with a walk-out basement and separate access. The home is vacant and offers flexibility for holding, rental income, or financing during the planning and permit phase. Located in an established neighbourhood with strong fundamentals, within walking distance to schools and parks, access to transit nearby, and minutes to shopping, amenities, and major routes—supporting long-term end-user demand. (id:27476)

Property Highlights

MLS® Number
40816152
Type
Vacant Land
Ownership Type
Freehold
Land Size
0.2 ac|under 1/2 acre

Building

Amenities
Hospital, Public Transit, Schools
Fireplace Present
No
Basement Type
None
Basement Features
Building Heating Type
Heating Fuel
Building Cooling Type

Utilities

Water
None
Utility Sewer
Municipal sewage system

Location

Learn more about this property
Listing provided by:
RE/MAX REAL ESTATE CENTRE INC., BROKERAGE
MLS® number:
40816152
Agent:
Patrick Kozierowski
*Indicates required field
Name is required
Email is required
Please enter a valid phone number (e.g., 416-111-1111).