1912 Davenport Road, Cavan Monaghan, Ontario L0A 1C0

Listed for:
$1,320,000
2 beds
2 baths
Listed 48 days ago
House for rent: 1912 Davenport Road, Cavan Monaghan, Ontario L0A 1C0

View all 26 photos

Learn more about this property
Listing provided by:
EXIT REALTY LIFTLOCK
MLS® number:
X12542076
Agent:
Cameron Maxwell
*Indicates required field
Name is required
Email is required
Please enter a valid phone number (e.g., 416-111-1111).

About

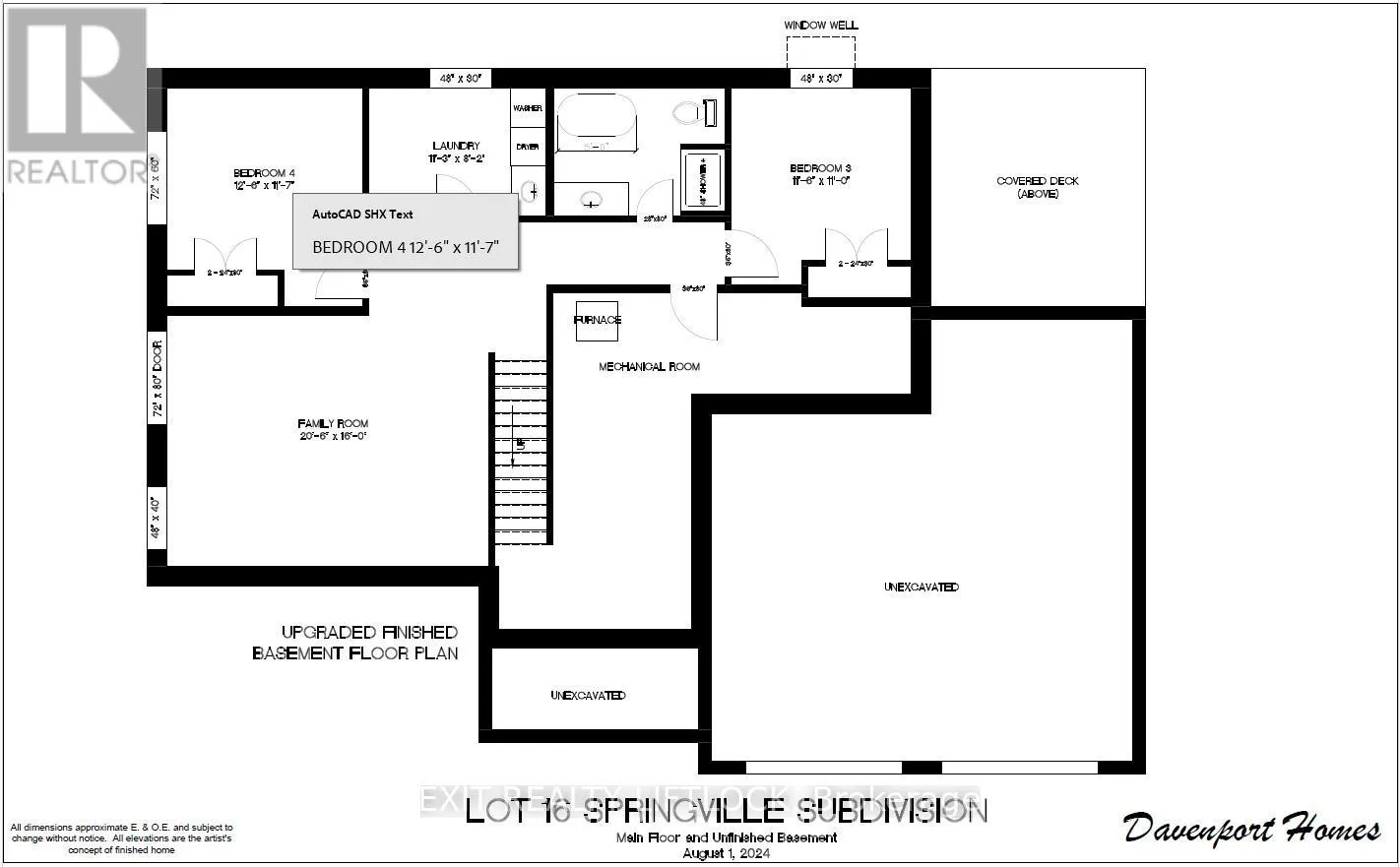
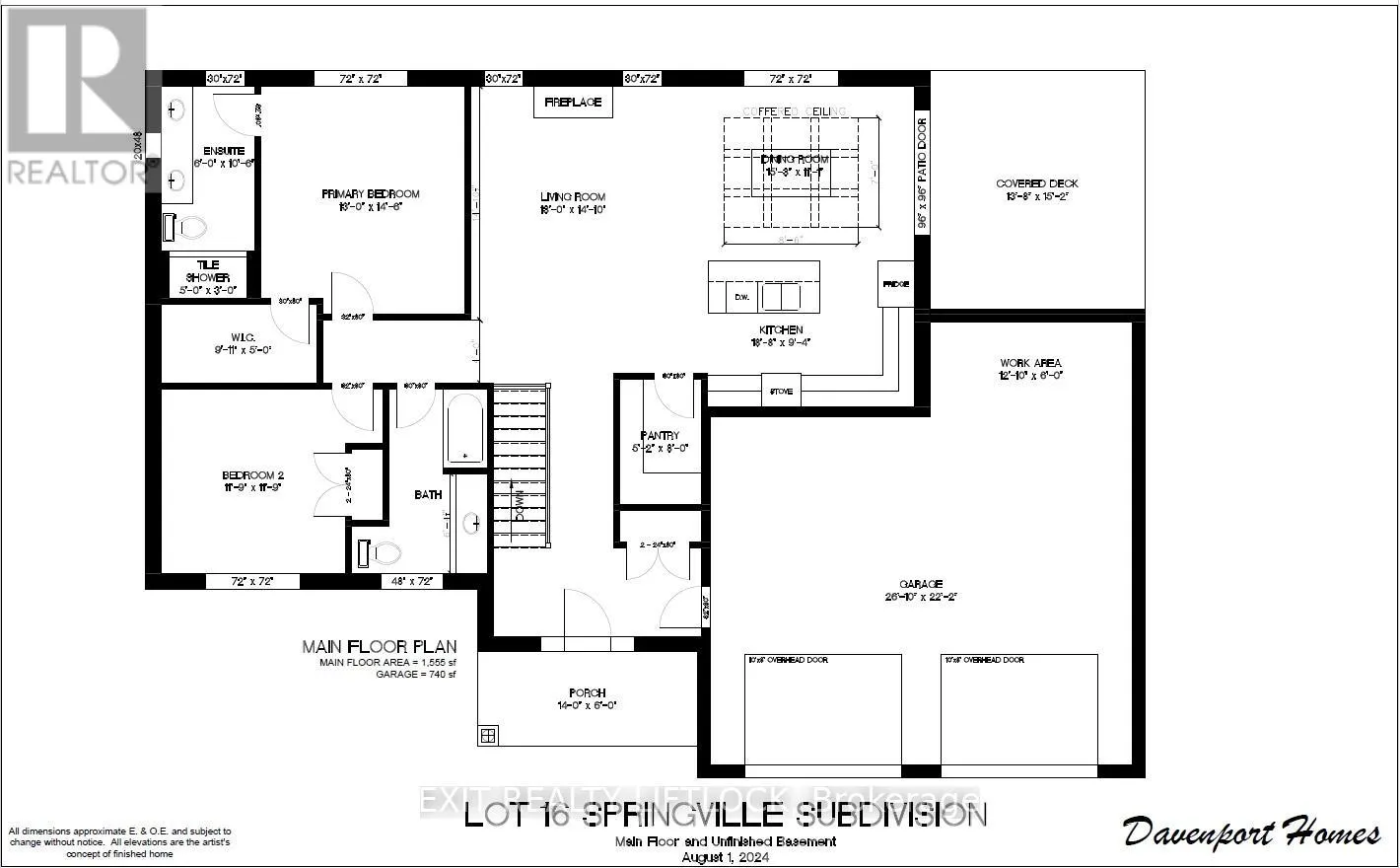
Hwy 7 to Ashley Cres to Davenport Rd To Be Built- Custom built bungalow by Davenport Homes in the rolling hills of Cavan. Beautifully designed all stone bungalow on a 3/4 acre lot in exclusive subdivision just outside Peterborough. This open concept offers modern living and entertaining with a large over sized kitchen/dining/living area, extra bright with large windows and patio door. Enjoy the 13'X15' covered deck off the Dining area all year long with it's privacy over looking the fields behind. Attention to detail and finishing shines through with such features as a coffered ceiling, stone fireplace, and solid surface counter tops are some of the many quality finishings throughout the entire home. This spacious home will easily suit a growing family or retirees. The over sized double car garage will accommodate two large vehicles and includes a workshop/storage area. This home is waiting for your custom touches and your own gourmet kitchen. One of only 20 homes to be built in this community, offering an exclusive area close to the west end of Peterborough and easy access to HWY 115. Buyers can also choose from the remaining 18 lots and have your custom home designed. Builder welcomes Buyers floor plans. **EXTRAS** Lot Dimensions - 19.44 ft x 193.63 ft x 158.47 ft x 210.86 ft x 176.16 ft (id:27476)

Property Highlights

MLS® Number
X12542076
Type
Single Family
Community Name
Cavan Twp
Land Size
210 x 158 FT ; See remarks related to property|1/2 - 1.99 acres
Parking Space Total
8

Building

Building Type
House
Storeys
1.00
Square Footage
1500 - 2000 sqft
Bathrooms Total
2
Bedrooms Above Ground
2
Bedrooms Total
2
Exterior Finish
Stone
Fireplace Present
Yes
Basement Type
Full (Unfinished)
Basement Features
Building Heating Type
Forced air
Heating Fuel
Natural gas
Building Cooling Type
Central air conditioning, Air exchanger

Utilities

Water
Drilled Well
Utility Sewer
Septic System

Room Layout

Kitchen
Main level
5.71 m x 2.83 m
Dining room
Main level
4.64 m x 3.35 m
Living room
Main level
3.96 m x 4.5 m
Primary Bedroom
Main level
3.96 m x 4.41 m
Bathroom
Main level
1.82 m x 3.2 m
Bedroom 2
Main level
3.58 m x 3.58 m
Foyer
Main level
3.65 m x 1.58 m
Bathroom
Main level
3.58 m x 1.78 m
Pantry
Main level
1.58 m x 2.43 m

Location

Street Spotlight - For sale