489 Larmer Line, Cavan Monaghan, Ontario K0L 1V0

Listed for:
$1,299,900
4 beds
4 baths
Listed 22 days ago
House for rent: 489 Larmer Line, Cavan Monaghan, Ontario K0L 1V0

View all 42 photos

About

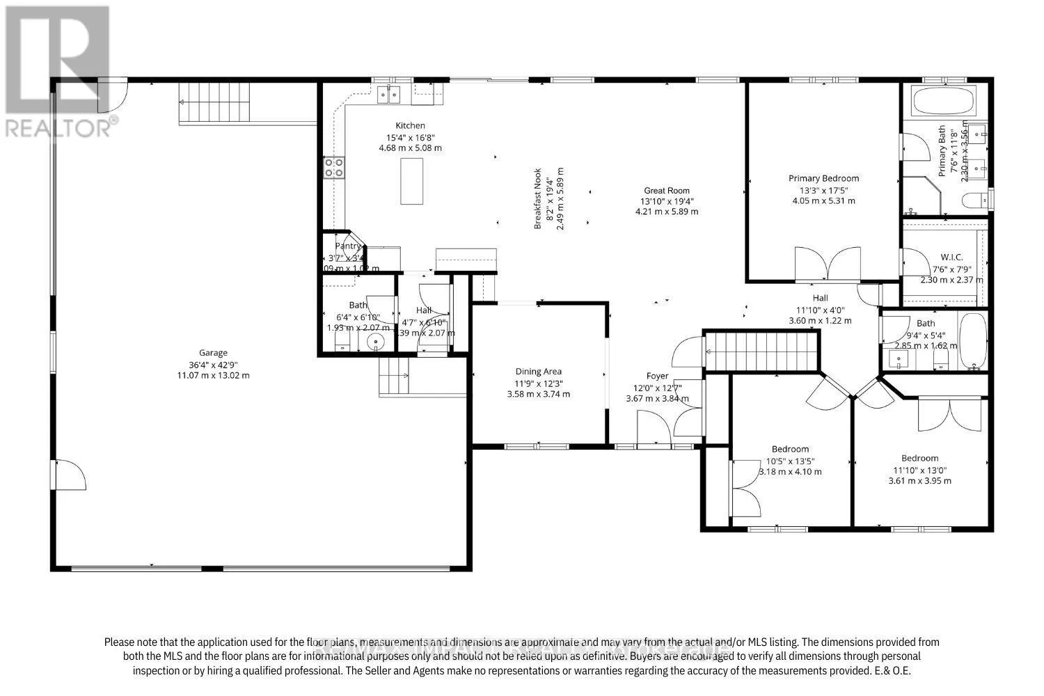
Cross Streets: Hwy 115 & Tapley Quarter Line. ** Directions: Hwy 115 to Tapley Quarter Line, go north on Tapley Quarter Line to Larmer Line and turn right to #489. Welcome to this stunning country property, a true gem built in 2011, nestled on a spacious 1.23 acre lot measuring 195' x 275'. This beautiful 2110 sf (per blueprint) bungalow boasts a charming stone and vinyl exterior, complemented by an attached heated four-car garage (1-double overhead door and 2 single overhead doors) and lots of parking for 10+ vehicles. Conveniently, the main floor offers direct access to the garage, while a secondary entrance leads to the basement from the garage, enhancing the home's functionality. At the heart of this property is a picturesque spring-fed pond located in the rear yard, approximately 10' deep, perfect for those seeking tranquility and natural beauty. The back yard features a wooden deck off the kitchen within a chain-link enclosure, providing a safe children's play area with playhouse and swing. Inside, the main level showcases an open-concept design that seamlessly connects the kitchen, great room, and separate dining area. The kitchen features rich dark cabinetry with granite countertops, stainless steel appliances, ceramic backsplash and separate desk area. The ceramic tile flooring adds durability, while a corner pantry with shelving and a convenient two-piece powder room enhance practicality. The kitchen also opens up to a deck that overlooks the pond and is surrounded by mature trees, creating a country outdoor retreat. The great room is highlighted by a large picture window, vaulted ceiling and pot lights with hardwood flooring. Double entry doors lead to the spacious primary bedroom, which includes a walk-in closet and a 5-piece ensuite complete with soaking tub, separate shower and 2 sink vanity. Two additional front bedrooms and a well-appointed 4-piece main bathroom complete the main floor. (id:27476)

Property Highlights

MLS® Number
X12868652
Type
Single Family
Community Name
Cavan Twp
Ownership Type
Freehold
Land Size
195 x 275 FT ; 1.23 acres with private spring-fed pond|1/2 - 1.99 acres
Parking Space Total
14

Building

Building Type
House
Storeys
1.00
Square Footage
2000 - 2500 sqft
Bathrooms Total
4
Bedrooms Above Ground
3
Bedrooms Total
4
Amenities
Fireplace(s)
Exterior Finish
Stone, Vinyl siding
Fireplace Present
Yes
Basement Type
N/A, N/A, N/A (Partially finished)
Basement Features
Separate entrance, Walk-up
Building Heating Type
Forced air
Heating Fuel
Natural gas
Building Cooling Type
Central air conditioning

Utilities

Water
Drilled Well
Utility Sewer
Septic System

Room Layout

Utility room
Basement
3.93 m x 2.37 m
Recreational, Games room
Basement
17.63 m x 6.58 m
Bedroom 4
Basement
4.01 m x 3.45 m
Other
Basement
4.33 m x 3.01 m
Kitchen
Ground level
5.78 m x 4.73 m
Dining room
Ground level
3.72 m x 3.49 m
Foyer
Ground level
3.85 m x 2.51 m
Great room
Ground level
6.09 m x 5.69 m
Primary Bedroom
Ground level
5.45 m x 4.01 m
Bedroom 2
Ground level
4.03 m x 3.17 m
Bedroom 3
Ground level
3.66 m x 3.59 m

Location

Learn more about this property
Listing provided by:
RE/MAX IMPACT REALTY
MLS® number:
X12868652
Agent:
Dianna Mandzuk
*Indicates required field
Name is required
Email is required
Please enter a valid phone number (e.g., 416-111-1111).

Community Spotlight: Homes For sale in Your Neighborhood