43 Talbot Street E, Cayuga, Ontario N0A 1E0

Listed for:
$10
0 beds
0 baths
Listed 13 days ago
43 Talbot Street E, Cayuga, Ontario N0A 1E0

View all 48 photos

Learn more about this property
Listing provided by:
RE/MAX Escarpment Realty Inc.
MLS® number:
40782343
Agent:
Chuck Hogeterp
*Indicates required field
Name is required
Email is required
Please enter a valid phone number (e.g., 416-111-1111).

About

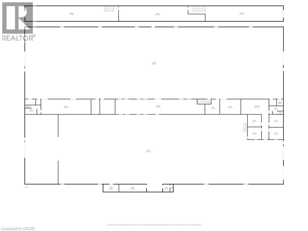
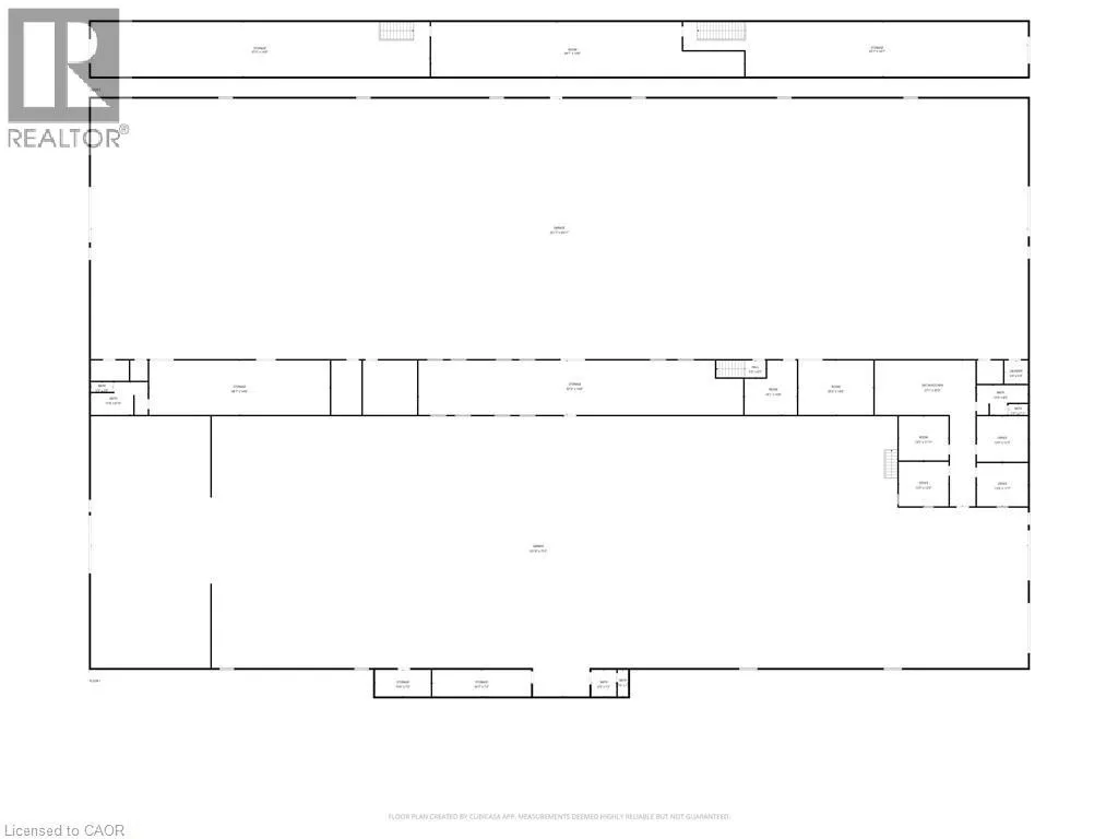
Talbot Street East (Hwy 3) - Behind Tim Hortons Prime opportunity to lease a high-exposure 45,000 sq. ft. Industrial/Commercial facility ideally located in the heart of Cayuga. Excellent street visibility on a main thoroughfare. The building’s expansive footprint is ideal for manufacturing, warehousing, distribution, or large-scale commercial operations. Featuring multiple bay doors, loading dock, ample power supply, and 14’ high ceilings, this versatile space is designed to accommodate a wide range of business uses. The property also includes generous on-site parking, easy transport access, and functional office and administrative areas. Opportunity to be divided into separate units. Strategically located with easy access to major routes connecting to Hamilton, the Niagara region, and the GTA, this site offers convenience, exposure, and flexibility. Whether you’re expanding your operation or establishing a new headquarters, this property provides the space and presence to make an impact. (id:27476)

Property Highlights

MLS® Number
40782343
Type
Other
Ownership Type
Freehold
Land Size
5 - 9.99 acres

Building

Storeys
1.00
Square Footage
45000 sqft
Exterior Finish
Steel
Fireplace Present
No
Basement Type
None
Basement Features
Building Heating Type
Heating Fuel
Building Cooling Type

Utilities

Water
Municipal water
Utility Sewer
Municipal sewage system

Location