86 Pike Creek Drive, Cayuga, Ontario N0E 1E0

Listed for:
$649,777
2 beds
2 baths
Listed 2 days ago
House for rent: 86 Pike Creek Drive, Cayuga, Ontario N0E 1E0

View all 2 photos

About

NEAR HUDSON DRIVE Welcome to this stunning brand new bungalow, thoughtfully designed with modern living in mind. Featuring 2 spacious bedrooms and 2 full bathrooms, this home offers a functional and stylish layout perfect for downsizers, first-time buyers, or anyone seeking the ease of single-level living. Step inside to discover a bright, open-concept space finished with durable vinyl flooring throughout and complemented by elegant quartz countertops in the kitchen. The contemporary design continues outside with a striking blend of stone and stucco, accented by clean, modern architectural details that create exceptional curb appeal. Enjoy the convenience of a 1-car garage and the added value of a full appliance package included. Buyers will also appreciate the opportunity to personalize their home with available upgrade options, allowing you to tailor finishes and features to your taste. A perfect blend of quality craftsmanship and modern design—this is an incredible opportunity to own a brand new home built for comfort and style. (id:27476)

Property Highlights

MLS® Number
40820446
Type
Single Family
Ownership Type
Freehold
Land Size
under 1/2 acre
Parking Space Total
2

Building

Building Type
House
Storeys
1.00
Square Footage
1153 sqft
Bathrooms Total
2
Bedrooms Above Ground
2
Bedrooms Total
2
Amenities
Place of Worship, Playground, Schools
Exterior Finish
Stone, Stucco
Fireplace Present
No
Basement Type
None
Basement Features
Building Heating Type
Forced air
Heating Fuel
Natural gas
Building Cooling Type
None

Utilities

Water
Municipal water
Utility Sewer
Municipal sewage system

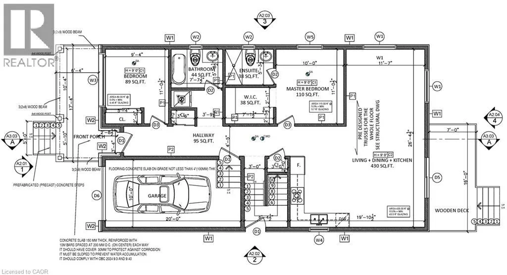
Room Layout

Laundry room
Main level
Measurements not available
4pc Bathroom
Main level
Measurements not available
Bedroom
Main level
9'4'' x 11'0''
Full bathroom
Main level
Measurements not available
Primary Bedroom
Main level
10'0'' x 11'0''
Family room
Main level
11'7'' x 16'4''
Dinette
Main level
8'3'' x 10'0''
Kitchen
Main level
8'3'' x 10'0''

Location

Learn more about this property
Listing provided by:
RE/MAX Escarpment Realty Inc.
MLS® number:
40820446
Agent:
Matthew Adeh
*Indicates required field
Name is required
Email is required
Please enter a valid phone number (e.g., 416-111-1111).

Street Spotlight - For sale