91 St Lawrence Street E, Centre Hastings, Ontario K0K 2K0

Listed for:
$590,000
6 beds
5 baths
Listed 170 days ago
Fourplex for rent: 91 St Lawrence Street E, Centre Hastings, Ontario K0K 2K0

View all 38 photos

About

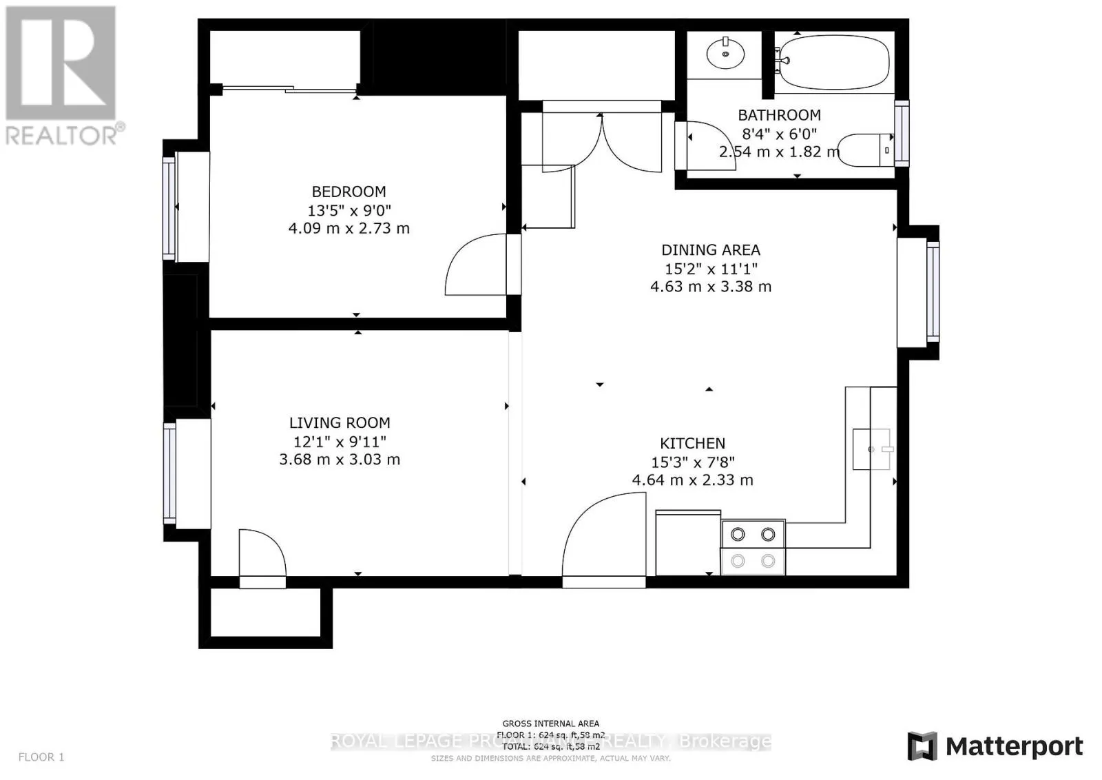
St. Lawrence Street E. & Church Street Impeccably maintained Fourplex in the heart of Madoc. With four individual units, this property offers a fantastic income-generating opportunity for investors. Units 1-3 have 1 bedroom, 1 bath and electric heat. Unit 4 has 3 bedrooms, 2 bathrooms with forced air gas heat and A/C with new flooring. Each unit has its own separate entrance as well as access to the rear yard and ample parking area. The units are all individually metered and tenants pay their own utilities. This property has minimal maintenance, with aluminum siding exterior and metal roof. Nestled in the heart of Madoc, this fourplex is strategically located near schools, parks, shopping, and places of worship. The sought-after neighbourhood ensures high demand from both tenants and potential buyers and is walking distance to everything. (id:27476)

Property Highlights

MLS® Number
X12487655
Type
Multi-family
Community Name
Centre Hastings
Land Size
66 x 168.5 FT|under 1/2 acre
Parking Space Total
6

Building

Building Type
Fourplex
Storeys
2.00
Square Footage
2500 - 3000 sqft
Bathrooms Total
5
Bedrooms Above Ground
6
Bedrooms Total
6
Amenities
Separate Heating Controls Golf Nearby, Place of Worship, Schools
Exterior Finish
Aluminum siding
Fireplace Present
No
Basement Type
None
Basement Features
Building Heating Type
Baseboard heaters
Heating Fuel
Electric
Building Cooling Type
None

Utilities

Water
Municipal water
Utility Sewer
Sanitary sewer

Location

Learn more about this property
Listing provided by:
ROYAL LEPAGE PROALLIANCE REALTY
MLS® number:
X12487655
Agent:
Joe Harrison
*Indicates required field
Name is required
Email is required
Please enter a valid phone number (e.g., 416-111-1111).