192 Crookston Road, Centre Hastings, Ontario K0K 2K0

Listed for:
$415,000
2 beds
1 baths
Listed 20 days ago
House for rent: 192 Crookston Road, Centre Hastings, Ontario K0K 2K0

View all 50 photos

About

Cross Streets: Hwy 62 & Crookston Rd. ** Directions: Hwy 62 to Crookston Rd or Hwy 37 to Crookston Rd. Some homes invite you to slow down the moment you arrive, and this charming 2+ bedroom retreat is one of them. Welcome to a place designed for unwinding and reconnecting with nature. Move in ready, you'll find yourself surrounded by colour in every season. Spend your days exploring neighbouring trails, paddle boarding on the private lake just minutes away, or relaxing beneath the large covered back patio. Inside, the home feels bright and welcoming. Exposed wood beams add warmth and character, while soft neutral tones create an inviting canvas for everyday living. The main living area is wrapped in windows, filling the space with warm natural light throughout the day. In summer, fresh air drifts through open windows; in winter, the cozy atmosphere gathers you in. Mornings begin with coffee and views of horses grazing up the road, and evenings end with the moon visible from bed in the primary bedroom. Outside, spring brings the property to life. Lilacs bloom around the house, tulips line the walkway, and hydrangeas spill colour through the living room windows. Throughout the seasons, the covered patio becomes your private retreat, whether enjoying hummingbirds nearby or listening to rain overhead. Extensive updates make this home truly turnkey and worry-free, including a new roof, furnace, kitchen, flooring, bathroom (2020), septic system and appliances (2021), and water softener (2023). The exterior has been beautifully refreshed, with flowers and trees (including apple!) now maturing into their fourth and fifth years. Minutes to Madoc and Tweed, and just 25 minutes to Belleville, you'll enjoy the peacefulness of cottage living with convenient access to town amenities and high speed internet! At first glance, it may seem like just another house, but give it time and it reveals something special. A wonderful place to begin or to slow down. The story is yours to write. (id:27476)

Property Highlights

MLS® Number
X12875930
Type
Single Family
Community Name
Centre Hastings
Ownership Type
Freehold
Land Size
55 x 100 FT|under 1/2 acre
Parking Space Total
4

Building

Building Type
House
Square Footage
700 - 1100 sqft
Bathrooms Total
1
Bedrooms Above Ground
2
Bedrooms Total
2
Exterior Finish
Vinyl siding
Fireplace Present
No
Basement Type
N/A (Unfinished)
Basement Features
Building Heating Type
Forced air
Heating Fuel
Propane
Building Cooling Type
None

Utilities

Utility Sewer
Septic System

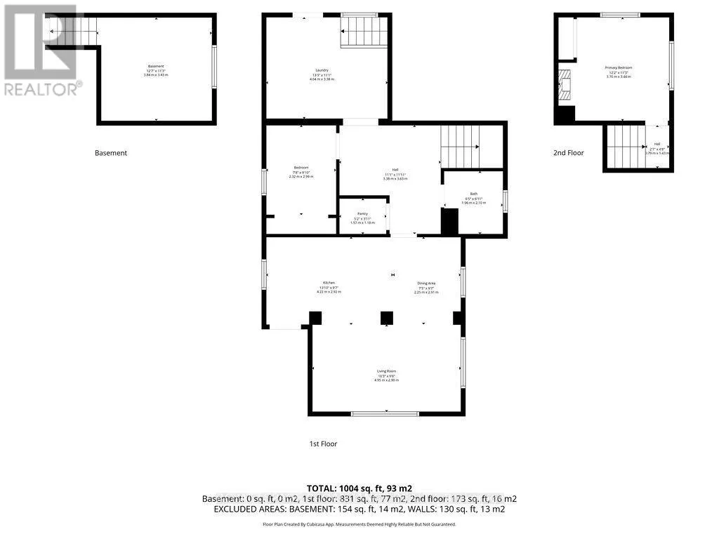
Room Layout

Primary Bedroom
Second level
3.7 m x 3.44 m
Utility room
Basement
3.84 m x 3.43 m
Kitchen
Main level
4.22 m x 2.92 m
Dining room
Main level
2.25 m x 2.91 m
Living room
Main level
4.95 m x 2.9 m
Bedroom
Main level
2.32 m x 2.99 m
Bathroom
Main level
1.96 m x 2.1 m
Laundry room
Main level
4.04 m x 3.38 m

Location

Learn more about this property
Listing provided by:
ROYAL LEPAGE PROALLIANCE REALTY
MLS® number:
X12875930
Agent:
Patrick Shearer
*Indicates required field
Name is required
Email is required
Please enter a valid phone number (e.g., 416-111-1111).