487 Hill Street E, Centre Wellington, Ontario N1M 1H7

Listed for:
$819,900
2 beds
2 baths
Listed 14 days ago
House for rent: 487 Hill Street E, Centre Wellington, Ontario N1M 1H7

View all 2 photos

About

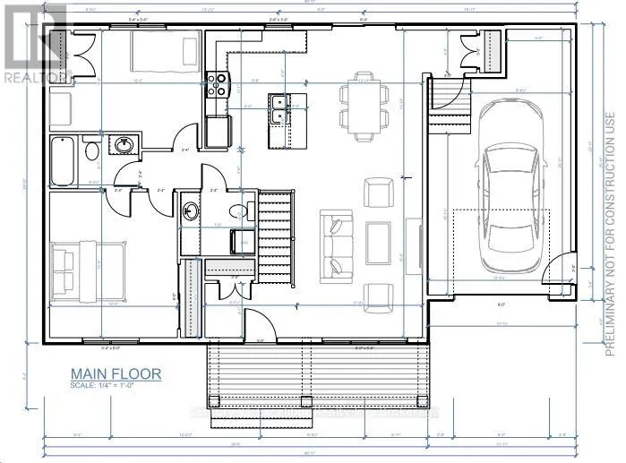
Cross Streets: Hill/Gartshore. ** Directions: Left off Gartshore/ on to Hill st. Brand new 1,100 sq. ft. bungalow to be built by respected local builder Exact Constructions, known for quality craftsmanship and attention to detail. This thoughtfully designed home offers 2 generous bedrooms with primary ensuite privilege, 2 bathrooms, and convenient main floor laundry - ideal for easy, one-level living. The bright, open-concept layout maximizes space and functionality, perfect for downsizers, professionals, or those seeking low-maintenance living. Buyers will have the opportunity to personalize select finishes, making this home truly their own. Situated on a mature, established street, this property offers the rare combination of brand-new construction (Tarion Warranty) in a desirable neighbourhood setting. Complete with a 1.5-car garage and efficient design throughout, this is an exceptional opportunity to own a quality-built custom home that you can be proud to own. Don't miss out. *Alternative floor plans available, including bungaloft* (id:27476)

Property Highlights

MLS® Number
X12803626
Type
Single Family
Community Name
Fergus
Ownership Type
Freehold
Land Size
60 x 79 FT
Parking Space Total
3

Building

Building Type
House
Storeys
1.00
Square Footage
1100 - 1500 sqft
Bathrooms Total
2
Bedrooms Above Ground
2
Bedrooms Total
2
Exterior Finish
Vinyl siding
Fireplace Present
No
Basement Type
Full (Unfinished)
Basement Features
Building Heating Type
Forced air
Heating Fuel
Natural gas
Building Cooling Type
Central air conditioning, Air exchanger

Utilities

Water
Municipal water
Utility Sewer
Sanitary sewer

Room Layout

Bedroom
Main level
3.657 m x 2.876 m
Primary Bedroom
Main level
3.657 m x 4.264 m
Bathroom
Main level
2.539 m x 1.5493 m
Kitchen
Main level
2.8956 m x 3.378 m
Dining room
Main level
3.3272 m x 4.215 m
Living room
Main level
4.2154 m x 4.572 m
Bathroom
Main level
2.1336 m x 1.8288 m

Location

Learn more about this property
Listing provided by:
Century 21 Excalibur Realty Inc
MLS® number:
X12803626
Agent:
Paul Van Grootheest
*Indicates required field
Name is required
Email is required
Please enter a valid phone number (e.g., 416-111-1111).

Community Spotlight: Homes For sale in Your Neighborhood