Basement - 22 Ryan Street, Centre Wellington, Ontario N1M 0C9

Listed for:
$1,900
2 beds
1 baths
Listed 22 days ago
House for rent: Basement - 22 Ryan Street, Centre Wellington, Ontario N1M 0C9

View all 20 photos

About

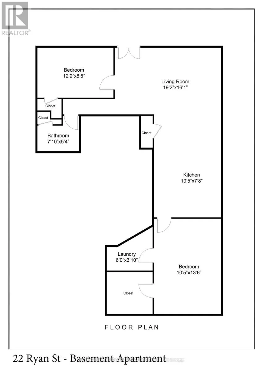
Cross Streets: Ryan Street & Steele Street. ** Directions: Hwy 6/Sideroad 18/Steele St/Ryan St. A beautiful 2 bed + 1 bath walk-out basement apartment in a family friendly neighborhood of Fergus! Located in a peaceful area surrounded by amazing nature! Perfectly designed with an open floor plan. Very bright. Spacious living area with walk-out to backyard. Large kitchen with quartz counters, stainless steel appliances and backsplash. Master bedroom with walk-in closet, second well-sized bedroom and a 3-piece bathroom. Ensuite laundry. Close to parks, schools and all local amenities. Close proximity to Highway 6. Basement Tenant has an exclusive use of 1 parking spot on the driveway. Basement Tenant pays 1/3 of all utilities. (id:27476)

Property Highlights

MLS® Number
X12865640
Type
Single Family
Community Name
Fergus
Ownership Type
Freehold
Parking Space Total
1

Building

Building Type
House
Storeys
2.00
Square Footage
700 - 1100 sqft
Bathrooms Total
1
Bedrooms Above Ground
2
Bedrooms Total
2
Amenities
Park, Place of Worship, Schools
Exterior Finish
Brick
Fireplace Present
No
Basement Type
N/A
Basement Features
Apartment in basement
Building Heating Type
Forced air
Heating Fuel
Natural gas
Building Cooling Type
Central air conditioning

Utilities

Water
Municipal water
Utility Sewer
Sanitary sewer

Room Layout

Living room
Basement
5.84 m x 4.9 m
Kitchen
Basement
3.17 m x 2.33 m
Primary Bedroom
Basement
3.17 m x 4.11 m
Bedroom 2
Basement
3.88 m x 2.56 m

Location

Learn more about this property
Listing provided by:
RE/MAX ABOUTOWNE REALTY CORP.
MLS® number:
X12865640
Agent:
Tony Sidrak
*Indicates required field
Name is required
Email is required
Please enter a valid phone number (e.g., 416-111-1111).

Community Spotlight: Homes For rent in Your Neighborhood