120 Mill Street, Champlain, Ontario K0B 1R0

Listed for:
$585,000
1 beds
2 baths
Listed 52 days ago
House for rent: 120 Mill Street, Champlain, Ontario K0B 1R0

View all 3 photos

About

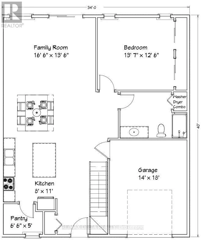
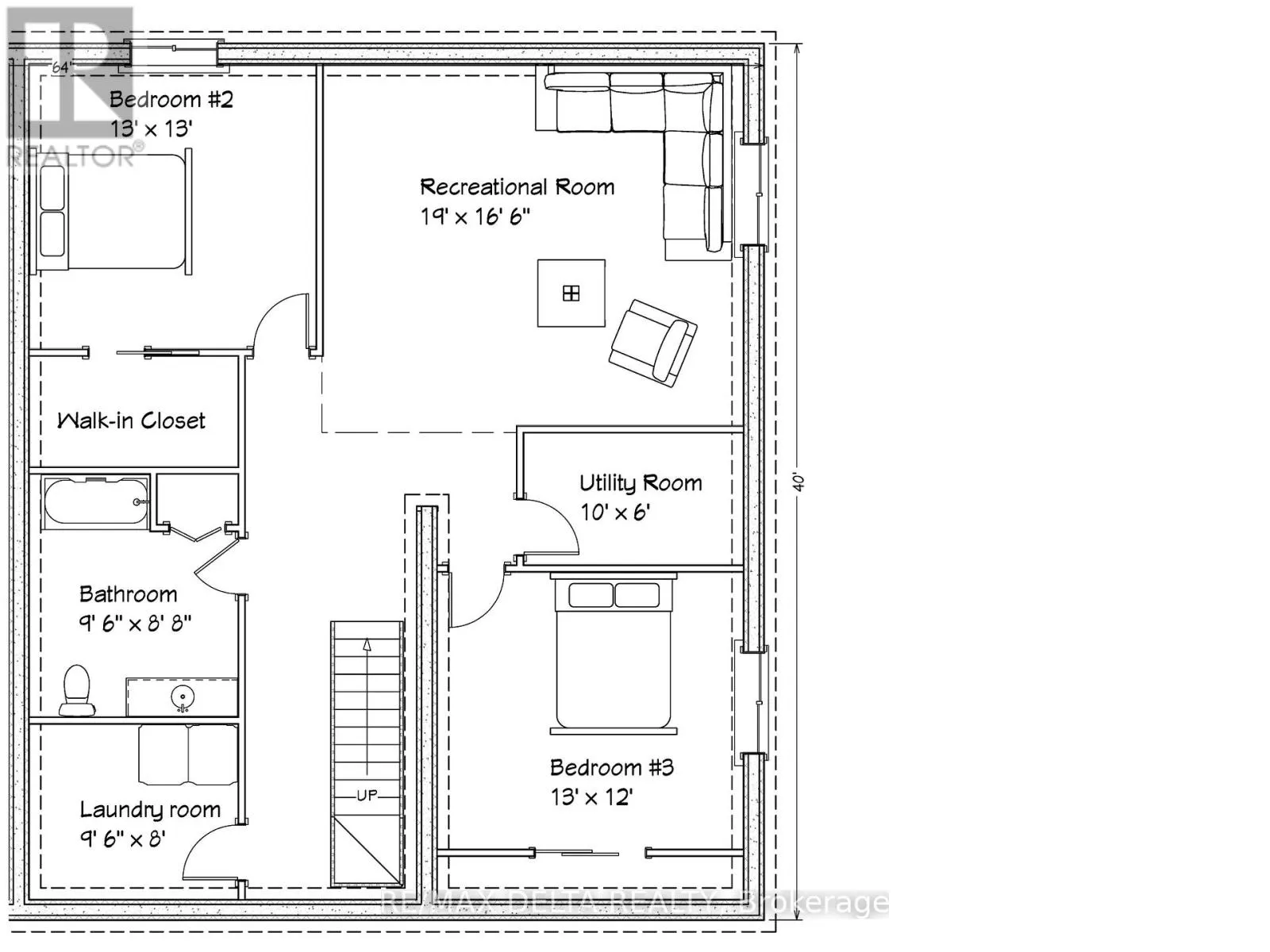
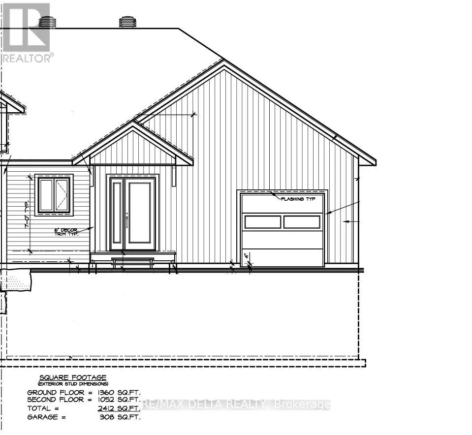
Cross Streets: Main and Bertha. ** Directions: From main intersection, follow High Street south, turn east onto Mill Street. Property will be on your right. Your forever home is coming to life! This beautiful 1-bedroom semi-detached bungalow is being built in a well-established neighbourhood in picturesque Vankleek Hill. Quality construction and custom design make this one a great investment in your future. This forever home is designed with adaptable spaces that grow with you through every stage of life, providing enduring style, long-term comfort, convenience, and lasting value. Enjoy the spacious feel of 9' ceilings. Benefit from advanced, energy-efficient construction that keeps indoor temperatures comfortable year-round while dramatically reducing utility costs. High-performance foundation materials, modern insulation and low-solar windows will create a quieter, healthier living environment with long-term savings built right in. Open-concept main floor living includes: kitchen with granite counter-tops, LR, DR, main floor bedroom, a full bath and laundry. Unfinished basement: Designed to accommodate 2 additional bedrooms, large recreation room, full bath and second laundry. Quality materials, smart layout choices. The basement can be finished at an additional cost. Fully landscaped with 2-car paved driveway, natural gas central heating, central A/C, Automatic Garage Door Opener, Composite and Vinyl Siding. Tarion New Home Warranty. Note: HST is applicable to Sale Price. (id:27476)

Property Highlights

MLS® Number
X12923110
Type
Single Family
Community Name
613 - Vankleek Hill
Ownership Type
Freehold
Land Size
40 x 83 FT
Parking Space Total
2

Building

Building Type
House
Storeys
1.00
Square Footage
700 - 1100 sqft
Bathrooms Total
2
Bedrooms Above Ground
1
Bedrooms Total
1
Amenities
Park
Exterior Finish
Vinyl siding
Fireplace Present
No
Basement Type
N/A (Unfinished)
Basement Features
Building Heating Type
Forced air
Heating Fuel
Natural gas
Building Cooling Type
Central air conditioning

Utilities

Water
Municipal water
Utility Sewer
Sanitary sewer

Room Layout

Kitchen
Main level
2.4 m x 3.35 m
Great room
Main level
5.03 m x 4.11 m
Primary Bedroom
Main level
4.14 m x 3.81 m

Location

Learn more about this property
Listing provided by:
RE/MAX DELTA REALTY
MLS® number:
X12923110
Agent:
Louise Sproule
*Indicates required field
Name is required
Email is required
Please enter a valid phone number (e.g., 416-111-1111).