115 Bloomington Way, Chatham, Ontario N7L 0H2

Listed for:
$825,000
3 beds
2 baths
Listed 16 days ago
House for rent: 115 Bloomington Way, Chatham, Ontario N7L 0H2

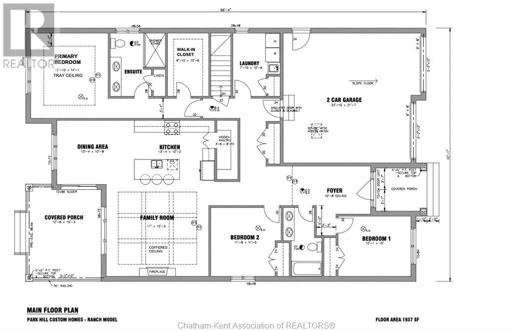
View all 15 photos

Learn more about this property
Listing provided by:
ROYAL LEPAGE PEIFER REALTY Brokerage
MLS® number:
25007672
Agent:
Jeff Godreau
*Indicates required field
Name is required
Email is required
Please enter a valid phone number (e.g., 416-111-1111).

About

Introducing luxury living in Chatham! To be built by Parkhill Custom Homes in Prestancia, this 1937sqft ranch offers a spacious and elegant layout. The grand foyer opens to an impressive design featuring 3 bedrooms and 2 full bathrooms. Enjoy open-concept living with a large kitchen, island, hidden pantry, gas fireplace in the living room and patio doors from dining room leading to a covered rear porch. Choose granite or quartz countertops and enjoy ample cabinetry with a great space to entertain. The primary wing offers a walk-in closet, tiled shower in ensuite and spacious bedroom featuring a tray ceiling. This layout includes a laundry room off the double garage and separation from secondary bedrooms providing privacy and comfort. Covered front and rear porches, high-end finishes and attention to detail throughout plus a 7 year Tarion warranty for reassurance! Please note: all images are artistic renderings and are for illustrative purposes only. Final design and finishes may vary. (id:27476)

Property Highlights

MLS® Number
25007672
Type
Single Family
Ownership Type
Freehold
Land Size
50 X IRR / 0.188 AC|under 1/4 acre

Building

Building Type
House
Storeys
1.00
Square Footage
1937 sqft
Bathrooms Total
2
Bedrooms Above Ground
3
Bedrooms Total
3
Exterior Finish
Brick
Fireplace Present
Yes
Basement Type
Basement Features
Building Heating Type
Heating Fuel
Natural gas
Building Cooling Type
Central air conditioning

Location

Street Spotlight - For sale