2 Rosewood Crescent, Chatham, Ontario N7M 0V4

Listed for:
$569,900
2 beds
2 baths
Listed 80 days ago
House for rent: 2 Rosewood Crescent, Chatham, Ontario N7M 0V4

View all 3 photos

About

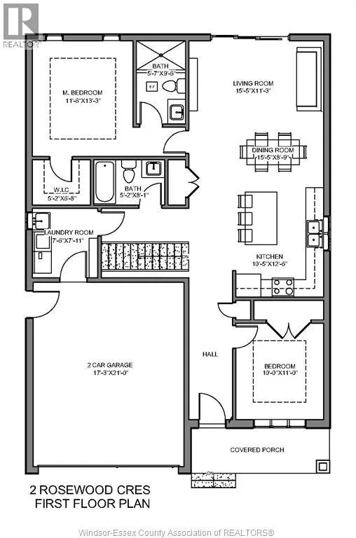
Searching for a fully finished ranch at an unbeatable price? This Liovas Homes property offers a thoughtfully designed layout featuring 2 bedrooms and 3 bathrooms, highlighted by hardwood and ceramic flooring, along with sleek quartz countertops-perfect for modern living. Convenient main-floor laundry adds everyday ease. The finished basement provides additional living space, making this home ideal for a growing family or flexible lifestyle needs. Ready for early Spring 2026 occupancy. Call the Listing Agent for more details or to schedule a private viewing. (id:27476)

Property Highlights

MLS® Number
26001128
Type
Single Family
Ownership Type
Freehold
Land Size
50.98 X 100.39

Building

Building Type
House
Storeys
1.00
Bathrooms Total
2
Bedrooms Above Ground
2
Bedrooms Total
2
Exterior Finish
Aluminum/Vinyl, Brick
Fireplace Present
Yes
Basement Type
Basement Features
Building Heating Type
Forced air, Furnace, Heat Recovery Ventilation (HRV)
Heating Fuel
Natural gas
Building Cooling Type
Central air conditioning

Location

Learn more about this property
Listing provided by:
ROYAL LEPAGE BINDER REAL ESTATE
MLS® number:
26001128
Agent:
Susan Liovas
*Indicates required field
Name is required
Email is required
Please enter a valid phone number (e.g., 416-111-1111).

Street Spotlight - For sale