317080 6 & 10, Chatsworth, Ontario N0H 1G0

Listed for:
$1
0 beds
0 baths
Listed 67 days ago
317080 6 & 10, Chatsworth, Ontario N0H 1G0

View all 38 photos

About

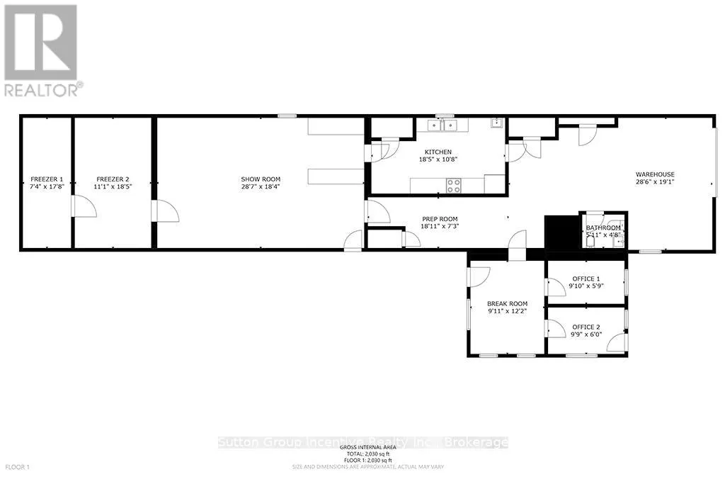
Cross Streets: The Euro Market at the North end of Chatsworth on the west side of Hwy 6 & 10. Backs onto Boundary Road. ** Directions: North end of Chatsworth on the west side of Hwy 6 & 10. Prime Commercial Real Estate for Sale, Investors Note: Location Location Location, The Location is the Hub of transportation connecting the Toronto and Greater Toronto as well as kitchener-waterloo and Guelph to the South West Georgian Bay, Excellent for the Savvy Enterpriser to capitalize on their investment with potential CAP rate @ 7.25%. Prime Highway Commercial Investment With 669 feet of highway frontage and high visibility, over 2,400 sq. ft. of versatile commercial space, this property is a rare find in a high-traffic location. Currently home to stablished business, the seller is willing to remain as a tenant and sign a 5-year lease ($3500/month Triple Net Lease), giving you immediate rental income and a seamless transition.Recent upgrades ensure peace of mind, including:New windows & doors (2022)Furnace (2022)Air conditioning (2023)Natural gas backup generator Garage receiving door Gas water heater (owned) Newer fixed roof (metal & asphalt shingles)The property also offers a walk-in fridge & freezer, drilled well (south side), septic (north side), and a shipping/receiving door for storage needs.Additional Income Potential:The store currently uses only half of the property. The north side (approx. 0.5 acre) can be leased separately for example, to food trucks during the summer Also excellent for Car/ Secondhand Car or recreational motorsports or RV Dealerships Display lot, there are two 30-AMP RV plugs with separate meters, Zoning & Location: C-61 zoning allows for a wide variety of commercial uses Thorough Environmental Site Assessment completed, Located in Chatsworth, just 10 minutes from Owen Sound and thriving community of Chatsworth. Georgian Bay is well known for the beautiful Beaches and water sport activities such as Boating, ( ice) Fishing and the popular destination for Cottagers, The Private and Public Ski Slopes are between 30 and 60 Minutes drive away. Enhancing year round sport and activities for your family and friends joyment. (id:27476)

Property Highlights

MLS® Number
X12615324
Type
Retail
Community Name
Chatsworth
Land Size
676.9 x 158.34 FT

Building

Square Footage
2268 sqft
Fireplace Present
No
Basement Type
Basement Features
Building Heating Type
Not known
Heating Fuel
Building Cooling Type
Unknown

Utilities

Utility Sewer
Septic System

Location

Learn more about this property
Listing provided by:
Sutton Group Incentive Realty Inc.
MLS® number:
X12615324
Agent:
Xerxes Khalkhaly
*Indicates required field
Name is required
Email is required
Please enter a valid phone number (e.g., 416-111-1111).