215319 Concession 4, Chatsworth, Ontario N0H 2V0

Listed for:
$1,289,000
5 beds
3 baths
Listed 14 days ago
215319 Concession 4, Chatsworth, Ontario N0H 2V0

View all 49 photos

About

Cross Streets: Concession Rd 4 & Grey Rd 25. ** Directions: From Hwy 6, West on Grey Rd 25, North on Concession Rd 4, Property located on the East side . Tranquil 49+ acre retreat with a breathtaking 2008 Shouldice Stone bungalow nestled behind a serene pond. Enjoy ultimate privacy along the winding driveway to this peaceful haven. The home boasts open-concept living, hardwood floors, a gourmet kitchen with a large island and rich wood cabinetry, and stunning views from every room. A cozy sunroom with a wood cookstove is ideal year-round. The main floor features 3 bedrooms, 2 baths (including an ensuite and walk-in closet), and convenient laundry. The walk-up from the lower level offers in-law potential with a rec room, bar, games area, 2 additional rooms, a bath, and in-floor heating. No carpet, only tile, hardwood, or stone throughout. Outdoors: 15 fenced, workable acres, scenic trails, mixed forest, a 36x24 shop with loft and hydro, RV hookup, sheds, a chicken coop, woodshed, and fascinating eco ponds. Savour wildlife from the deck or porch, stay connected with great internet, and embrace a sustainable lifestyle with wood heat and space for animals. A quintessential country sanctuary. Located just 20 minutes to Durham and 30 minutes to Owen Sound, this Chatsworth township property is your chance to live close to nature, whether you're dreaming of hobby farming, raising animals, gardening, or simply enjoying the quiet beauty of Grey County. (id:27476)

Property Highlights

MLS® Number
X12895668
Type
Agriculture
Community Name
Chatsworth
Land Size
1002.2 x 2197.3 FT|25 - 50 acres
Parking Space Total
10

Building

Storeys
1.00
Square Footage
1500 - 2000 sqft
Bathrooms Total
3
Bedrooms Above Ground
3
Bedrooms Total
5
Exterior Finish
Brick
Fireplace Present
Yes
Basement Type
Full, N/A (Finished), N/A
Basement Features
Walk-up
Building Heating Type
Forced air
Heating Fuel
Propane
Building Cooling Type
Central air conditioning

Utilities

Utility Sewer
Sanitary sewer

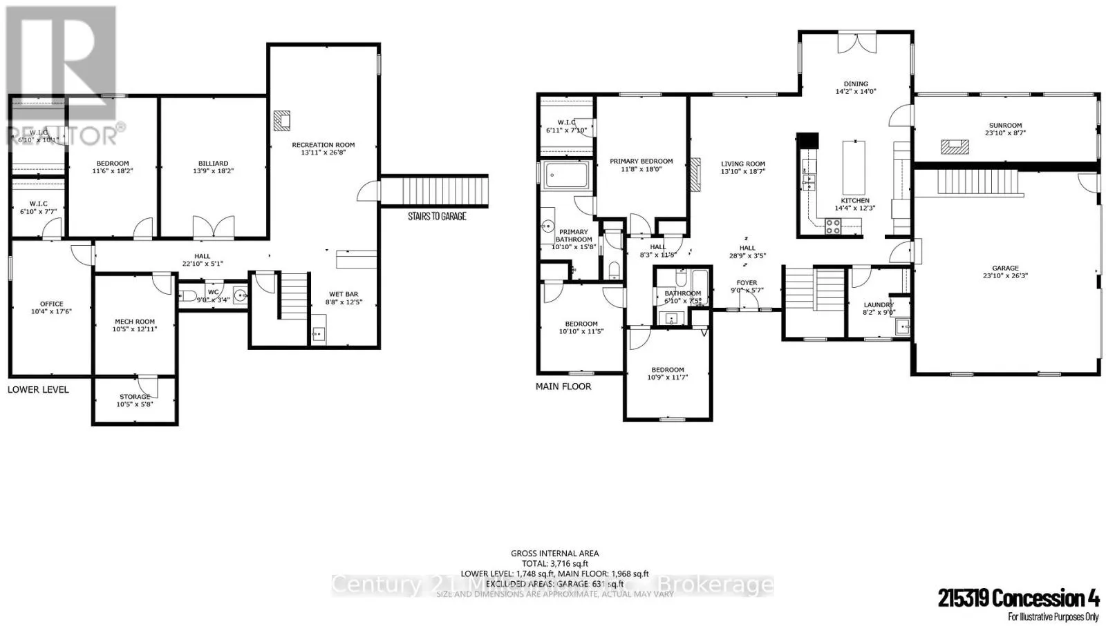
Room Layout

Recreational, Games room
Basement
4.24 m x 8.13 m
Other
Basement
3.18 m x 1.73 m
Games room
Basement
4.19 m x 5.54 m
Bedroom
Basement
3.51 m x 5.54 m
Office
Basement
3.15 m x 5.33 m
Other
Basement
2.64 m x 3.78 m
Bathroom
Basement
Measurements not available
Utility room
Basement
3.18 m x 3.94 m
Bedroom
Main level
3.3 m x 3.48 m
Bedroom
Main level
3.28 m x 3.53 m
Bathroom
Main level
Measurements not available
Bathroom
Main level
Measurements not available
Primary Bedroom
Main level
3.56 m x 5.49 m
Laundry room
Main level
2.49 m x 2.74 m
Sunroom
Main level
7.26 m x 2.62 m
Living room
Main level
4.22 m x 5.66 m
Foyer
Main level
2.74 m x 1.7 m
Dining room
Main level
4.32 m x 4.27 m
Kitchen
Main level
4.37 m x 3.73 m

Location

Learn more about this property
Listing provided by:
Century 21 Millennium Inc.
MLS® number:
X12895668
Agent:
Susan Moffat
*Indicates required field
Name is required
Email is required
Please enter a valid phone number (e.g., 416-111-1111).

Community Spotlight: Homes For sale in Your Neighborhood