303 Rue De L Etang Street, Clarence-Rockland, Ontario K4K 0K1

Listed for:
$523,999
3 beds
3 baths
Listed 58 days ago
Row / Townhouse for rent: 303 Rue De L Etang Street, Clarence-Rockland, Ontario K4K 0K1

View all 32 photos

Learn more about this property
Listing provided by:
SUTTON GROUP - OTTAWA REALTY
MLS® number:
X12418626
Agent:
Greg Tarasco
*Indicates required field
Name is required
Email is required
Please enter a valid phone number (e.g., 416-111-1111).

About

Cross Streets: Hwy 17 and Laberge St. ** Directions: Follow Hwy 17 eastbound through the Town of Rockland. About 2 min past the main section of town turn left on Laberge St., then the second right onto De L'etang St. Welcome to this beautifully maintained 5-year-old townhouse nestled in the growing bedroom community of Rockland, Ontario. Perfect for first-time buyers or young families, this home offers comfort, quality, and convenience just a short drive from Ottawa. Step inside to discover builder-upgraded kitchen cabinets and interior doors, adding a touch of elegance and functionality to your everyday living. The open-concept main floor is bright and inviting, offering an ideal space for entertaining or relaxing. Upstairs, you'll find spacious bedrooms, a Primary Bedroom 3-peice ensuite; and a full bathroom serving the other bedrooms, perfect for modern family life. Located in a friendly, family-oriented neighborhood with schools, parks, paths and amenities nearby, this home offers small-town charm with easy access to big-city conveniences. Don't miss your chance to own a stylish, move-in-ready townhouse in one of Eastern Ontario's fastest-growing communities! (id:27476)

Property Highlights

MLS® Number
X12418626
Type
Single Family
Community Name
606 - Town of Rockland
Ownership Type
Freehold
Land Size
20 x 118.1 FT
Parking Space Total
3

Building

Building Type
Row / Townhouse
Storeys
2.00
Square Footage
1100 - 1500 sqft
Bathrooms Total
3
Bedrooms Above Ground
3
Bedrooms Total
3
Exterior Finish
Aluminum siding, Shingles
Fireplace Present
No
Basement Type
N/A (Finished)
Basement Features
Building Heating Type
Forced air
Heating Fuel
Natural gas
Building Cooling Type
Central air conditioning

Utilities

Water
Municipal water
Utility Sewer
Sanitary sewer

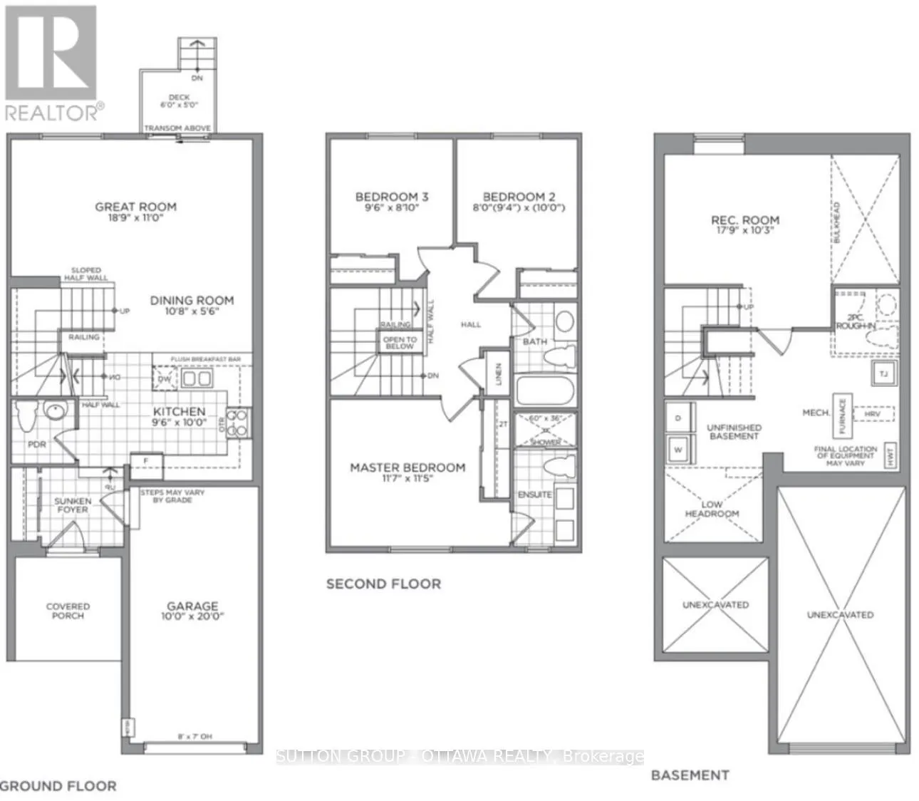
Room Layout

Primary Bedroom
Second level
3.54 m x 3.5 m
Bathroom
Second level
2.74 m x 1.37 m
Bedroom 2
Second level
2.9 m x 2.71 m
Bedroom 3
Second level
2.87 m x 3.05 m
Bathroom
Second level
1.52 m x 2.44 m
Recreational, Games room
Basement
5.45 m x 3.14 m
Great room
Ground level
7.52 m x 3.35 m
Dining room
Ground level
3.28 m x 1.78 m
Kitchen
Ground level
3.28 m x 1.71 m
Foyer
Ground level
1.83 m x 1.83 m

Location