11 - 1124 Docteur Corbeil Boulevard, Clarence-Rockland, Ontario K4K 0G9

Listed for:
$389,900
2 beds
3 baths
Listed 4 days ago
Row / Townhouse for rent: 11 - 1124 Docteur Corbeil Boulevard, Clarence-Rockland, Ontario K4K 0G9

View all 31 photos

Learn more about this property
Listing provided by:
RE/MAX AFFILIATES REALTY LTD.
MLS® number:
X12550532
Agent:
Greg Hamre
*Indicates required field
Name is required
Email is required
Please enter a valid phone number (e.g., 416-111-1111).

About

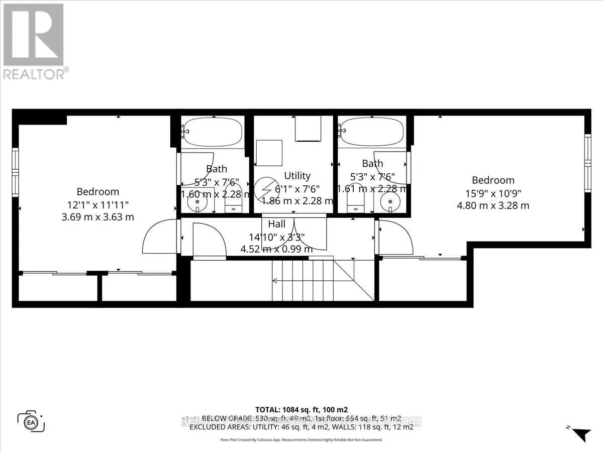
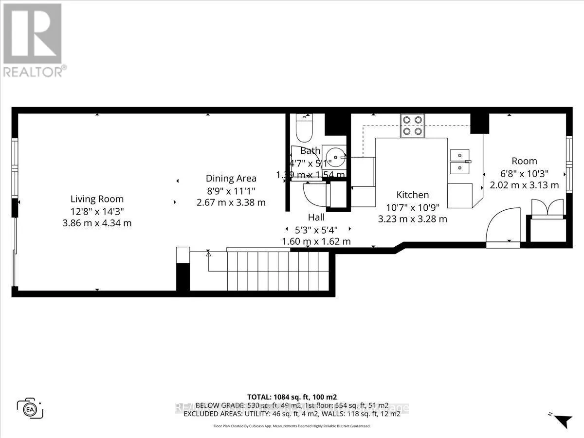
Cross Streets: Rockland. ** Directions: From the 174 East Bound, turn right on Caron Street, Go up the hill and turn right on Docteur Corbeil. The property will be on your right. Beautifully maintained and freshly painted 2-bed, 2.5-bath stacked condo in the desirable Rockland location. The main level features a separate kitchen with quartz countertops, stainless steel appliances, and dark wood cabinetry, along with an updated powder room, new 2025 paint, baseboards, doors, and lighting. The bright living area includes a sliding glass door leading directly to the backyard and two owned parking spots (#79 & #71). The lower level offers two spacious bedrooms with large egress windows, each with its own 4-piece ensuite, plus laundry and storage. Enjoy a private balcony with storage and BBQ space. Steps from schools, groceries, transit, and all of Rockland's amenities - this move-in-ready home is perfect for first-time buyers or down-sizers! Parking 79 & 71 (id:27476)

Property Highlights

MLS® Number
X12550532
Type
Single Family
Community Name
606 - Town of Rockland
Maintenance Fee
371.78
Ownership Type
Condominium/Strata
Parking Space Total
2

Building

Building Type
Row / Townhouse
Square Footage
1200 - 1399 sqft
Bathrooms Total
3
Bedrooms Total
2
Exterior Finish
Brick Facing
Fireplace Present
No
Basement Type
Full (Finished)
Basement Features
Building Heating Type
Forced air
Heating Fuel
Natural gas
Building Cooling Type
Central air conditioning

Location