217 Danika Street, Clarence-Rockland, Ontario K0A 2A0

Listed for:
$759,800
2 beds
2 baths
Listed 76 days ago
House for rent: 217 Danika Street, Clarence-Rockland, Ontario K0A 2A0

View all 4 photos

About

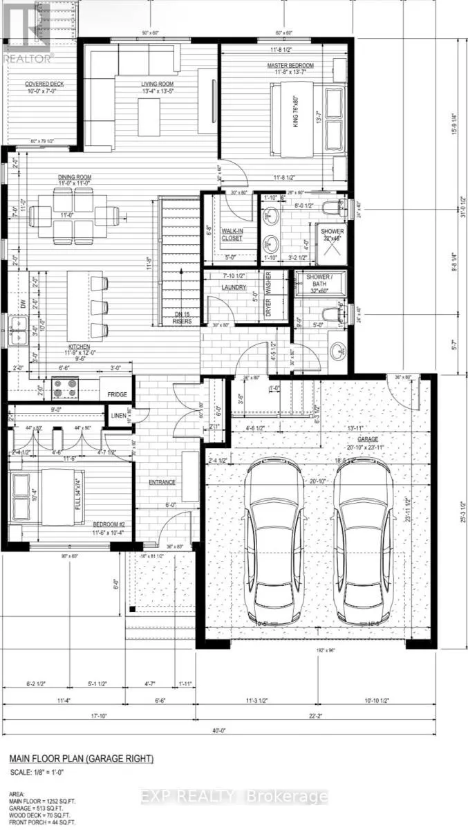
Cross Streets: Drouin/Danika. ** Directions: Russell to Danika. TO BE BUILT FOR LATE SUMMER/FALL 2026 OCCUPANCY - NEW BUILD BY FOSSIL HOMES! Welcome to the Pinot model by Fossil Homes - a well designed 2 bedroom, 2 bath bungalow located in Cheney, offering the perfect blend of comfort, space, and quality craftsmanship. Set in a quiet subdivision with municipal water and natural gas, this home provides privacy and a peaceful setting. Buyers will have the opportunity to personalize their finishes, including flooring, cabinetry, countertops and fixtures..making it truly your own. The main floor will offer approximately 1,252 sq. ft. of bright, open-concept living space (plus a covered rear deck!), featuring 9-foot ceilings, luxury vinyl and ceramic flooring and abundant natural light throughout the living, dining, and kitchen area. The spacious living room will provide direct access to a covered deck (10 ft. x 7 ft.), ideal for relaxing or entertaining. The custom kitchen will be thoughtfully designed with a breakfast bar island and ample cabinetry. The primary suite will feature a walk-in closet and private ensuite. A second generously sized bedroom, a full main bath and convenient main-floor laundry will complete the level. The unfinished basement to finish according to your needs, adding even more living space in the future. Additional highlights include a 2 car insulated garage (513 sq. ft.) and TARION warranty coverage! (id:27476)

Property Highlights

MLS® Number
X12705200
Type
Single Family
Community Name
607 - Clarence/Rockland Twp
Ownership Type
Freehold
Land Size
150 x 100 FT ; Yes
Parking Space Total
8

Building

Building Type
House
Storeys
1.00
Square Footage
1100 - 1500 sqft
Bathrooms Total
2
Bedrooms Above Ground
2
Bedrooms Total
2
Amenities
Park
Fireplace Present
Yes
Basement Type
Full (Unfinished)
Basement Features
Building Heating Type
Forced air
Heating Fuel
Natural gas
Building Cooling Type
None, Air exchanger

Utilities

Water
Municipal water
Utility Sewer
Septic System

Room Layout

Kitchen
Main level
3.6 m x 3.7 m
Living room
Main level
4 m x 4.1 m
Dining room
Main level
3.55 m x 3.78 m
Primary Bedroom
Main level
3.9 m x 3.5 m
Bathroom
Main level
1.5 m x 2.7 m
Bedroom
Main level
3.5 m x 3.1 m
Laundry room
Main level
1.5 m x 2 m
Other
Main level
2.1 m x 3 m

Location

Learn more about this property
Listing provided by:
EXP REALTY
MLS® number:
X12705200
Agent:
J.f. Perras
*Indicates required field
Name is required
Email is required
Please enter a valid phone number (e.g., 416-111-1111).