1776 Labonte Street, Clarence-Rockland, Ontario K0A 1N0

Listed for:
$514,900
3 beds
1 baths
Listed 36 days ago
House for rent: 1776 Labonte Street, Clarence-Rockland, Ontario K0A 1N0

View all 45 photos

About

Take Landry Road to Labonte Street Country Charm on a Full Acre - Minutes from Rockland & Ottawa! Discover the perfect blend of space, privacy, and opportunity with this charming 3-bedroom bungalow set on a full 1-acre lot, just 10 minutes to Rockland and 25 minutes to Ottawa-ideal for first-time buyers, families, or investors looking for future potential. Step inside to a bright and welcoming layout featuring a functional kitchen that opens to a cozy dining area-perfect for everyday living and family meals. A few steps away, the spacious living room offers plenty of natural light, creating a warm and inviting atmosphere.Down the hall, you'll find the primary bedroom and a second generous bedroom, along with a large full bathroom that conveniently includes main-floor laundry.The finished lower level adds even more living space with a third bedroom and a comfortable family room complete with a natural gas fireplace-perfect for movie nights or relaxing evenings.Outside, the property truly shines: Oversized detached garage with room for 2 vehicles, tools, and all your toys Beautiful 1-acre lot offering privacy and room to roam Property originally purchased as two half-acre parcels with potential severance opportunity. Enjoy peaceful country living while staying close to schools, shops, and amenities in Rockland, with an easy commute into Ottawa.A rare opportunity with space, value, and future potential-don't miss it! (id:27476)

Property Highlights

MLS® Number
X12815452
Type
Single Family
Community Name
607 - Clarence/Rockland Twp
Ownership Type
Freehold
Land Size
150 x 296.8 FT|1/2 - 1.99 acres
Parking Space Total
12

Building

Building Type
House
Storeys
1.00
Square Footage
1100 - 1500 sqft
Bathrooms Total
1
Bedrooms Above Ground
2
Bedrooms Total
3
Amenities
Fireplace(s)
Exterior Finish
Vinyl siding
Fireplace Present
No
Basement Type
Full (Finished)
Basement Features
Building Heating Type
Baseboard heaters, Not known
Heating Fuel
Electric, Natural gas
Building Cooling Type
None

Utilities

Water
Municipal water
Utility Sewer
Septic System

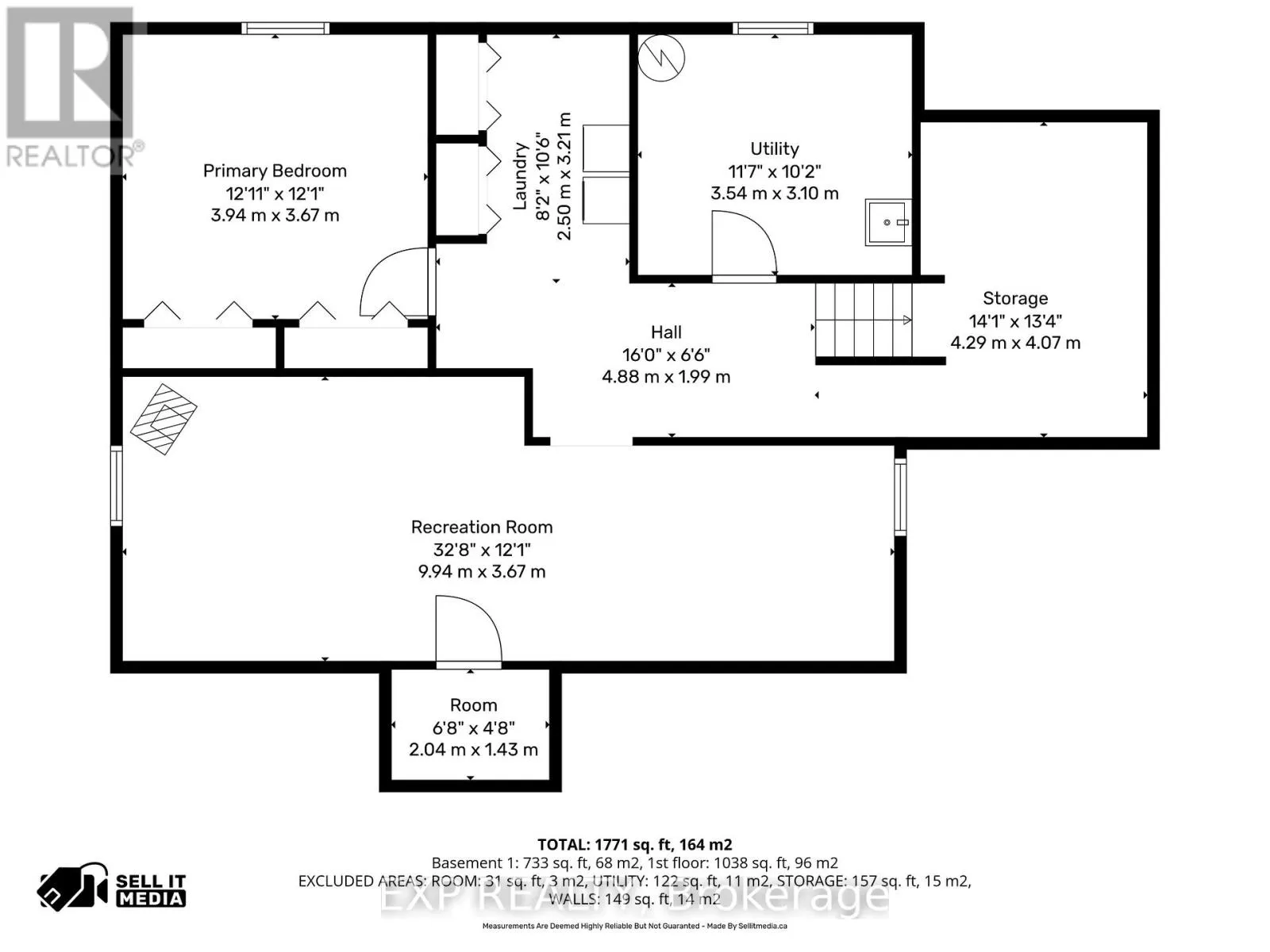
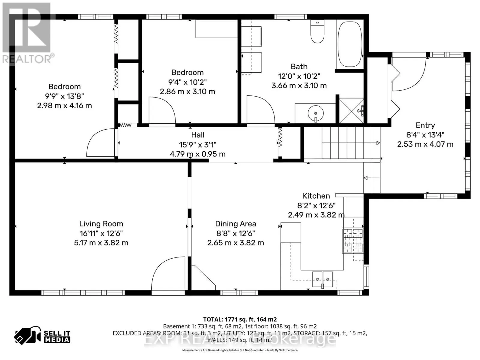
Room Layout

Other
Basement
4.29 m x 4.07 m
Primary Bedroom
Basement
3.94 m x 3.67 m
Utility room
Basement
2.5 m x 3.21 m
Utility room
Basement
3.54 m x 3.1 m
Recreational, Games room
Basement
9.94 m x 6.37 m
Foyer
Main level
2.53 m x 4.07 m
Kitchen
Main level
2.49 m x 3.82 m
Dining room
Main level
2.65 m x 3.82 m
Living room
Main level
5.17 m x 3.82 m
Bedroom 2
Main level
2.98 m x 4.16 m
Bedroom 3
Main level
2.86 m x 3.1 m

Location

Learn more about this property
Listing provided by:
EXP REALTY
MLS® number:
X12815452
Agent:
Allister Beauchamp
*Indicates required field
Name is required
Email is required
Please enter a valid phone number (e.g., 416-111-1111).