99 King Street W, Clarington, Ontario L1C 1R2

Listed for:
$20,000,000
0 beds
0 baths
Listed 103 days ago
99 King Street W, Clarington, Ontario L1C 1R2

View all 10 photos

About

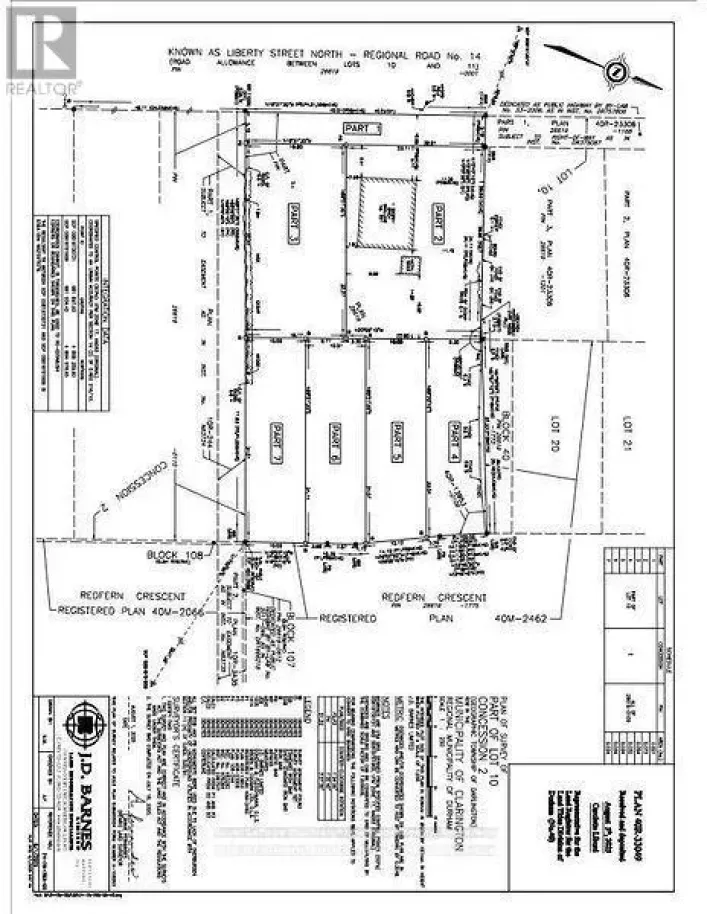
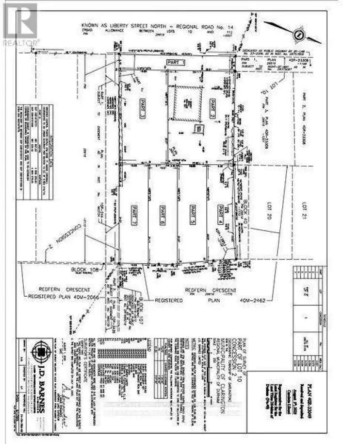
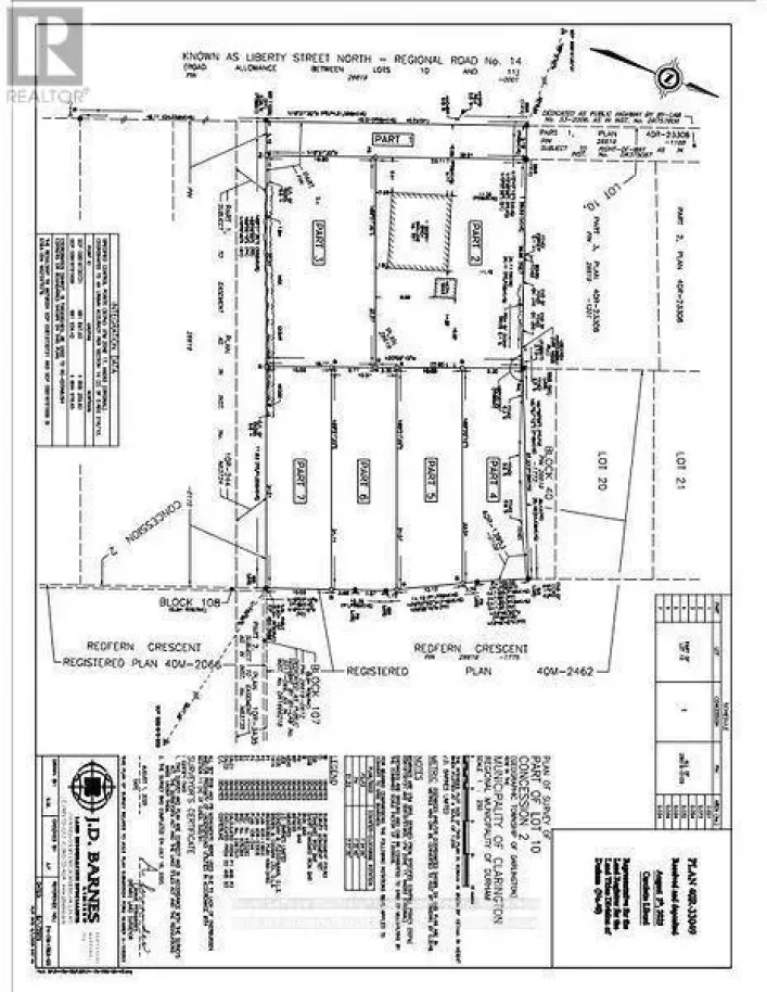
Cross Streets: MARTIN RD / KING W / SCUGOG ST. ** Directions: KING ST W / MARTIN RD. Located in the heart of downtown Bowmanville, 99 King St W presents an incredible opportunity for developers and investors. This fully approved high-density site is designated within the Major Transit Station Area (MTSA), offering the perfect setting for the development of three condo towers, with a total of approximately 425 units. Situated just steps away from the future GO Station, this property benefits from unparalleled access to public transportation, making it an ideal location for residential development. With its prime location in a rapidly growing area, this site offers exceptional potential for both short-term and long-term returns. Priced at $20,000,000, this is a rare and lucrative opportunity to capitalize on Bowmanville's expanding downtown core. Don't miss your chance to be part of the area's exciting transformation. Buyer to complete due diligence. (id:27476)

Property Highlights

MLS® Number
E12404771
Type
Vacant Land
Community Name
Bowmanville
Land Size
1356 x 487 FT ; SEE REALTOR REMARKS|5 - 9.99 acres

Building

Fireplace Present
No
Basement Type
Basement Features
Building Heating Type
Heating Fuel
Building Cooling Type

Location

Learn more about this property
Listing provided by:
REVEL Realty Inc., Brokerage
MLS® number:
E12404771
Agent:
Andrew Perrie
*Indicates required field
Name is required
Email is required
Please enter a valid phone number (e.g., 416-111-1111).

Community Spotlight: Homes For sale in Your Neighborhood