106 - 84 Aspen Springs Drive, Clarington, Ontario L1C 0V3

Listed for:
$458,995
2 beds
1 baths
Listed 9 days ago
Apartment for rent: 106 - 84 Aspen Springs Drive, Clarington, Ontario L1C 0V3

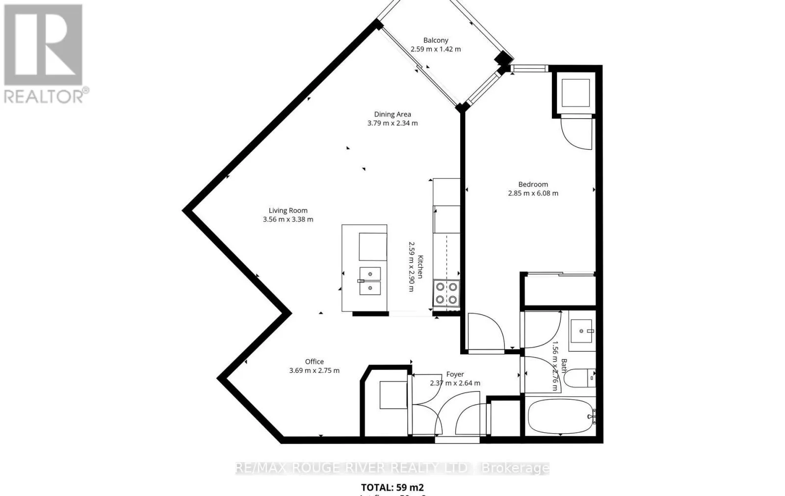
View all 36 photos

About

Aspen Springs Dr / Bowmanville Ave Welcome to 84 Aspen Springs Unit 106. Step into effortless condo living with a layout that truly sets this unit apart. Unlike the standard floor plans in the building, this suite offers a unique design that enhances both flow and functionality. The open-concept living and dining area feels bright and welcoming, ideal for everyday comfort or hosting guests. The kitchen is well-appointed with quartz countertops, an undermount sink, modern backsplash, and a peninsula with breakfast bar seating. A separate den provides a flexible space-perfect for a home office, reading nook, or additional dining area. The primary bedroom features large closet and semi-ensuite access. Located on the first floor for ultimate convenience, enjoy easy entry and a parking space just steps from the building entrance-ideal for daily living and carrying groceries with ease. Unwind on your private balcony overlooking the courtyard. Minutes to shopping, restaurants, transit, movie theatre and Hwy 401. Amenities include gym, party/meeting room, visitor parking, and playground. (id:27476)

Property Highlights

MLS® Number
E12975528
Type
Single Family
Community Name
Bowmanville
Maintenance Fee
382.68
Ownership Type
Undivided Co-ownership
Parking Space Total
1

Building

Building Type
Apartment
Square Footage
700 - 799 sqft
Bathrooms Total
1
Bedrooms Above Ground
1
Bedrooms Total
2
Amenities
Exercise Centre, Party Room, Visitor Parking Public Transit, Park, Schools
Exterior Finish
Brick
Fireplace Present
No
Basement Type
None
Basement Features
Building Heating Type
Forced air
Heating Fuel
Natural gas
Building Cooling Type
Central air conditioning

Location

Learn more about this property
Listing provided by:
RE/MAX ROUGE RIVER REALTY LTD.
MLS® number:
E12975528
Agent:
Lori Roberts
*Indicates required field
Name is required
Email is required
Please enter a valid phone number (e.g., 416-111-1111).

Street Spotlight - For sale